Büros
ID F1118Provisionsfrei
Büroimmobilie - Darmstadt, Darmstadt-Mitte - F1118
Darmstadt-Mitte, 64283, Darmstadt, Hessen
Kontaktieren Sie uns für den Preis
- Fläche181 - 1.388 m²
- VerfügbarkeitSofort
- Objekt
- Ausstattung
- Lage und Verkehrsanbindung
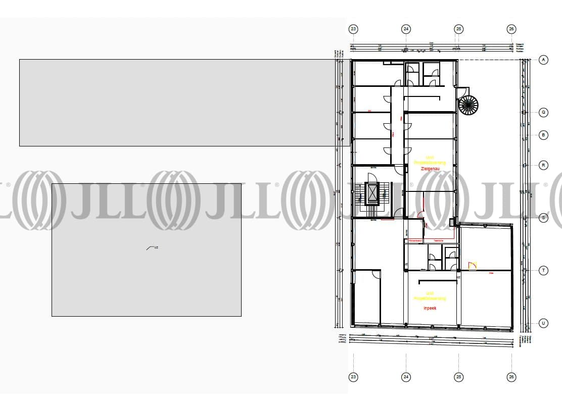
- Grundrisse
- Exposé herunterladen
- Ihr Kontakt
- Anfrage senden
Objekt
Der Office Tower ist eine Premium-Büroadresse im Herzen von Darmstadt. Das Gebäude, das im Jahr 2003 umfassend revitalisiert wurde, bietet hochwertige Büro- und Einzelhandelsflächen in zentraler Lage. Die Fassade besticht durch das Zusammenspiel von Glas, Granit und Aluminium. Klassische Proportionen und elegante Schlichtheit sind die Merkmale dieser exklusiven Büroadresse. Auch innen wird der OfficeTower höchsten Ansprüchen gerecht.
Verfügbare Fläche
Lage und Verkehrsanbindung
- Flughafen, Frankfurt am Main, Fahrzeit: 22 min
- Bundesautobahn, A 672, Fahrzeit: 5 min
- Bundesautobahn, A 5, Fahrzeit: 10 min
- Bundesautobahn, A 67, Fahrzeit: 10 min
- Bus, Darmstadt Hbf, Linie 1, 2, 3, 5, Gehzeit: 13 min
- Hauptbahnhof, Darmstadt Hbf, Gehzeit: 13 min
Ihr Kontakt

Dennis Arnold
Ihr Kontakt





