Büros
ID F1111Provisionsfrei
Aktualisiert
Büroimmobilie - Bad Homburg - F1111
61352, Bad Homburg, Hessen
7 € / m²
- Fläche308 - 4.752 m²
- VerfügbarkeitSofort
- Objekt
- Ausstattung
- Lage und Verkehrsanbindung
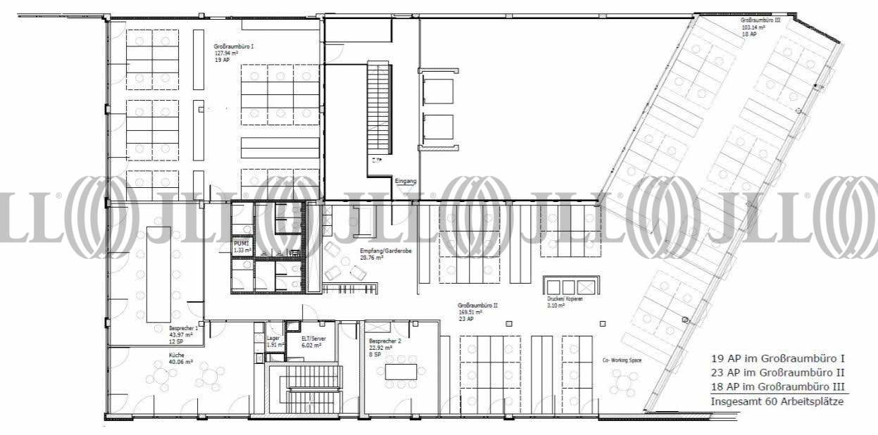
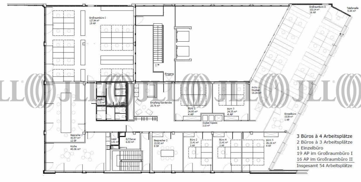
- Grundrisse
- Exposé herunterladen
- Ihr Kontakt
- Anfrage senden
Objekt
Die Büroflächen in dem Objekt aus dem Baujahr 2012 sind nach modernsten Gesichtspunkten ausgestattet, wobei auf eine flexible Gebäudekonzeption Wert gelegt wurde.
Zertifizierungen
Energieausweis
Für diese Liegenschaft liegt ein Verbrauchsausweis vom 19.02.2020 vom Eigentümer/Vermieter vor. Die wesentlichen Energieträger der Liegenschaft sind Erdgas leicht, Strom. Der Endenergieverbrauch Strom beträgt 54.00 kWh/(m²*a). Der Endenergieverbrauch Wärme beträgt 66.00 kWh/(m²*a).Verfügbare Fläche
Lage und Verkehrsanbindung
- Flughafen, Frankfurt am Main, Fahrzeit: 15 min
- Bundesautobahn, A 661, Fahrzeit: 3 min
- Bundesautobahn, A 5, Fahrzeit: 3 min
- Bundesstraße, B 456, Fahrzeit: 4 min
- Bundesstraße, B 455, Fahrzeit: 6 min
- Bus, Landratsamt, Linie 7, 17, 260, Gehzeit: 3 min
Ihr Kontakt

Tim von Leliwa
Ihr Kontakt




