Büros
ID F0995Provisionsfrei
Aktualisiert
Büroimmobilie - Frankfurt am Main, Westend-Süd - F0995
Westend-Süd, 60325, Frankfurt am Main, Hessen
Kontaktieren Sie uns für den Preis
- Fläche363 - 3.507 m²
- VerfügbarkeitSofort
- Objekt
- Ausstattung
- Lage und Verkehrsanbindung
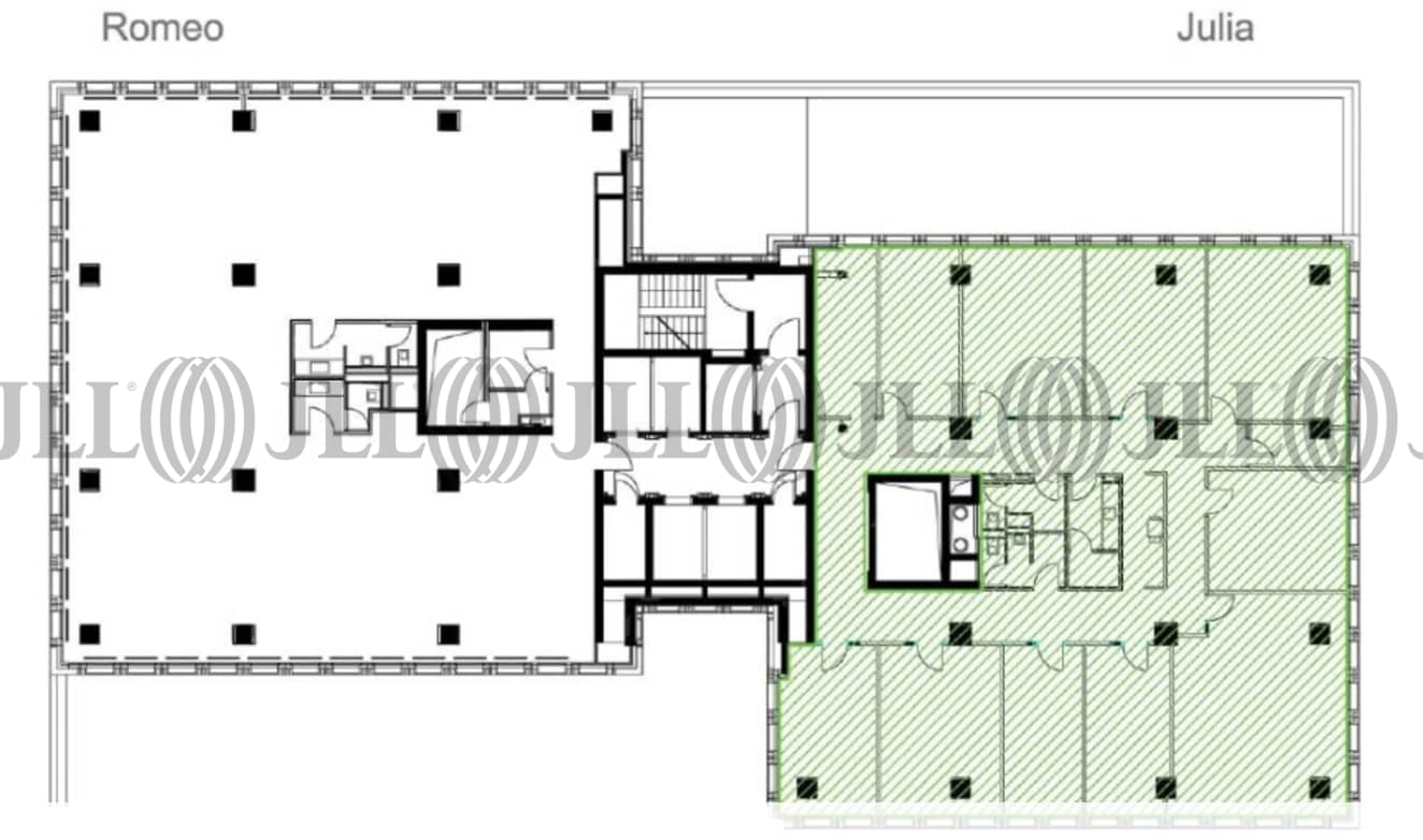
- Grundrisse
- Exposé herunterladen
- Ihr Kontakt
- Anfrage senden
Objekt
Romeo und Julia sind zwei Türme, die über einen gemeinsamen Kern mit Erschließungsfunktion verfügen und durch einen Sockel vereinigt werden. Auf den insgesamt 19 Etagen bietet das hochmoderne Gebäude ca. 14.500 Quadratmeter für hochwertige Büros. Das Gebäudeensemble verfügt über moderne energieeffiziente Haustechnik sowie eine ökologische Doppelfassade mit raumhohen Glasflächen.
Zertifizierungen
Energieausweis
BREEAM: ExcellentVerfügbare Fläche
Lage und Verkehrsanbindung
Das Objekt liegt im renommierten Westend, dem mit exklusivsten und teuersten Viertel der Mainmetropole, welches sich nahtlos ans Bankenviertel anschließt. Eine der besten und hochwertigsten Bürolagen in Frankfurt. Öffentliche Verkehrsmittel sind fußläufig zu erreichen. U-Bahnstation Westend ca. 250 m, S-Bahnstation Taunusanlage ca. 500 m. Zum Opernplatz und der bekannten "Fressgass" sind es ebenfalls nur ca. 500 m. Im direkten Umfeld finden sich Einkaufsmöglichkeiten für den täglichen Bedarf, ebenso eine Vielzahl unterschiedlichster Restaurants. Das Westend zeichnet sich gerade auch durch exklusive Wohnungen und gehobener Gastronomie aus. Die verschiedenen Baustile, von aufwendig renovierten Gründerzeitvillen bis zu modernsten Hochhäusern schafft einen ganz eigenen Reiz und verbindet auf harmonische Weise Tradition und Moderne.
- Flughafen, Frankfurt am Main, Fahrzeit: 17 min
- Flughafen, Frankfurt am Main, Fahrzeit: 20 min
- Bundesautobahn, A 648, Fahrzeit: 5 min
- Bundesautobahn, A 5, Fahrzeit: 10 min
- Bundesstraße, B 8, Fahrzeit: 6 min
- Bundesstraße, B 44, Fahrzeit: 5 min
- Hauptbahnhof, Frankfurt am Main, Fahrzeit: 6 min
- U-Bahn, Alte Oper, Linie U6, U7, Gehzeit: 4 min
Ihr Kontakt

Dennis Arnold
Ihr Kontakt








