Büros
ID F0906Provisionsfrei
Aktualisiert
Büroimmobilie - Frankfurt am Main, Innenstadt - F0906
Innenstadt, 60313, Frankfurt am Main, Hessen
24,90 € / m²
- Fläche194 - 2.797 m²
- VerfügbarkeitSofort
- Objekt
- Ausstattung
- Lage und Verkehrsanbindung
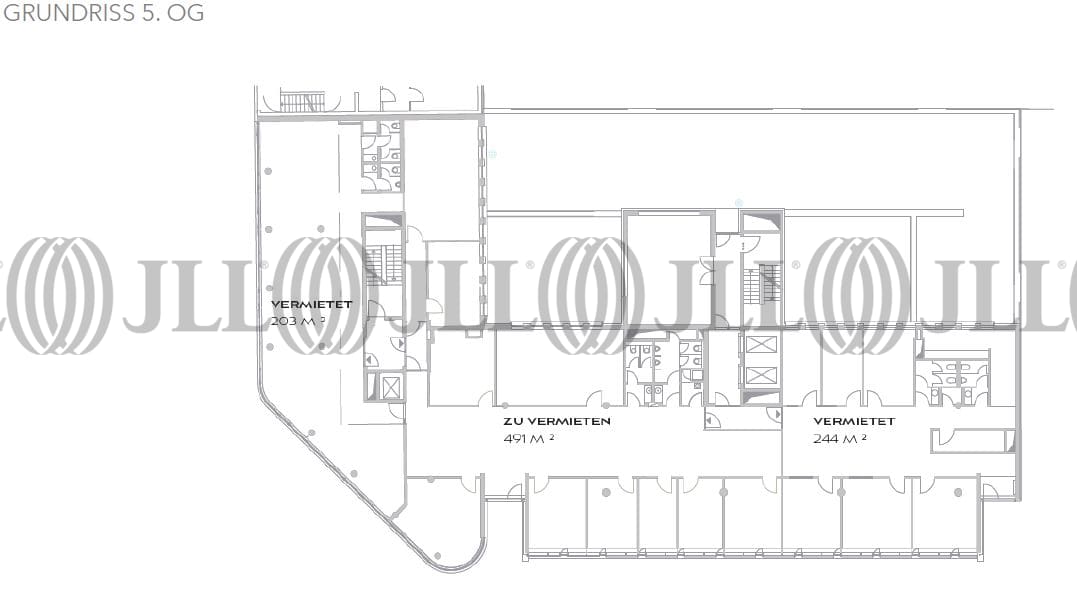
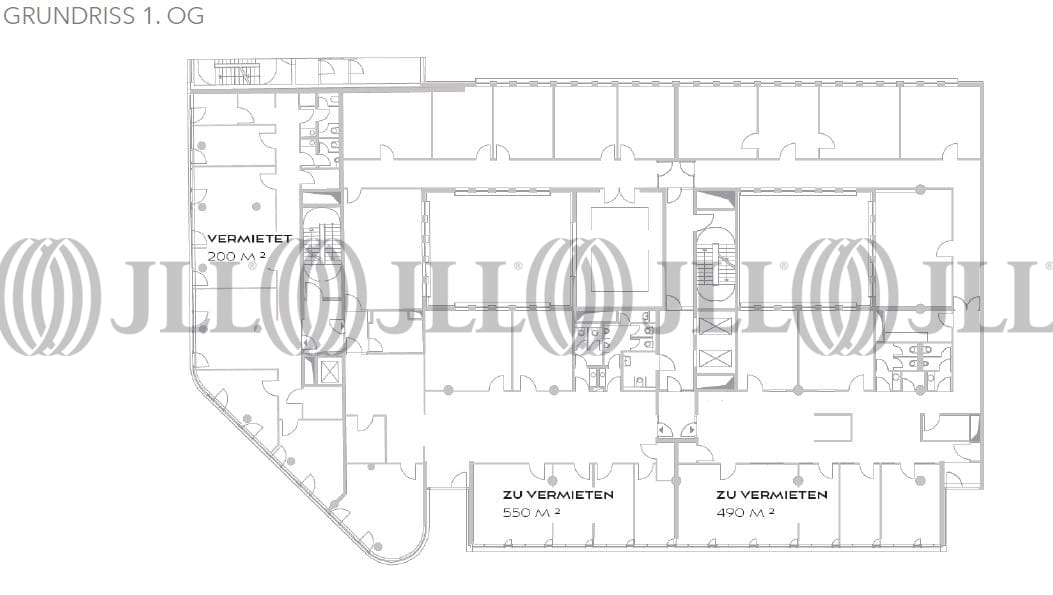
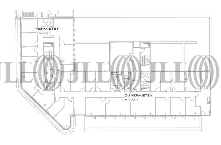
- Grundrisse
- Exposé herunterladen
- Ihr Kontakt
- Anfrage senden
Objekt
Das 7-geschossige Bürogebäude ist Bestandteil einer kompletten Neu-Bebauung des Carrés Elefantengasse/Bleichstraße/Vilbeler Straße/Konrad-Adenauer-Straße. Die Erschließung erfolgt über den Haupteingang Bleichstraße 1 und über einen zusätzlichen Eingang in der Konrad-Adenauer-Straße.
Verfügbare Fläche
Lage und Verkehrsanbindung
- Flughafen, Frankfurt am Main, Fahrzeit: 17 min
- Bundesautobahn, A 66, Fahrzeit: 11 min
- Bundesautobahn, A 661, Fahrzeit: 14 min
- Bus, Bushaltestelle Konstablerwache Buslinien 30, Gehzeit: 5 min
Ihr Kontakt

Christian Lütter
Ihr Kontakt
Marktinformationen
Mietmarkt
Innenstadt, Frankfurt am Main
Gew. Ø-Miete
24,90 € / m²
siehe 38 passende MietobjekteErfahren Sie mehr* Durchschnittspreis auf Grundlage historischer Transaktionen.













