Büros
ID F0876Provisionsfrei
Büroimmobilie - Mainz, Hartenberg / Münchfeld - F0876
Hartenberg / Münchfeld, 55122, Mainz, Rheinland-Pfalz
11,50 € / m²
- Fläche440 - 1.420 m²
- VerfügbarkeitSofort
- Objekt
- Ausstattung
- Lage und Verkehrsanbindung
- Grundrisse
- Exposé herunterladen
- Ihr Kontakt
- Anfrage senden
Objekt
Prädestiniert für die Nutzung als Büro, Praxis oder Produktionsfläche, bietet die Mieteinheit eine umfangreiche Ausstattung. Die Erdgeschosseinheit wird ebenerdig und rollstuhlgerecht über das Haupttreppenhaus erreicht. Im Foyer stehen zwei Personenaufzüge, sowie auch ein Lastenaufzug für Sie bereit. Die isolierverglasten Fenster und der innen liegende Blendschutz, sowie der außen liegende Sonnenschutz bieten optimale Arbeitsbedingungen, die durch die vorhandenen blendfreien Raumleuchten unterstrichen werden und die Anforderungen für Bildschirmarbeitsplätze erfüllen. Des Weiteren sind alle Büroräume mit einer variablen und barrierefreien Anbindung der Arbeitsplätze an die strukturierte Strom- und Datenverkabelung ausgestattet. Sowohl Teeküche, als auch moderne Toilettenanlagen sind vorhanden.
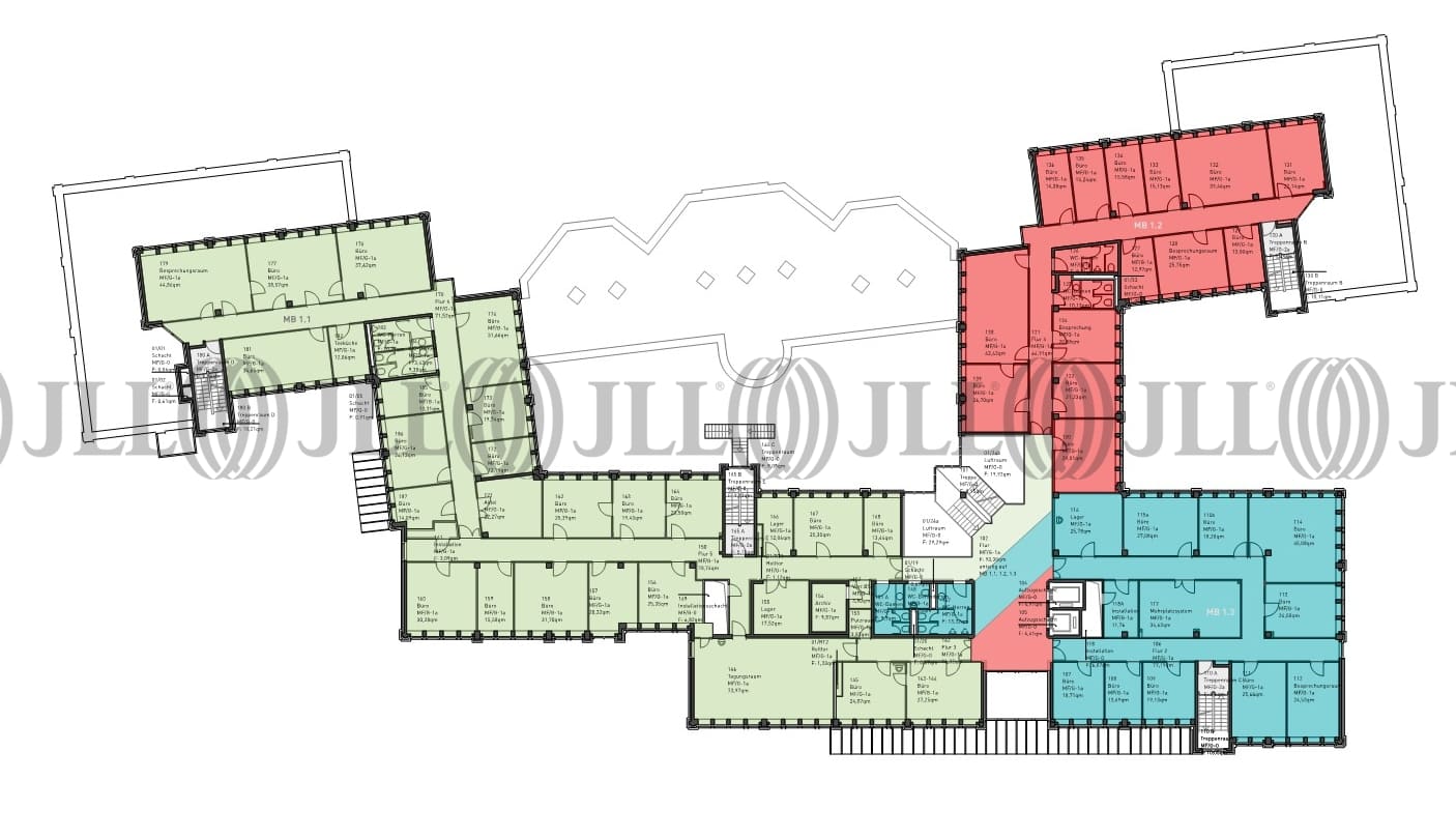
Verfügbare Fläche
Lage und Verkehrsanbindung
- Flughafen, Frankfurt am Main, Fahrzeit: 26 min
- Bundesautobahn, A 60, Fahrzeit: 5 min
- Bundesautobahn, A 3, Fahrzeit: 15 min
- Hauptbahnhof, Mainz Hbf, Fahrzeit: 4 min
- S-Bahn, Mainz Hbf, Linie S8, S9, Gehzeit: 15 min
Ihr Kontakt

Dennis Arnold
Ihr Kontakt





