Büros
ID F0849Provisionsfrei
Büroimmobilie - Neu-Isenburg - F0849
63263, Neu-Isenburg, Hessen
Kontaktieren Sie uns für den Preis
- Fläche345 - 2.694 m²
- VerfügbarkeitSofort
- Objekt
- Ausstattung
- Lage und Verkehrsanbindung
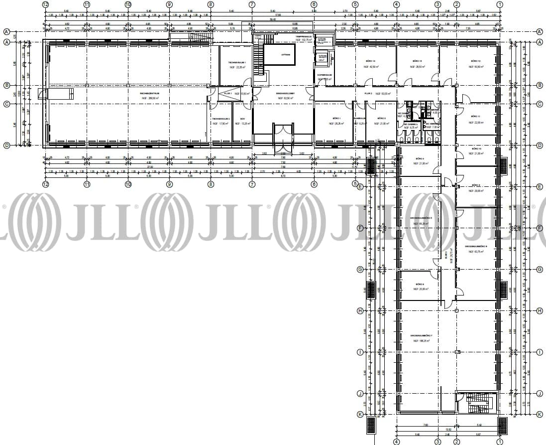
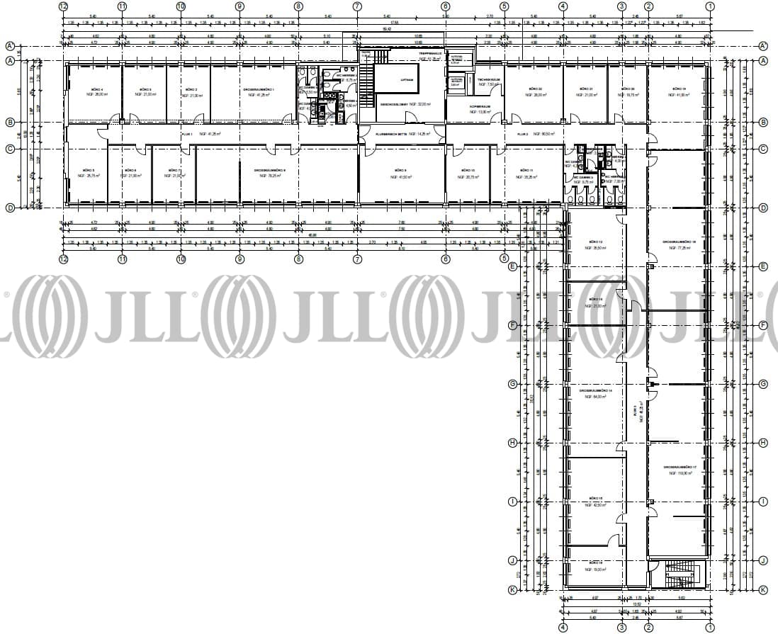
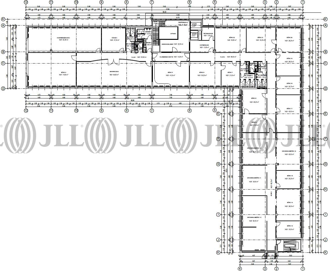
- Grundrisse
- Exposé herunterladen
- Ihr Kontakt
- Anfrage senden
Objekt
Der moderne Bürokomplex der Dornhofstraße 34 wurde im Jahr 2000 erbaut. Im darauffolgenden Jahr der Gebäudeteil der Dornhofstraße 36. Beide Objekte befinden sich auf einem attraktiven Grundstück mit altem Baumbestand in Neu-Isenburg. Bei dem Objekt selbst wurden ausschließlich hochwertige Materialien wie Naturstein in der Fassade verwendet. Dies schafft für die Mieter ein besonderes und repräsentatives Arbeitsambiente. Neben Außenstellplätzen stehen den Geschäftskunden und Mitarbeitern ausreichend Stellplätze im hauseigenen Parkdeck zur Verfügung.
Zertifizierungen
Energieausweis
Für diese Liegenschaft liegt ein Bedarfsausweis vom 30.06.2019 vom Eigentümer/Vermieter vor. Die wesentlichen Energieträger der Liegenschaft sind Erdgas leicht, Strom. Der Endenergiebedarf Strom beträgt 26.90 kWh/(m²*a). Der Endenergiebedarf Wärme beträgt 102.30 kWh/(m²*a).Verfügbare Fläche
Lage und Verkehrsanbindung
- Flughafen, Frankfurt am Main, Fahrzeit: 11 min
- Bundesautobahn, A 3, Fahrzeit: 6 min
- Bundesautobahn, A 661, Fahrzeit: 6 min
- Bundesstraße, B 44, Fahrzeit: 5 min
- Bundesstraße, B 46, Fahrzeit: 5 min
- Bus, Siemens-/Dornhofstraße, Linie OF-53, OF-67, Gehzeit: 7 min
Ihr Kontakt

Tim von Leliwa
Ihr Kontakt


























