Büros
ID F0775Büroimmobilie - Frankfurt am Main, Westend-Süd - F0775
Westend-Süd, 60486, Frankfurt am Main, Hessen
Provisionspflichtig: bei Anmietung 4 Netto-Monatsmieten zzgl. gesetzlicher Umsatzsteuer.** der Wert kann je nach Vertragslaufzeit variieren.
Kontaktieren Sie uns für den Preis
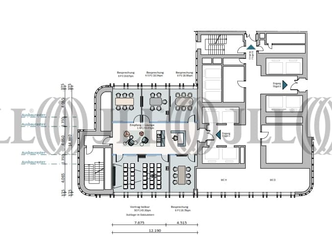
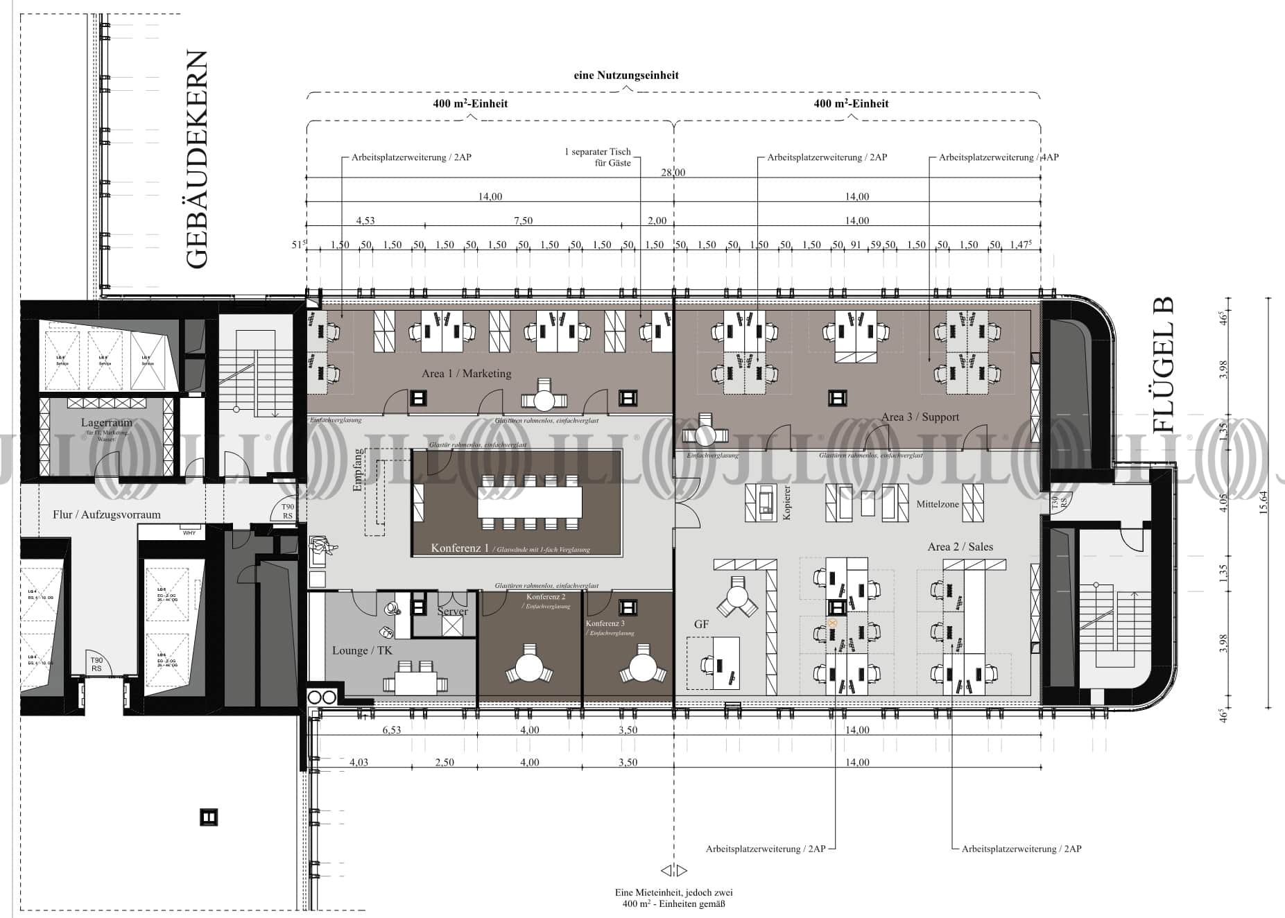
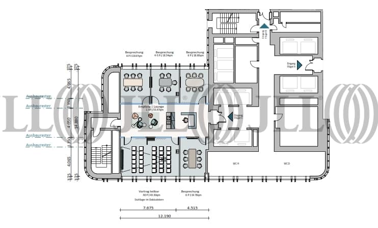
- Fläche221 - 5.518 m²
- VerfügbarkeitSofort
- Objekt
- Ausstattung
- Lage und Verkehrsanbindung
- Grundrisse
- Exposé herunterladen
- Ihr Kontakt
- Anfrage senden
Objekt
Der exklusive Büro- und Hotelkomplex dominiert durch seine markante Architektur, bestehend aus 3 miteinander verbundenen Türmen. Allein der höchste der drei Türme verfügt über 46 Etagen. Die Gesamtnutzfläche beträgt ca. 53.000 m², von denen ca. 24.700 m² für die Büronutzung vorgesehen sind.
Zertifizierungen
Energieausweis
DGNB: GoldFür diese Liegenschaft liegt ein Bedarfsausweis vom 24.09.2009 vom Eigentümer/Vermieter vor. Die wesentlichen Energieträger der Liegenschaft sind Erdgas schwer, Strom. Endenergiebedarf: 277.60000 kWh/(m²*a)
Verfügbare Fläche
Lage und Verkehrsanbindung
- Hauptbahnhof, Frankfurt am Main, Fahrzeit: 2 min
- Straßenbahn/Tram, Ludwig-Erhard-Anlage, Linie 16, 17, Gehzeit: 1 min
- Bundesautobahn, A 648, Fahrzeit: 5 min
- Bundesautobahn, A 5, Fahrzeit: 10 min
- Bundesautobahn, A 66, Fahrzeit: 10 min
- Flughafen, Frankfurt am Main, Fahrzeit: 17 min
Ihr Kontakt

Christian Lütter
Ihr Kontakt





























