Büros
ID F0771Provisionsfrei
Aktualisiert
Büroimmobilie - Frankfurt am Main, Innenstadt - F0771
Innenstadt, 60313, Frankfurt am Main, Hessen
Kontaktieren Sie uns für den Preis
- Fläche314 - 6.317 m²
- VerfügbarkeitSofort
- Objekt
- Ausstattung
- Lage und Verkehrsanbindung
- Grundrisse
- Exposé herunterladen
- Ihr Kontakt
- Anfrage senden
Objekt
Der 135 m hohe NEXTOWER ist das neue Wahrzeichen im PalaisQuartier. Auf 32 Etagen bietet er hochmoderne Büroflächen. Auffällig ist die elegante und geknickte Glasfassade aus matt schimmerndem Aluminium.
In der MyZeil Tiefgarage können bis zu ca. 1.399 Parkplätzen über den Betreiber APCOA angemietet werden.
In der MyZeil Tiefgarage können bis zu ca. 1.399 Parkplätzen über den Betreiber APCOA angemietet werden.
Zertifizierungen
Energieausweis
DGNB: GoldFür diese Liegenschaft liegt ein Bedarfsausweis vom 03.11.2021 vom Eigentümer/Vermieter vor. Die wesentlichen Energieträger der Liegenschaft sind Fernwärme, KWK, Strom. Endenergiebedarf: 115,33 kWh/(m²*a)
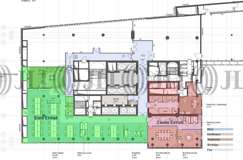
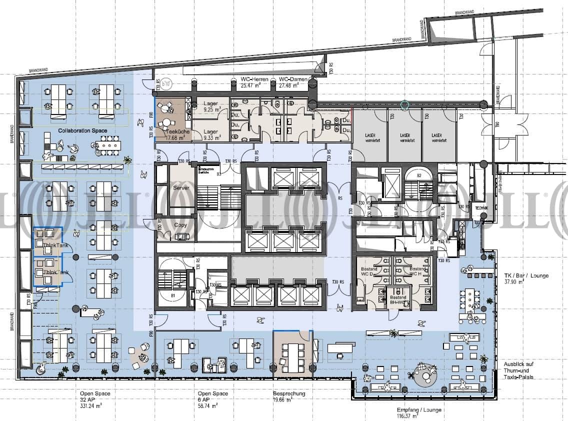
Verfügbare Fläche
Lage und Verkehrsanbindung
- Flughafen, Frankfurt am Main, Fahrzeit: 17 min
- Bundesautobahn, A 66, Fahrzeit: 5 min
- Bundesautobahn, A 5, Fahrzeit: 10 min
- Bus, Eschenheimer Tor, Linie 36, Gehzeit: 2 min
- S-Bahn, Hauptwache, Linie S1-S6, S8, S9, Gehzeit: 2 min
- U-Bahn, Hauptwache, Linie U1-U3, U8, Gehzeit: 2 min
- Hauptbahnhof, Frankfurt am Main, Fahrzeit: 6 min
Ihr Kontakt

Sven Sarge
Ihr Kontakt
Marktinformationen
Mietmarkt
Innenstadt, Frankfurt am Main
siehe 38 passende MietobjekteErfahren Sie mehr
* Durchschnittspreis auf Grundlage historischer Transaktionen.










