Büros
ID F0744Büroimmobilie - Frankfurt am Main, Westend-Süd - F0744
Westend-Süd, 60323, Frankfurt am Main, Hessen
Provisionspflichtig: bei Anmietung 4 Netto-Monatsmieten zzgl. gesetzlicher Umsatzsteuer.** der Wert kann je nach Vertragslaufzeit variieren.
25 € - 27 € / m²
- Fläche206 m²
- VerfügbarkeitSofort
- Objekt
- Ausstattung
- Lage und Verkehrsanbindung
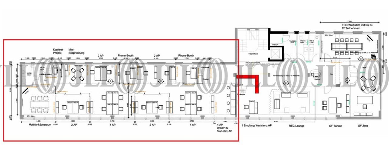
- Grundriss
- Exposé herunterladen
- Ihr Kontakt
- Anfrage senden
Objekt
Das revitalisierte Büro- und Geschäftsgebäude erhält über seine zeitgemäße Neugestaltung der Hauptfassade und die Aufwertung der Außenanlagen eine deutlich identifizierbare Adresse und damit einen hohen Wiedererkennungswert.
Zertifizierungen
Energieausweis
Für diese Liegenschaft liegt ein Bedarfsausweis vom 05.08.2008 vom Eigentümer/Vermieter vor. Der wesentliche Energieträger der Liegenschaft ist –. Endenergiebedarf: 133.10000 kWh/(m²*a)Verfügbare Fläche
Lage und Verkehrsanbindung
Das Gebäude befindet sich in ausgezeichneter Westendlage. Der zwischen Bankenviertel, Messe und Alleenring liegende Stadtteil bildet das exklusivste Viertel der Mainmetropole.
- Flughafen, Frankfurt am Main, Fahrzeit: 16 min
- Bundesautobahn, A 648, Fahrzeit: 5 min
- Bundesautobahn, A 5, Fahrzeit: 10 min
- Bus, Westend, Linie 36, Gehzeit: 2 min
- Hauptbahnhof, Frankfurt am Main, Fahrzeit: 6 min
- U-Bahn, Westend, Linie U6, U7, Gehzeit: 2 min
Ihr Kontakt

Isha Pundir
Ihr Kontakt






