Büros
ID F0702Aktualisiert
Büroimmobilie - Frankfurt am Main, Innenstadt - F0702
Innenstadt, 60313, Frankfurt am Main, Hessen
Provisionspflichtig: bei Anmietung 4 Netto-Monatsmieten zzgl. gesetzlicher Umsatzsteuer.** der Wert kann je nach Vertragslaufzeit variieren.
32 € - 33 € / m²
- Fläche224 - 466 m²
- VerfügbarkeitSofort
- Objekt
- Ausstattung
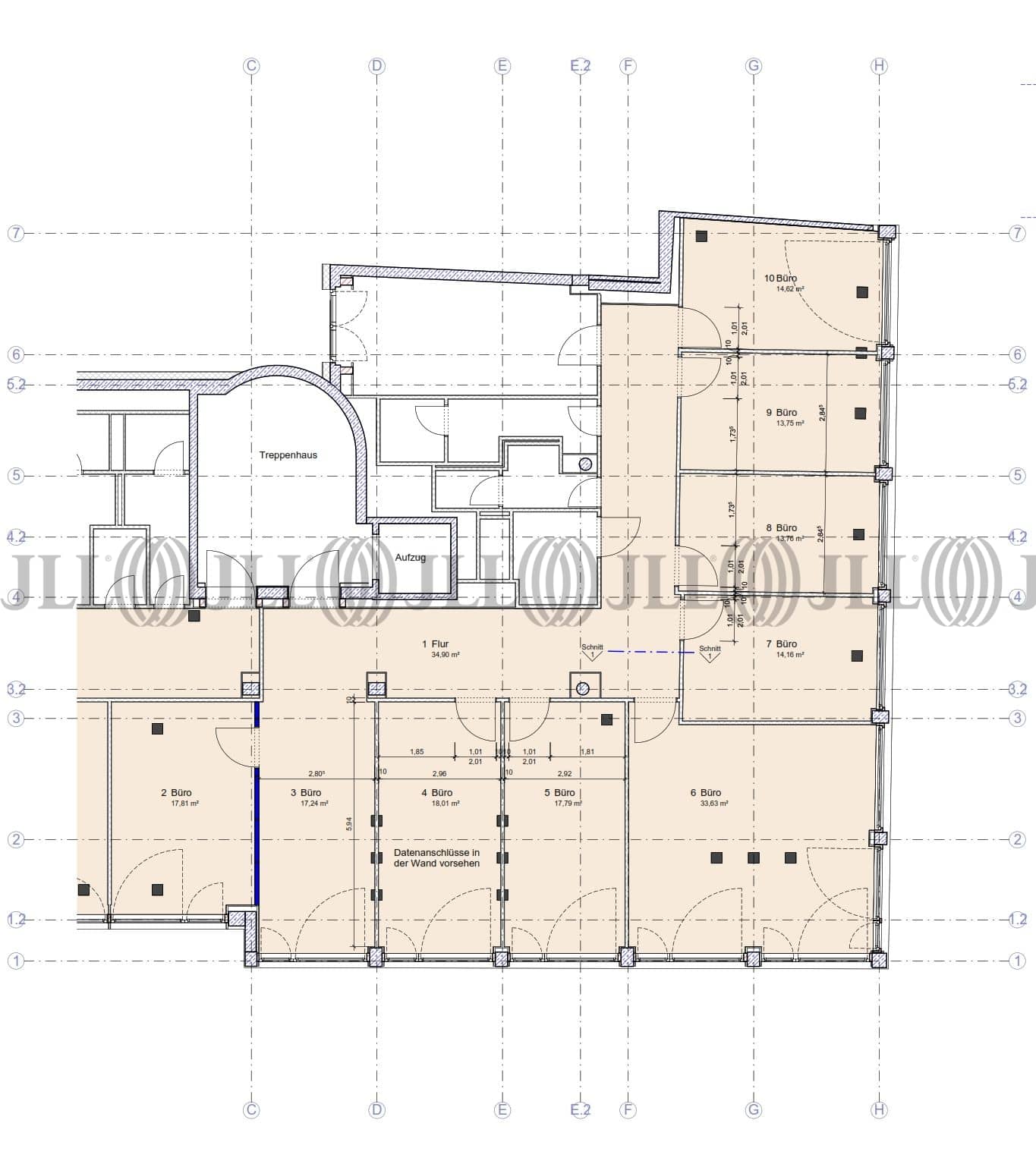
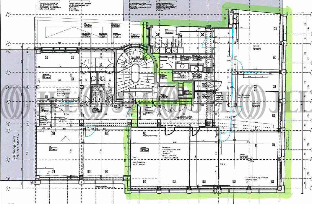
- Lage und Verkehrsanbindung
- Grundrisse
- Exposé herunterladen
- Ihr Kontakt
- Anfrage senden
Objekt
Bei der Liegenschaft handelt es sich um ein Büro- und Geschäftshaus, das komplett saniert und in allen Geschossen umgebaut wurde. Das Erdgeschoss sowie teilweise das 1. Obergeschoss enthalten reine Einzelhandelsflächen. Der bestehende Haupteingang (zu den Obergeschossen) an der Westfassade, Schillerstraße, wurde aufrecht erhalten und im Zuge der Errichtung der neuen Erdgeschossfassade aufgewertet.
Zertifizierungen
Energieausweis
Für diese Liegenschaft liegt ein Bedarfsausweis vom 09.07.2014 vom Eigentümer/Vermieter vor. Die wesentlichen Energieträger der Liegenschaft sind Erdgas leicht, Strom. Der Endenergiebedarf Strom beträgt 49.00 kWh/(m²*a). Der Endenergiebedarf Wärme beträgt 79.60 kWh/(m²*a).Verfügbare Fläche
Lage und Verkehrsanbindung
Das Gebäude befindet sich in hervorragender City-Lage an der autofreien Hauptwache. In unmittelbarer Nähe befindet sich die Frankfurter Börse und die Industrie- und Handelskammer Frankfurt am Main. Dienstleister des täglichen Bedarfs befinden sich in der Nähe.
- Bundesautobahn, A 648, Fahrzeit: 5 min
- Bundesautobahn, A 5, Fahrzeit: 10 min
- Bundesautobahn, A 66, Fahrzeit: 5 min
- S-Bahn, Hauptwache, Linie S1, S2, S3, S4, S5, S6, S8, S9, Gehzeit: 1 min
- U-Bahn, Hauptwache, Linie U1, U2, U3, U4, U6, U7, U8, Gehzeit: 1 min
- Hauptbahnhof, Frankfurt am Main, Fahrzeit: 4 min
- Hauptbahnhof, Frankfurt am Main, Gehzeit: 10 min
Ihr Kontakt

Genia Eitan
Ihr Kontakt
Marktinformationen
Mietmarkt
Innenstadt, Frankfurt am Main
Gew. Ø-Miete
32 € - 33 € / m²
siehe 36 passende MietobjekteErfahren Sie mehr* Durchschnittspreis auf Grundlage historischer Transaktionen.





