Büros
ID F0642Provisionsfrei
Büroimmobilie - Frankfurt am Main, Gutleutviertel - F0642
Gutleutviertel, 60327, Frankfurt am Main, Hessen
Kontaktieren Sie uns für den Preis
- Fläche320 - 2.680 m²
- VerfügbarkeitSofort
- Objekt
- Ausstattung
- Lage und Verkehrsanbindung
- Grundrisse
- Exposé herunterladen
- Ihr Kontakt
- Anfrage senden
Objekt
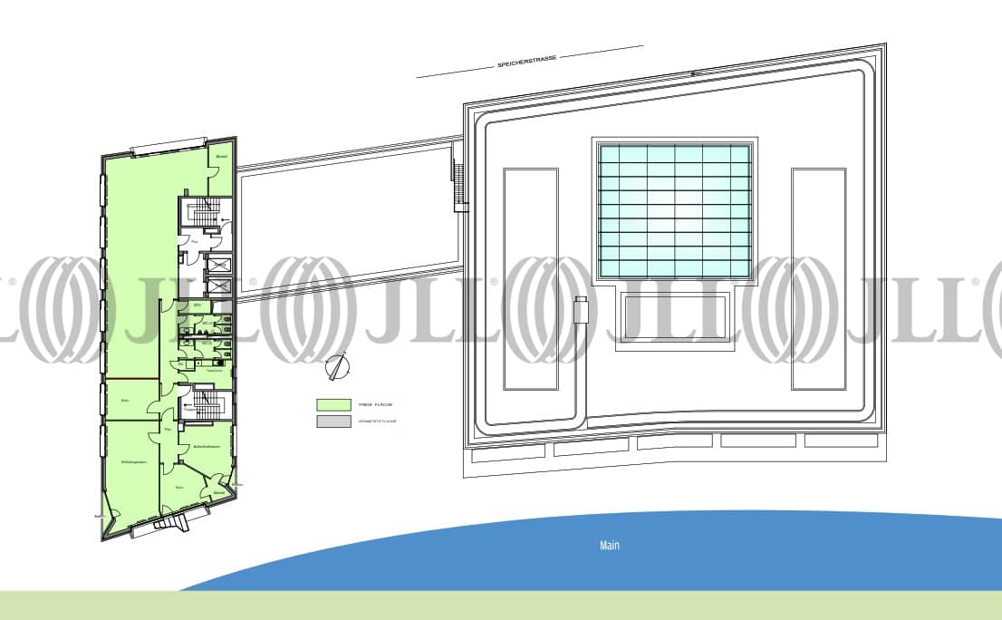
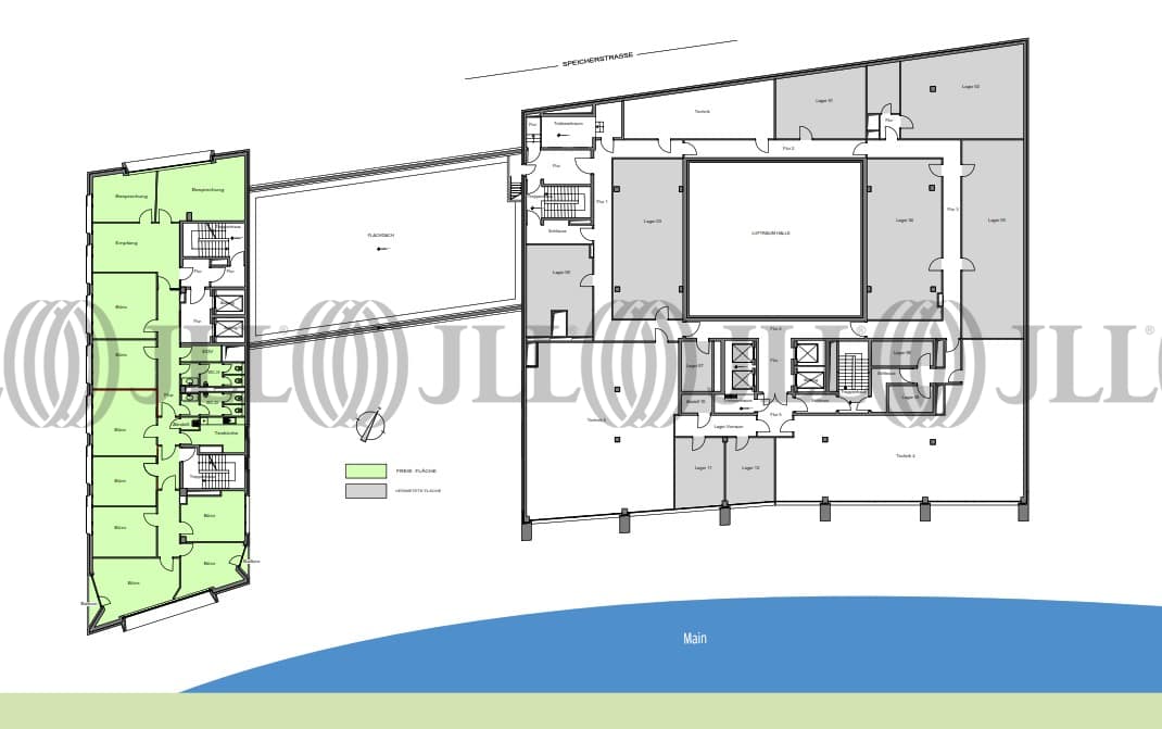
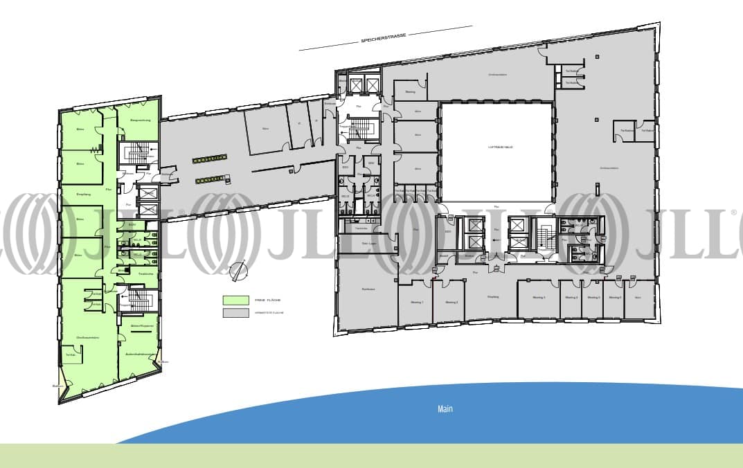
Das Objekt besteht aus zwei untereinander verbundenen Gebäudeteilen. Der so entstehende Hof ermöglicht vielen Büros einen Blick auf den Main. In Richtung Norden befindet sich ein lichtdurchflutetes Atrium mit Glasfassade.
Zertifizierungen
Energieausweis
Für diese Liegenschaft liegt ein Verbrauchsausweis vom 04.07.2014 vom Eigentümer/Vermieter vor. Die wesentlichen Energieträger der Liegenschaft sind Fernwärme, Nahwärme. Der Endenergieverbrauch Strom beträgt 199.00 kWh/(m²*a). Der Endenergieverbrauch Wärme beträgt 73.00 kWh/(m²*a).Verfügbare Fläche
Lage und Verkehrsanbindung
- Hauptbahnhof, Frankfurt, Fahrzeit: 4 min
- Hauptbahnhof, Frankfurt, Gehzeit: 10 min
- Straßenbahn/Tram, Baseler Platz, Tram 12, Tram 16, Tram 17, Tram 21, Gehzeit: 8 min
- Bus, Bushaltestelle Rotfeder Ring Buslinien 33, Gehzeit: 5 min
- Bundesautobahn, A 648, Fahrzeit: 8 min
- Bundesautobahn, A 5, Fahrzeit: 10 min
- Flughafen, Frankfurt am Main, Fahrzeit: 16 min
Ihr Kontakt

Genia Eitan
Ihr Kontakt










