Büros
ID F0633Provisionsfrei
Büroimmobilie - Frankfurt am Main, Westend-Süd - F0633
Westend-Süd, 60325, Frankfurt am Main, Hessen
24 € / m²
- Fläche518 - 1.179 m²
- VerfügbarkeitSofort
- Objekt
- Ausstattung
- Lage und Verkehrsanbindung
- Grundrisse
- Exposé herunterladen
- Ihr Kontakt
- Anfrage senden
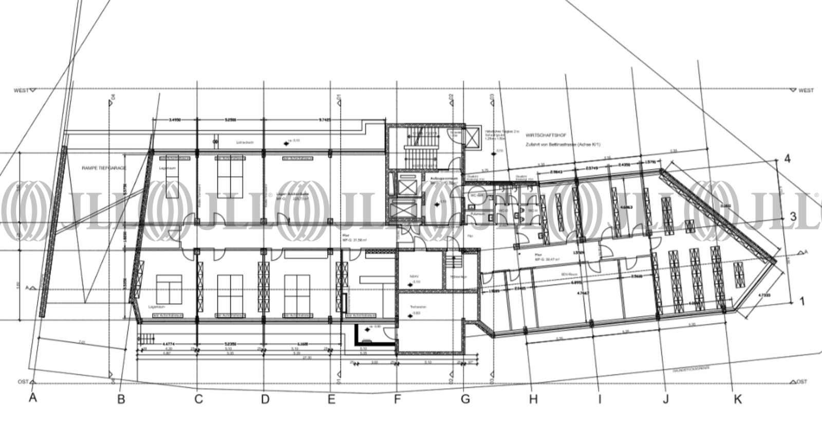
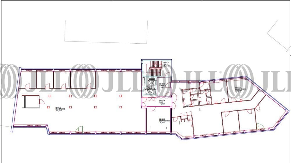
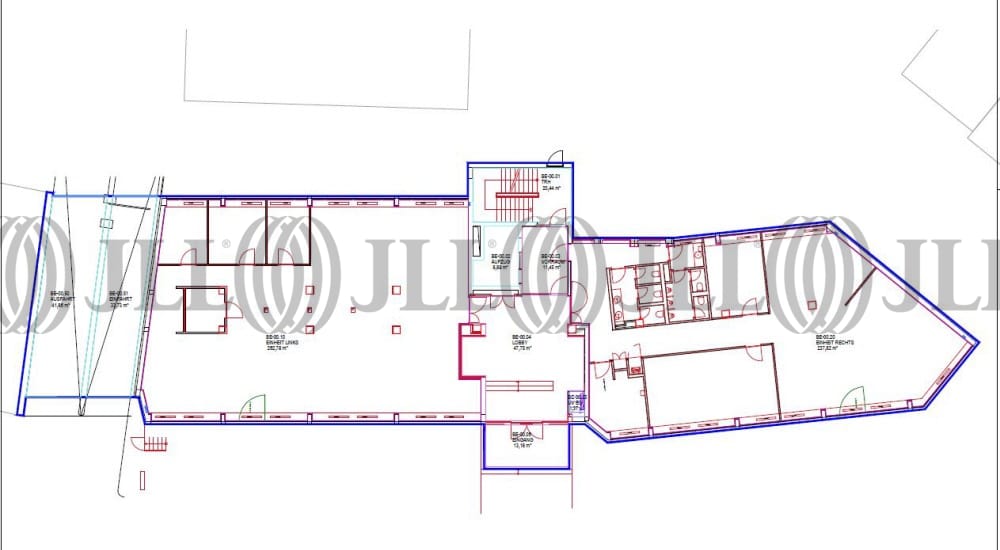
Objekt
Das dreiseitig freistehende Bürogebäude wurde vollständig entkernt, umfangreich saniert und modern ausgestattet. Die Büroflächen lassen sich flexibel und individuell nach Mieterwunsch aufteilen.
Zertifizierungen
Energieausweis
Für diese Liegenschaft liegt ein Bedarfsausweis vom 23.06.2020 vom Eigentümer/Vermieter vor. Die wesentlichen Energieträger der Liegenschaft sind Erdgas leicht, Strom. Der Endenergiebedarf Strom beträgt 102.50 kWh/(m²*a). Der Endenergiebedarf Wärme beträgt 152.70 kWh/(m²*a).Verfügbare Fläche
Lage und Verkehrsanbindung
- Flughafen, Frankfurt am Main, Fahrzeit: 15 min
- Bundesautobahn, A 648, Fahrzeit: 5 min
- Bundesautobahn, A 66, Fahrzeit: 10 min
- Bundesautobahn, A 5, Fahrzeit: 10 min
- Bundesstraße, B 44, Fahrzeit: 6 min
- Bundesstraße, B 8, Fahrzeit: 4 min
- Bus, Bettinaplatz, Linie 50, Gehzeit: 2 min
- Hauptbahnhof, Frankfurt am Main, Fahrzeit: 3 min
- Straßenbahn/Tram, Festhalle/Messe, Linie 16, 17, Gehzeit: 4 min
Ihr Kontakt

Dennis Arnold
Ihr Kontakt












