Büros
ID F0331Provisionsfrei
Büroimmobilie - Wiesbaden, Biebrich - F0331
Biebrich, 65203, Wiesbaden, Hessen
Kontaktieren Sie uns für den Preis
- Fläche260 - 6.635 m²
- VerfügbarkeitSofort
- Objekt
- Ausstattung
- Lage und Verkehrsanbindung
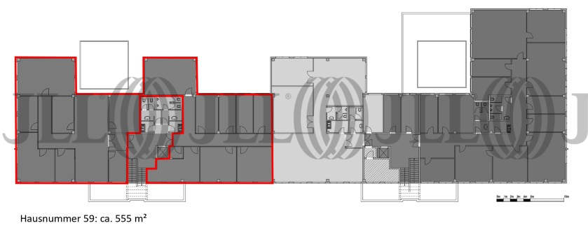
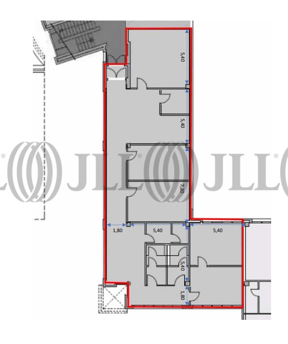
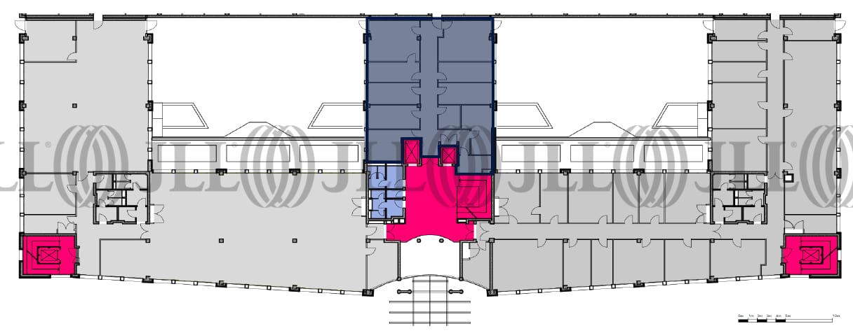
- Grundrisse
- Exposé herunterladen
- Ihr Kontakt
- Anfrage senden
Objekt
Der Rheinpark Wiesbaden umfasst insgesamt 34.200 m² Nutzfläche, bestehend aus Büro-, Praxis-, Service- und Lagerbereichen. Die gemischt genutzte Unternehmensimmobilie wurde zwischen 1975 und 1994 errichtet, wobei der 1975 erbaute Teil zunächst als Produktionshalle diente und mittlerweile Logistik- und Freizeitnutzungen ermöglicht. Die Objekte im Rheinpark Wiesbaden eignen sich aufgrund ihrer Unterteilung in mehrere flexibel gestaltbare Mieteinheiten für Unternehmen unterschiedlicher Branchen und Nutzungsweisen. Die oberen Etagen der ab 1990 errichteten Gebäude im Rheinpark Wiesbaden sind mit hellen, flexiblen Büro- und Praxisflächen ausgestattet. Im Erdgeschoss befinden sich praktische Lager- und Serviceeinheiten, die über Rampentore andienbar sind.
Verfügbare Fläche
Lage und Verkehrsanbindung
Der Rheinpark liegt direkt am Autobahnkreuz A 66 / A 643 zwischen Wiesbaden und Mainz und profitiert vom starken wirtschaftlichen Umfeld der Gewerbestandorte in der Rhein-Main-Region. Der Flughafen Frankfurt am Main ist lediglich 20 Fahrminuten entfernt und sowohl die Mainzer als auch die Wiesbadener Innenstadt können innerhalb von zehn bis 15 Minuten erreicht werden.
- Bus, Hagenauer Straße, Linie 9, 14, 45, N3, Gehzeit: 2 min
- Bundesautobahn, A 66, Fahrzeit: 5 min
- Bundesautobahn, A 3, Fahrzeit: 10 min
- Bundesstraße, B 262, Fahrzeit: 10 min
- Bundesstraße, B 263, Fahrzeit: 10 min
- Flughafen, Frankfurt am Main, Fahrzeit: 21 min
Ihr Kontakt

Christian Lütter
Ihr Kontakt









