Büros
ID F0293Provisionsfrei
Büroimmobilie - Neu-Isenburg - F0293
63263, Neu-Isenburg, Hessen
Kontaktieren Sie uns für den Preis
- Fläche356 - 2.267 m²
- VerfügbarkeitSofort
- Objekt
- Ausstattung
- Lage und Verkehrsanbindung
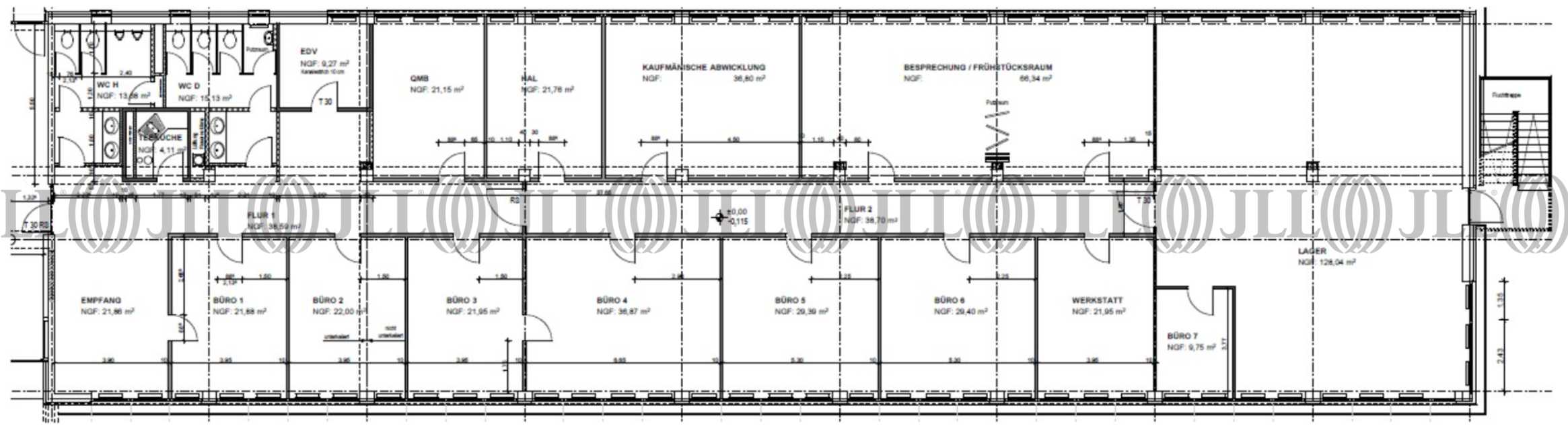
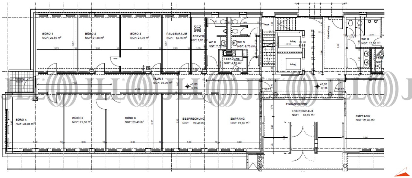
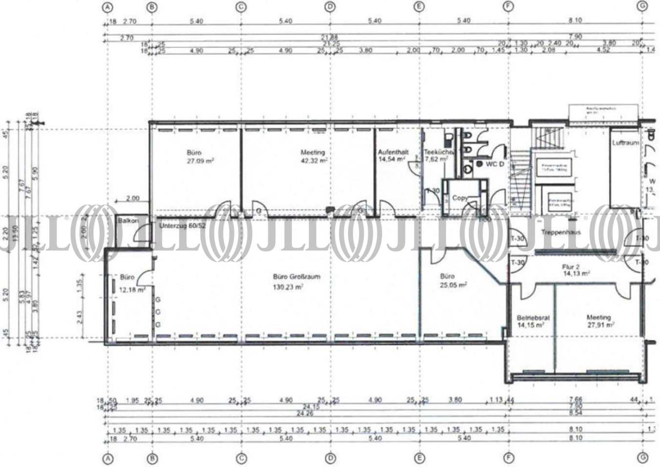
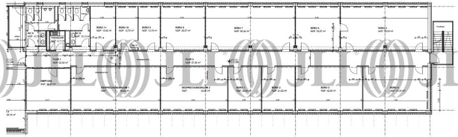
- Grundrisse
- Exposé herunterladen
- Ihr Kontakt
- Anfrage senden
Objekt
Der moderne Bürokomplex der Dornhofstraße 34 wurde im Jahr 2000 erbaut. Im darauffolgenden Jahr der Gebäudeteil der Dornhofstraße 36. Beide Objekte befinden sich auf einem attraktiven Grundstück mit altem Baumbestand in Neu-Isenburg. Bei dem Objekt selbst wurden ausschließlich hochwertige Materialien wie Naturstein in der Fassade verwendet. Dies schafft für die Mieter ein besonderes und repräsentatives Arbeitsambiente. Neben Außenstellplätzen stehen den Geschäftskunden und Mitarbeitern ausreichend Stellplätze im hauseigenen Parkdeck zur Verfügung.
Zertifizierungen
Energieausweis
Für diese Liegenschaft liegt ein Verbrauchsausweis vom 29.08.2019 vom Eigentümer/Vermieter vor. Die wesentlichen Energieträger der Liegenschaft sind Erdgas leicht, Strom. Der Endenergieverbrauch Strom beträgt 38.50 kWh/(m²*a). Der Endenergieverbrauch Wärme beträgt 62.50 kWh/(m²*a).Verfügbare Fläche
Lage und Verkehrsanbindung
- Flughafen, Frankfurt am Main, Fahrzeit: 11 min
- Bundesautobahn, A 3, Fahrzeit: 6 min
- Bundesautobahn, A 661, Fahrzeit: 6 min
- Bundesstraße, B 44, Fahrzeit: 5 min
- Bundesstraße, B 46, Fahrzeit: 5 min
- Bus, BuSiemens-/Dornhofstraße, Linie OF-53, OF-67, Gehzeit: 7 min
Ihr Kontakt

Tim von Leliwa
Ihr Kontakt















