Büros
ID F0288Provisionsfrei
Aktualisiert
Büroimmobilie - Frankfurt am Main, Bockenheim - F0288
Bockenheim, 60487, Frankfurt am Main, Hessen
Kontaktieren Sie uns für den Preis
- Fläche554 - 1.778 m²
- VerfügbarkeitSofort
- Objekt
- Ausstattung
- Lage und Verkehrsanbindung
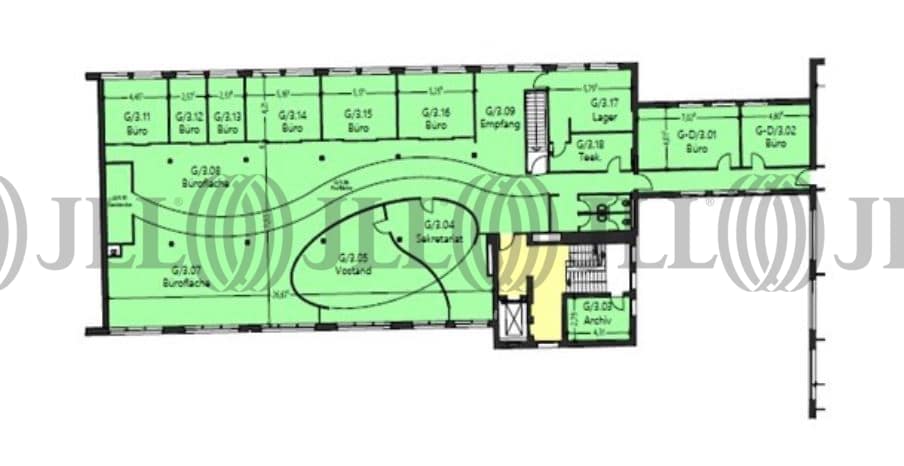
- Grundrisse
- Exposé herunterladen
- Ihr Kontakt
- Anfrage senden
Objekt
Das ALVEARIUM ist ein Gebäudekomplex, bei dem eine komplette Revitalisierung des ehemaligen Hartmann + Braun Areals erfolgte. Hierbei wurden die bestehenden Gebäude komplett saniert und mit den heutigen Anforderungen an moderne Büroräume ausgestattet.
Die Liegenschaft teilt sich in verschiedene Gebäude- und Nutzungsbereiche auf. Entlang der Gräfstraße wurde das sogenannte Hochhaus mit insgesamt ca. 8.000 m² NGF komplett saniert.
Die Liegenschaft teilt sich in verschiedene Gebäude- und Nutzungsbereiche auf. Entlang der Gräfstraße wurde das sogenannte Hochhaus mit insgesamt ca. 8.000 m² NGF komplett saniert.
Zertifizierungen
Energieausweis
Für diese Liegenschaft liegt ein Verbrauchsausweis vom 09.09.2013 vom Eigentümer/Vermieter vor. Der wesentliche Energieträger der Liegenschaft ist Erdgas schwer. Der Endenergieverbrauch Strom beträgt 30.00 kWh/(m²*a). Der Endenergieverbrauch Wärme beträgt 51.00 kWh/(m²*a).Verfügbare Fläche
Lage und Verkehrsanbindung
Die Liegenschaft befindet sich im Westen von Frankfurt. Die hervorragende Lage unweit der Universität ist einerseits durch die Nähe zum Westend und der City und anderseits durch eine ideale Anbindung an das öffentliche Verkehrsnetz gekennzeichnet. Dienstleister des täglichen Bedarfs befinden sich in der Nähe.
- Flughafen, Frankfurt am Main, Fahrzeit: 14 min
- Bundesautobahn, A 66, Fahrzeit: 5 min
- Bundesautobahn, A 5, Fahrzeit: 10 min
- Bus, Bockenheimer Warte, Linie 32, 36, 50, 75, Gehzeit: 3 min
- U-Bahn, Bockenheimer Warte, Linie U4, U6, U7, Gehzeit: 3 min
- Straßenbahn/Tram, Bockenheimer Warte, Linie 16, Gehzeit: 3 min
- Hauptbahnhof, Frankfurt am Main, Fahrzeit: 8 min
Ihr Kontakt

Dennis Arnold
Ihr Kontakt
Marktinformationen
Mietmarkt
Bockenheim, Frankfurt am Main
siehe 24 passende MietobjekteErfahren Sie mehr
* Durchschnittspreis auf Grundlage historischer Transaktionen.

















