Büros
ID F0268Provisionsfrei
Aktualisiert
Büroimmobilie - Frankfurt am Main, Bockenheim - F0268
Bockenheim, 60486, Frankfurt am Main, Hessen
14,50 € / m²
- Fläche262 - 2.307 m²
- VerfügbarkeitSofort
- Objekt
- Ausstattung
- Lage und Verkehrsanbindung
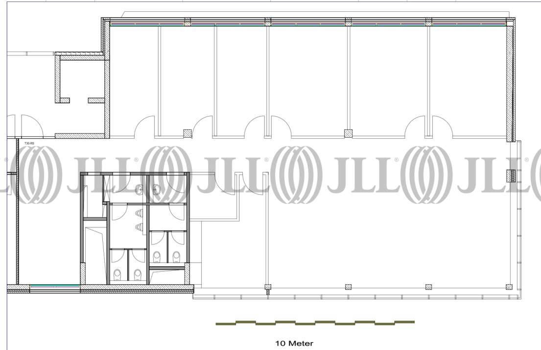
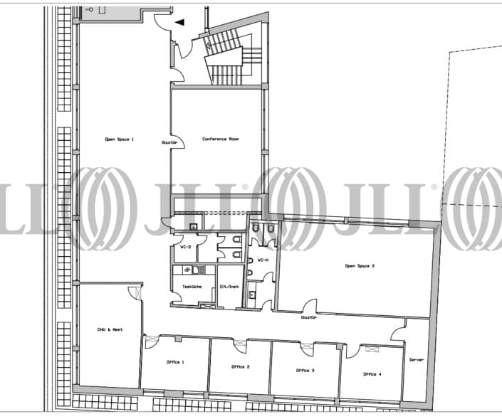
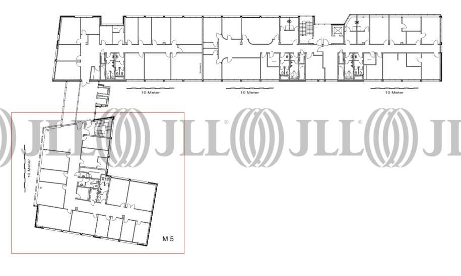
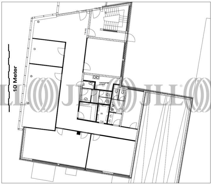
- Grundrisse
- Exposé herunterladen
- Ihr Kontakt
- Anfrage senden
Objekt
Das 7-geschossige Bürogebäude Gutenbergpalais wird durch eine repräsentative 2-geschossige Eingangshalle erschlossen. Die Büroflächen verfügen über eine hochwertige Ausstattung.
Zertifizierungen
Energieausweis
Für diese Liegenschaft liegt ein Verbrauchsausweis vom 26.09.2009 vom Eigentümer/Vermieter vor. Die wesentlichen Energieträger der Liegenschaft sind Erdgas leicht, Strom. Der Endenergieverbrauch Strom beträgt 98.70 kWh/(m²*a). Der Endenergieverbrauch Wärme beträgt 103.10 kWh/(m²*a).Verfügbare Fläche
Lage und Verkehrsanbindung
- Flughafen, Frankfurt am Main, Fahrzeit: 16 min
- Bundesautobahn, A 648, Fahrzeit: 4 min
- Bundesautobahn, A 5, Fahrzeit: 8 min
- Bus, Katharinenkreisel, Linie 50, Gehzeit: 3 min
- Straßenbahn/Tram, An der Dammheide, Linie 17, Gehzeit: 2 min
- Hauptbahnhof, Frankfurt am Main, Fahrzeit: 12 min
Ihr Kontakt

Dennis Arnold
Ihr Kontakt
Marktinformationen
Mietmarkt
Bockenheim, Frankfurt am Main
Gew. Ø-Miete
14,50 € / m²
siehe 24 passende MietobjekteErfahren Sie mehr* Durchschnittspreis auf Grundlage historischer Transaktionen.






