Büros
ID F0261Provisionsfrei
Büroimmobilie - Frankfurt am Main, Ostend - F0261
Ostend, 60314, Frankfurt am Main, Hessen
20,50 € / m²
- Fläche456 - 2.997 m²
- VerfügbarkeitSofort
- Objekt
- Ausstattung
- Lage und Verkehrsanbindung
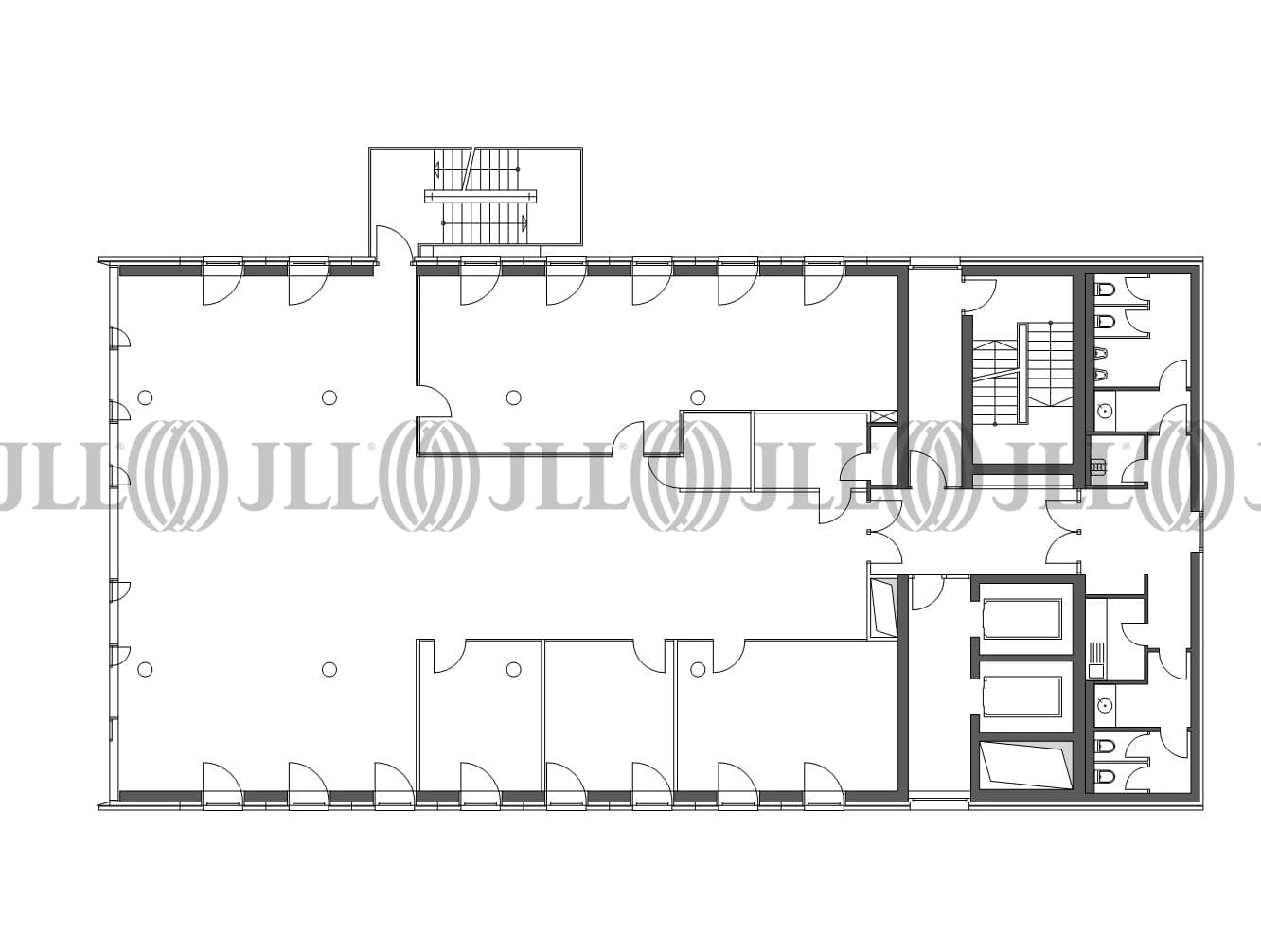
- Grundrisse
- Exposé herunterladen
- Ihr Kontakt
- Anfrage senden
Objekt
Das Objekt Upper Eastend ist ein architektonisches Highlight im Zentrum der Hanauer Landstraße. Die Büro-/Service- und Gastronomieflächen verfügen über eine qualitativ hochwertige Ausstattung.
Zertifizierungen
Energieausweis
BREEAM: GoodFür diese Liegenschaft liegt ein Bedarfsausweis vom 09.09.2015 vom Eigentümer/Vermieter vor. Die wesentlichen Energieträger der Liegenschaft sind Erdgas schwer, Strom. Der Endenergiebedarf Strom beträgt 33.80 kWh/(m²*a). Der Endenergiebedarf Wärme beträgt 72.20 kWh/(m²*a).
Verfügbare Fläche
Lage und Verkehrsanbindung
- Flughafen, Frankfurt am Main, Fahrzeit: 17 min
- Bundesautobahn, A 661, Fahrzeit: 3 min
- Bundesautobahn, A 3, Fahrzeit: 6 min
- Bus, Ostbahnhof, Linie 31, 32, Gehzeit: 8 min
- Straßenbahn/Tram, Ostbahnhof, Linie 11, Gehzeit: 1 min
- Hauptbahnhof, Frankfurt am Main, Gehzeit: 1 min
Ihr Kontakt

Genia Eitan
Ihr Kontakt
Marktinformationen
Mietmarkt
Ostend, Frankfurt am Main
siehe 22 passende MietobjekteErfahren Sie mehr
* Durchschnittspreis auf Grundlage historischer Transaktionen.




