Büros
ID F0219Provisionsfrei
Büroimmobilie - Frankfurt am Main, Sachsenhausen-Nord - F0219
Sachsenhausen-Nord, 60596, Frankfurt am Main, Hessen
25 € / m²
- Fläche295 m²
- VerfügbarkeitAuf Anfrage
- Objekt
- Ausstattung
- Lage und Verkehrsanbindung
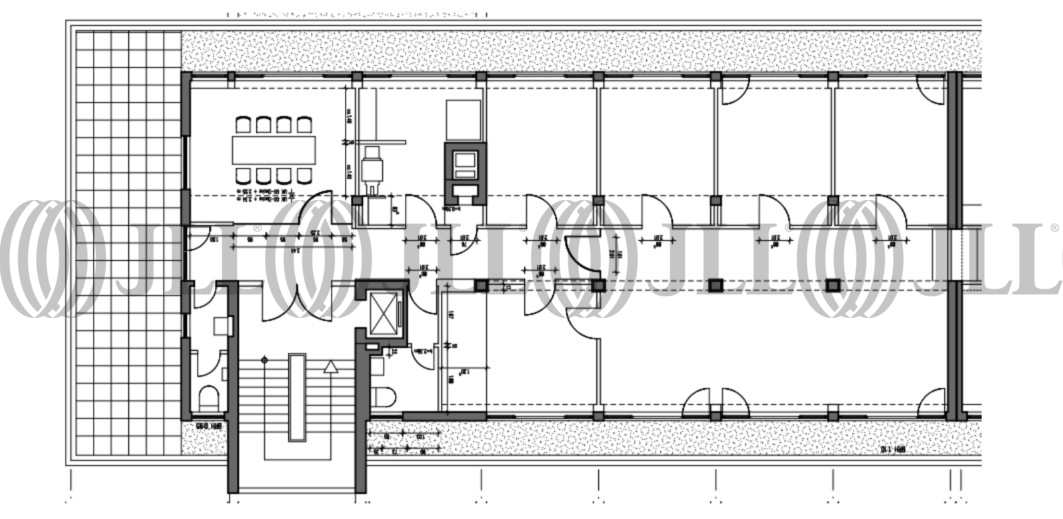
- Grundriss
- Exposé herunterladen
- Ihr Kontakt
- Anfrage senden
Objekt
Das 6-geschossige Bürogebäude ist mit einer Natursteinfassade versehen und verfügt über 2 repräsentative Eingangsbereiche mit jeweils einem Personenaufzug. Aufgrund eines flexiblen Trennwandsystems sind die Mietflächen gestaltbar. Einzel-, Kombi- und Großraumlösungen sind möglich.
Zertifizierungen
Energieausweis
Für diese Liegenschaft liegt ein Bedarfsausweis vom 02.11.2014 vom Eigentümer/Vermieter vor. Die wesentlichen Energieträger der Liegenschaft sind Erdgas schwer, Strom. Der Endenergiebedarf Strom beträgt 43.60 kWh/(m²*a). Der Endenergiebedarf Wärme beträgt 166.90 kWh/(m²*a).Verfügbare Fläche
Lage und Verkehrsanbindung
- Flughafen, Frankfurt am Main, Fahrzeit: 25 min
- Bundesautobahn, A 3, Fahrzeit: 10 min
- Bundesautobahn, A 5, Fahrzeit: 15 min
Ihr Kontakt

Christian Lütter
Ihr Kontakt






