Büros
ID F0195Provisionsfrei
Büroimmobilie - Frankfurt am Main, Niederrad - F0195
Niederrad, 60528, Frankfurt am Main, Hessen
13 € / m²
- Fläche252 - 9.088 m²
- VerfügbarkeitSofort
- Objekt
- Ausstattung
- Lage und Verkehrsanbindung
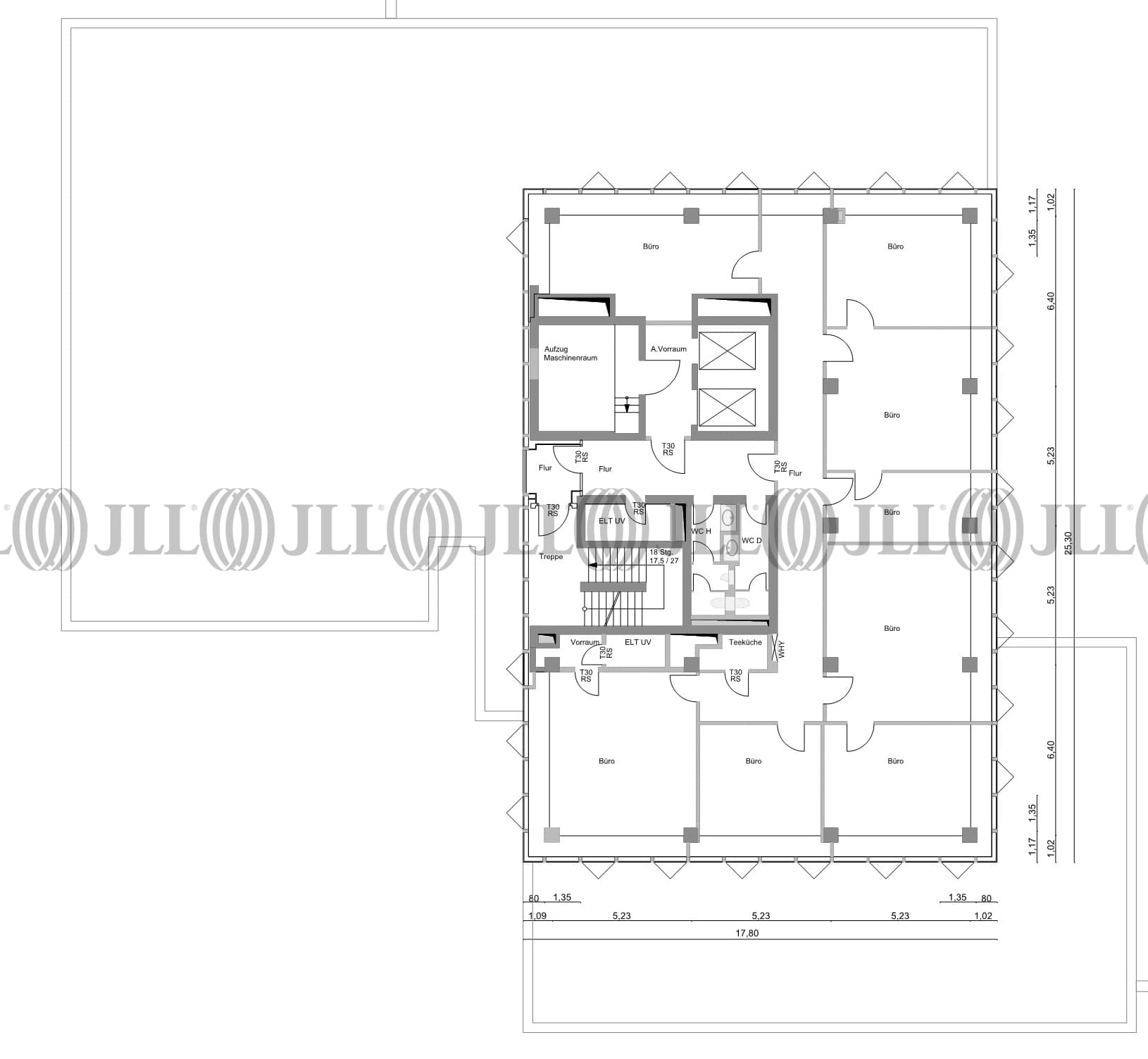
- Grundrisse
- Exposé herunterladen
- Ihr Kontakt
- Anfrage senden
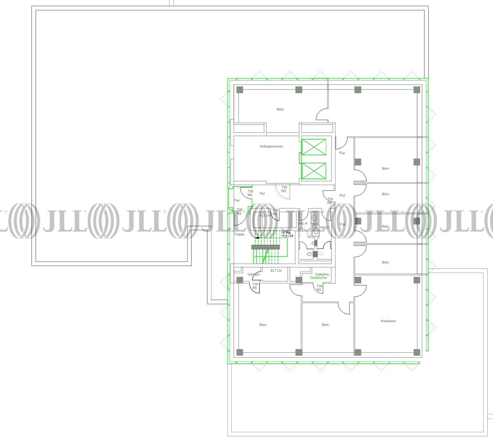
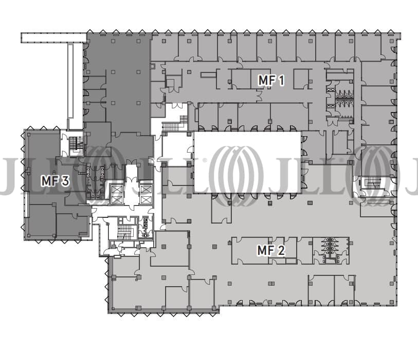
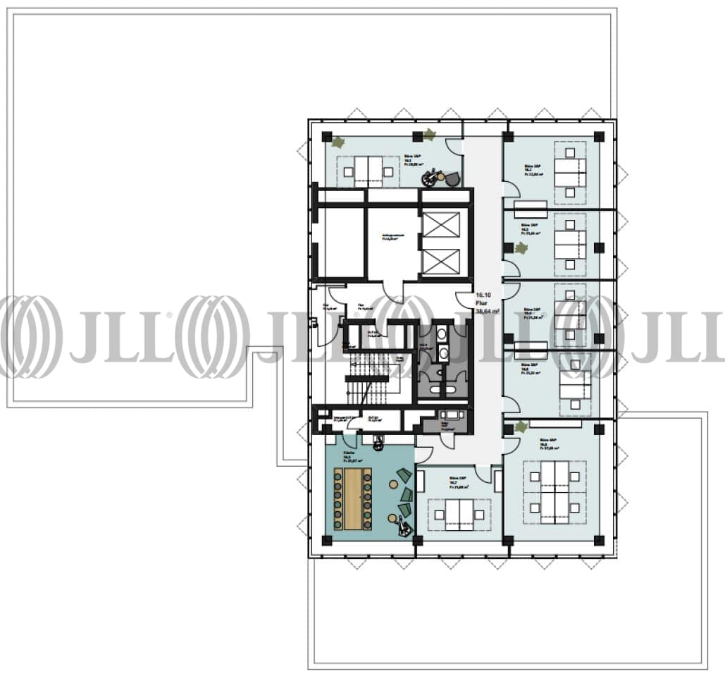
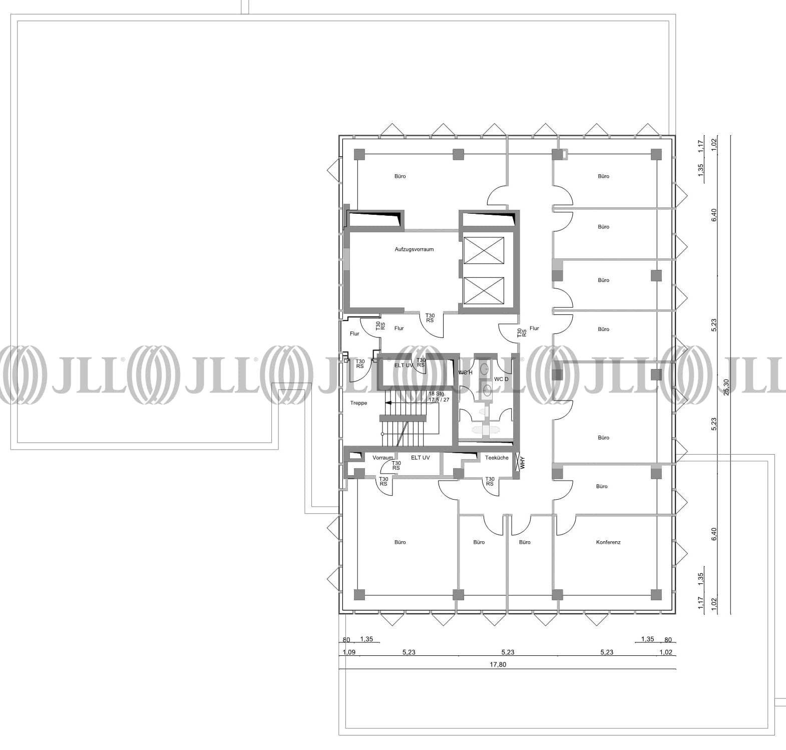
Objekt
Der Access Tower mit seiner auffälligen und repräsentativen Glasfassade verfügt auf 20 Etagen über ca. 20.559 m² vermietbare Flächen. Die Grundrisse sind hochflexibel für Zellen-, Großraum- oder Kombibüros nutzbar.
Zertifizierungen
Energieausweis
LEED: GoldFür diese Liegenschaft liegt ein Verbrauchsausweis vom 14.05.2014 vom Eigentümer/Vermieter vor. Die wesentlichen Energieträger der Liegenschaft sind Fernwärme, Strom. Der Endenergieverbrauch Strom beträgt 122.00 kWh/(m²*a). Der Endenergieverbrauch Wärme beträgt 90.00 kWh/(m²*a).
Verfügbare Fläche
Lage und Verkehrsanbindung
- Flughafen, Frankfurt am Main, Fahrzeit: 10 min
- Bundesautobahn, A 5, Fahrzeit: 5 min
- Bundesautobahn, A 3, Fahrzeit: 7 min
- Bundesautobahn, A 661, Fahrzeit: 21 min
- Bundesstraße, B 459, Fahrzeit: 24 min
- Bundesstraße, B 43, Fahrzeit: 12 min
- Bundesstraße, B 40, Fahrzeit: 12 min
- Bus, Niederrad Bahnhof, Linie 78, 79, Gehzeit: 10 min
- Straßenbahn/Tram, Lyoner Straße, Linie 12, 19, Gehzeit: 3 min
- Hauptbahnhof, Frankfurt am Main, Fahrzeit: 12 min
Ihr Kontakt

Julian Conzen
Ihr Kontakt











