Büros
ID F0191Büroimmobilie - Neu-Isenburg - F0191
63263, Neu-Isenburg, Hessen
Provisionspflichtig: bei Anmietung 4 Netto-Monatsmieten zzgl. gesetzlicher Umsatzsteuer.** der Wert kann je nach Vertragslaufzeit variieren.
9,50 € / m²
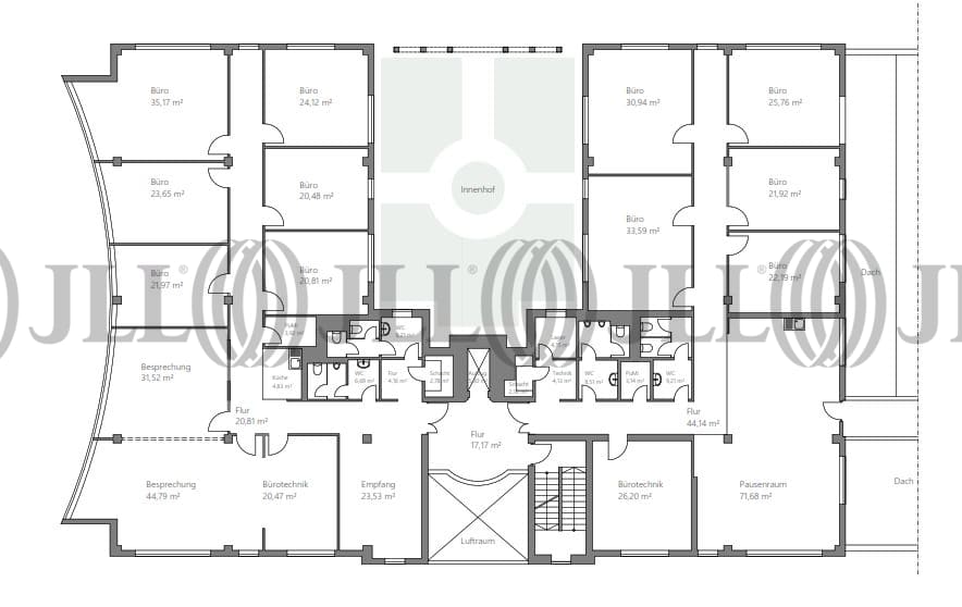
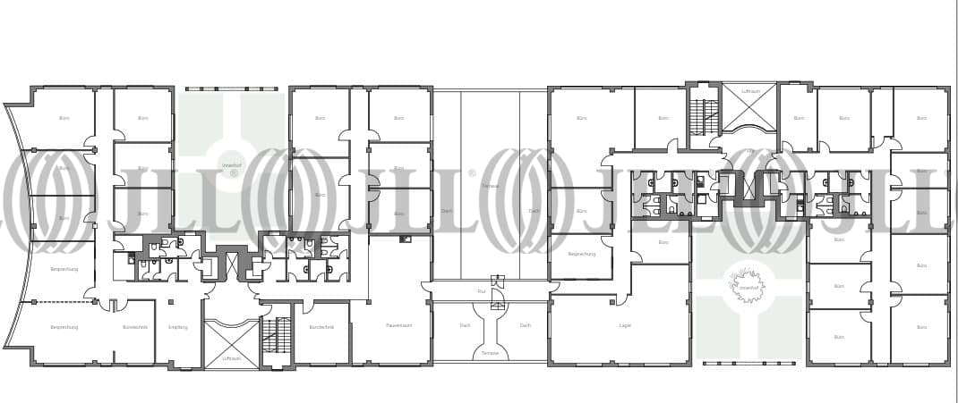
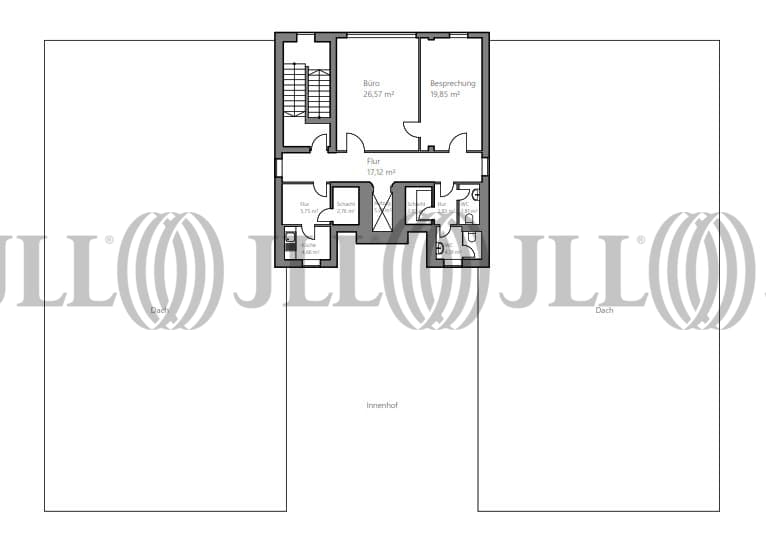
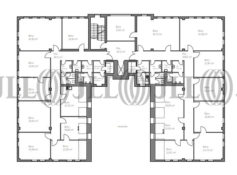
- Fläche100 - 6.158 m²
- VerfügbarkeitSofort
- Objekt
- Ausstattung
- Lage und Verkehrsanbindung
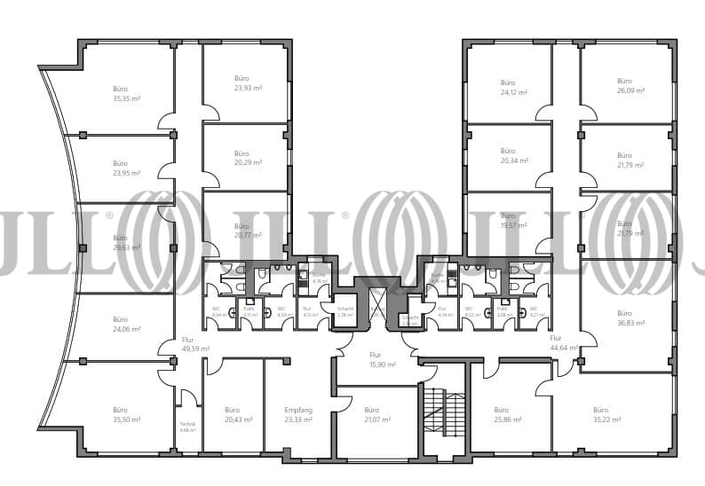
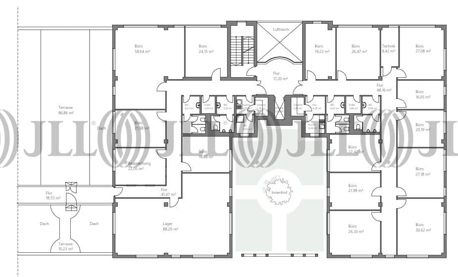
- Grundrisse
- Exposé herunterladen
- Ihr Kontakt
- Anfrage senden
Objekt
Die zeitlose Architektur der Büroimmobilie überzeugt mit einer imposanten Glasfassade über fünf Geschosse. Die separaten Eingangsbereiche der beiden Gebäude bieten Ihrem Unternehmen nicht nur die Möglichkeit der etagenbezogene Anmietung, sondern auch optimale Voraussetzungen zur bauteilbezogenen Anmietungen. Jedes der Gebäude besitzt einen abgegrenzten Innenhof, der als natürliche Lichtquelle für die angrenzenden Büroflächen dient.
Zertifizierungen
Energieausweis
Für diese Liegenschaft liegt ein Bedarfsausweis vom 03.08.2020 vom Eigentümer/Vermieter vor. Die wesentlichen Energieträger der Liegenschaft sind Erdgas leicht, Strom. Der Endenergiebedarf Strom beträgt 21.30 kWh/(m²*a). Der Endenergiebedarf Wärme beträgt 132.70 kWh/(m²*a).Verfügbare Fläche
Lage und Verkehrsanbindung
- Flughafen, Frankfurt am Main, Fahrzeit: 10 min
- Bundesautobahn, A 3, Fahrzeit: 6 min
- Bundesautobahn, A 661, Fahrzeit: 7 min
- Bundesautobahn, A 5, Fahrzeit: 7 min
- Bundesstraße, B 44, Fahrzeit: 5 min
- Bundesstraße, B 43, Fahrzeit: 7 min
- Bus, Siemens-/Dornhofstraße, Linie OF-53, OF-67, Gehzeit: 5 min
Ihr Kontakt

Isha Pundir
Ihr Kontakt






