Büros
ID F0107Provisionsfrei
Büroimmobilie - Frankfurt am Main, Rödelheim - F0107
Rödelheim, 60489, Frankfurt am Main, Hessen
Kontaktieren Sie uns für den Preis
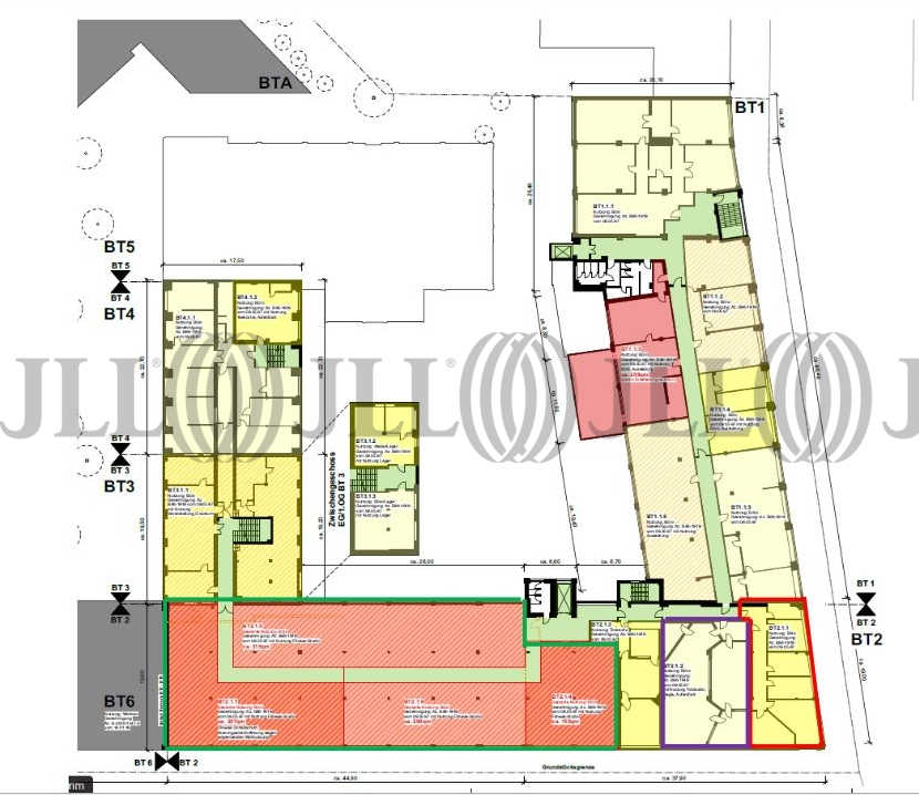
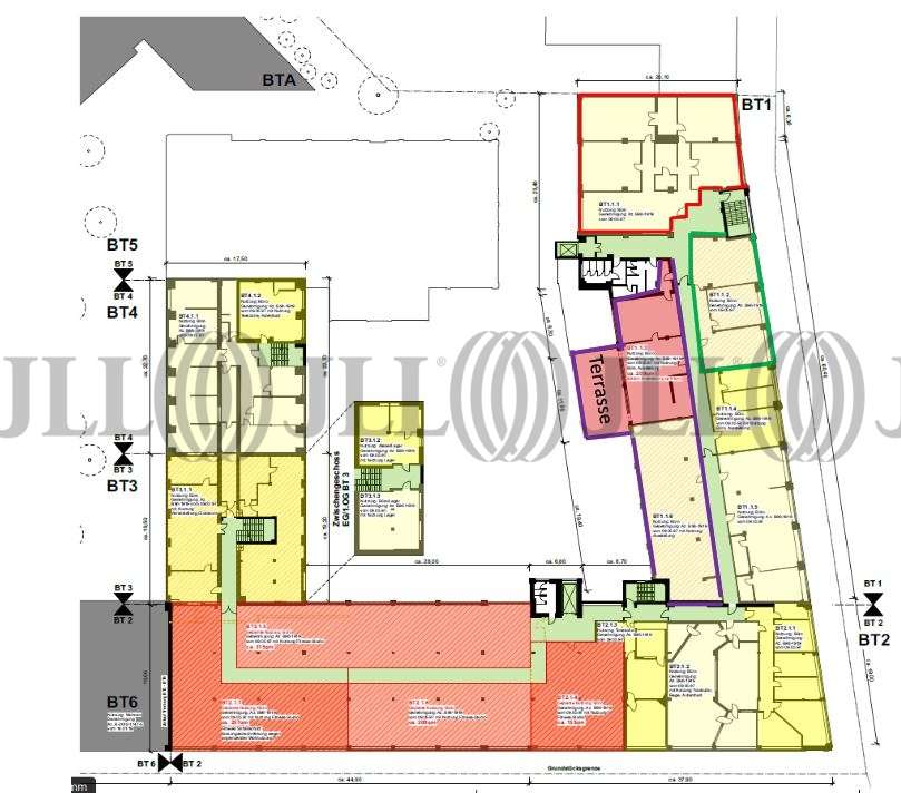
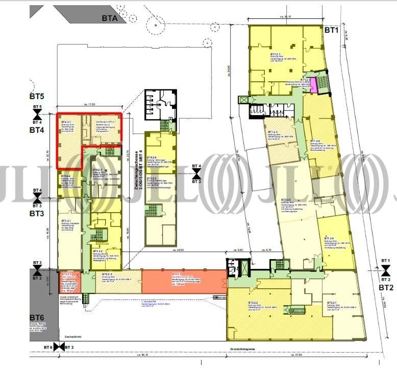
- Fläche155 - 5.750 m²
- VerfügbarkeitSofort
- Objekt
- Ausstattung
- Lage und Verkehrsanbindung
- Grundrisse
- Exposé herunterladen
- Ihr Kontakt
- Anfrage senden
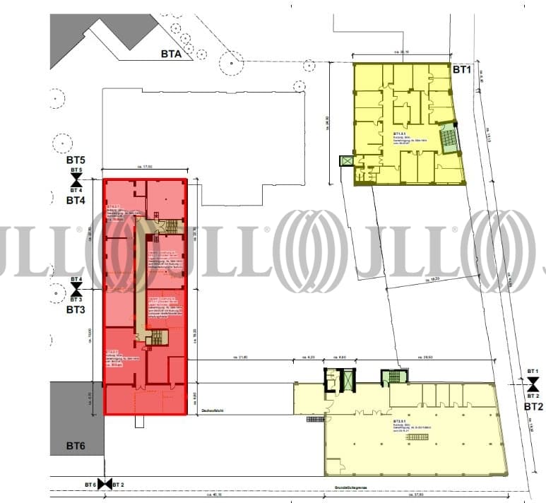
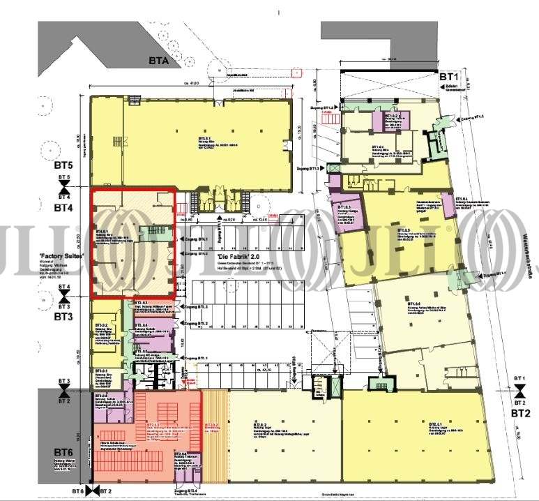
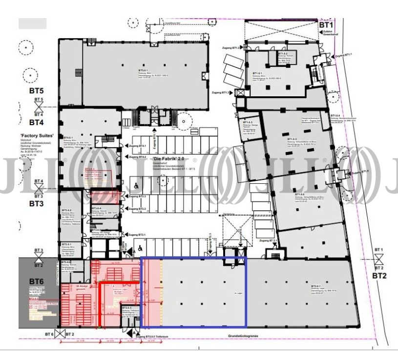
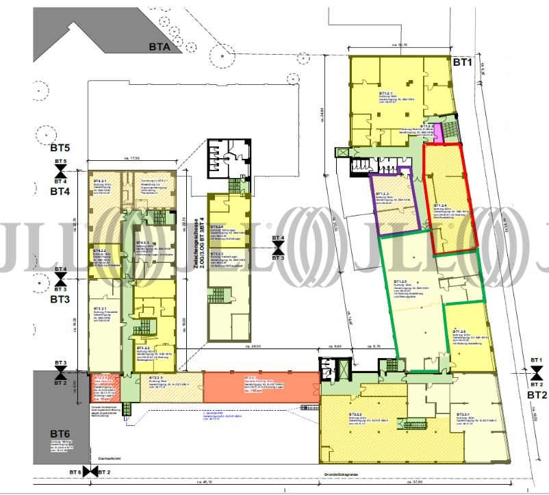
Objekt
Bei der ehemaligen Schuhmaschinenfabrik handelt es sich um ein saniertes Gebäude-Ensemble mit einer charakteristischen Backsteinfassade. Die zur Anmietung stehenden Flächen zeichnen sich durch einen klassischen Loftcharakter aus, der sich in hohe Decken und mit Epoxydharz behandeltem Estrichboden sowie einer ausgezeichneten natürlichen Belüftung wiederspiegelt.
Zertifizierungen
Energieausweis
Für diese Liegenschaft liegt ein Verbrauchsausweis vom 30.04.2014 vom Eigentümer/Vermieter vor. Die wesentlichen Energieträger der Liegenschaft sind Erdgas schwer, Strom. Der Endenergieverbrauch Strom beträgt 26.00 kWh/(m²*a). Der Endenergieverbrauch Wärme beträgt 45.00 kWh/(m²*a).Verfügbare Fläche
Lage und Verkehrsanbindung
- Hauptbahnhof, Frankfurt am Main, Fahrzeit: 12 min
- S-Bahn, Rödelheim Bahnhof, Linie S3-S5, Gehzeit: 6 min
- Bus, In der Au, Linie 252, 60, 55, Gehzeit: 1 min
- Bundesautobahn, A 648, Fahrzeit: 3 min
- Bundesautobahn, A 66, Fahrzeit: 4 min
- Bundesautobahn, A 5, Fahrzeit: 5 min
- Bundesstraße, B 459, Fahrzeit: 25 min
- Bundesstraße, B 448, Fahrzeit: 30 min
- Flughafen, Frankfurt am Main, Fahrzeit: 10 min
Ihr Kontakt

Christian Lütter
Ihr Kontakt
Marktinformationen
Mietmarkt
Rödelheim, Frankfurt am Main
siehe 5 passende MietobjekteErfahren Sie mehr
* Durchschnittspreis auf Grundlage historischer Transaktionen.










