
Büros
ID F0068Büroimmobilie - Frankfurt am Main, Sachsenhausen-Nord - F0068
Sachsenhausen-Nord, 60594, Frankfurt am Main, Hessen
Provisionspflichtig: bei Anmietung 4 Netto-Monatsmieten zzgl. gesetzlicher Umsatzsteuer.** der Wert kann je nach Vertragslaufzeit variieren.
14,50 € / m²
- Fläche535 - 1.171 m²
- VerfügbarkeitSofort
- Objekt
- Ausstattung
- Lage und Verkehrsanbindung
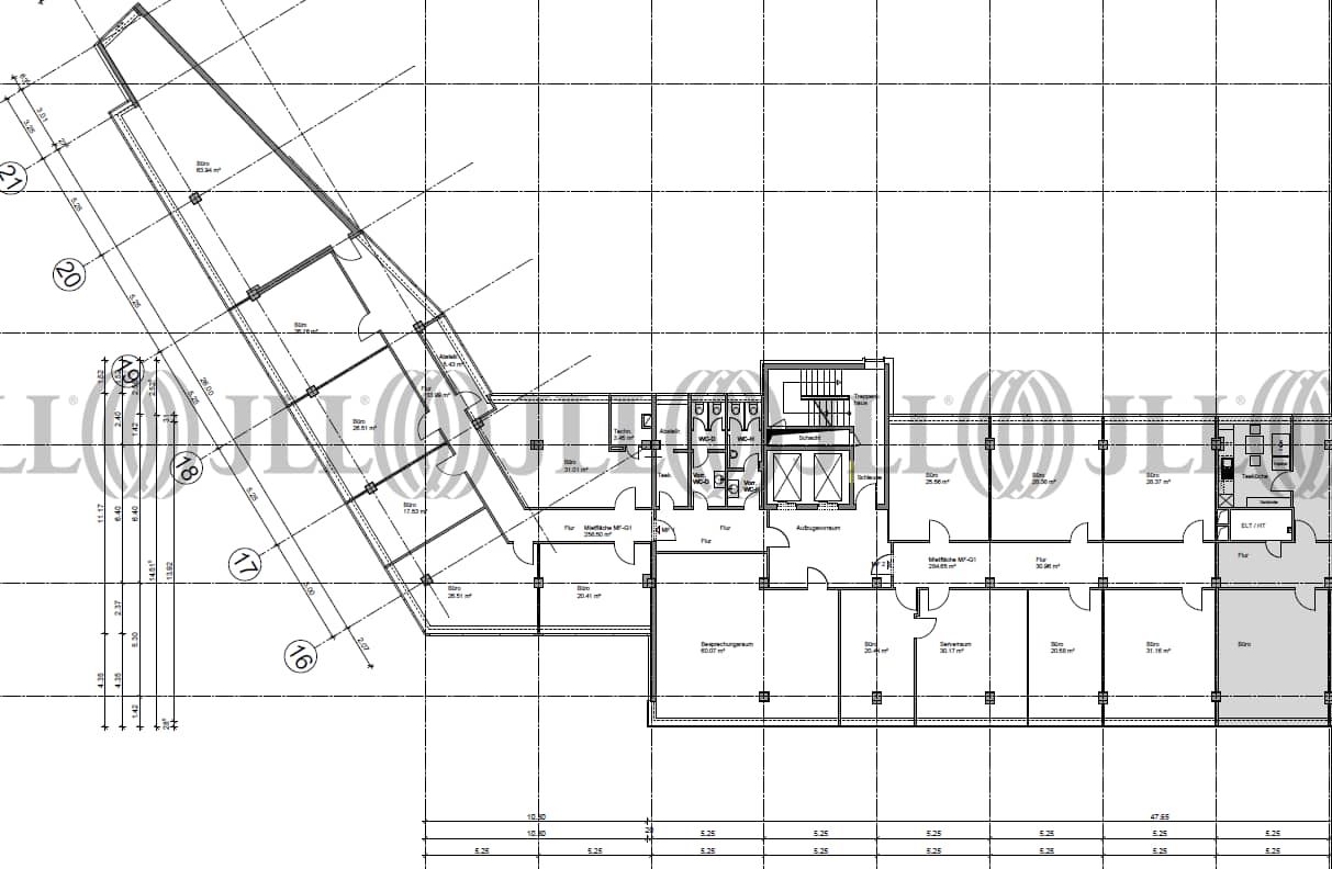
- Grundrisse
- Exposé herunterladen
- Ihr Kontakt
- Anfrage senden
Objekt
Bei der Liegenschaft handelt es sich um ein 10-geschossiges Büro- und Geschäftsgebäude.
Verfügbare Fläche
Lage und Verkehrsanbindung
- Hauptbahnhof, Frankfurt, Fahrzeit: 2 min
- S-Bahn, Textorstraße, S3-S6, Gehzeit: 6 min
- Bus, Bushaltestelle Schulstraße Buslinien 46, Gehzeit: 1 min
- Bundesautobahn, A 661, Fahrzeit: 8 min
- Bundesautobahn, A 3, Fahrzeit: 12 min
- Flughafen, Frankfurt am Main, Fahrzeit: 17 min
Ihr Kontakt

Irini Fenner
Ihr Kontakt