Büros
ID F0028Provisionsfrei
Aktualisiert
Büroimmobilie - Eschborn - F0028
65760, Eschborn, Hessen
13,50 € / m²
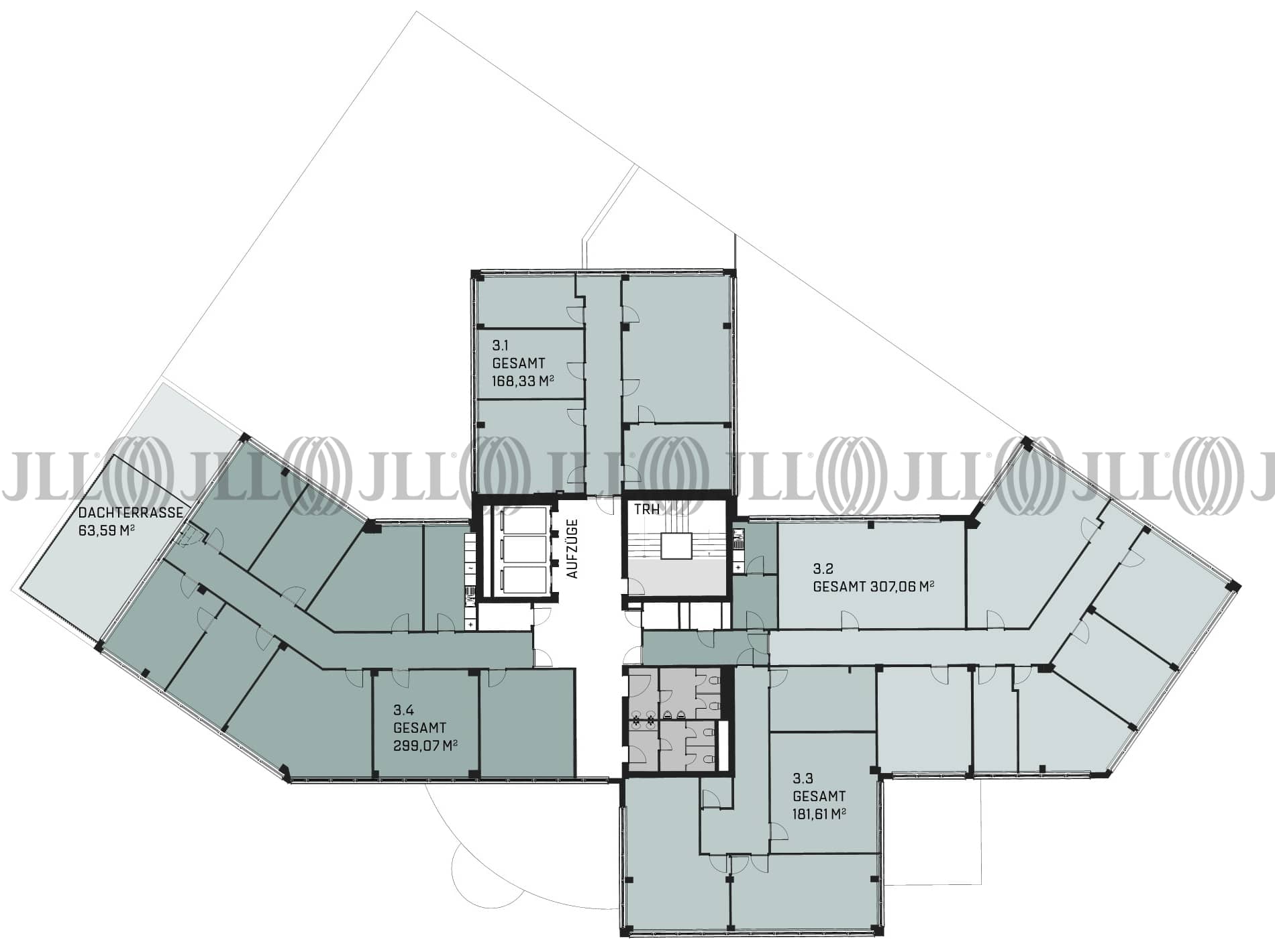
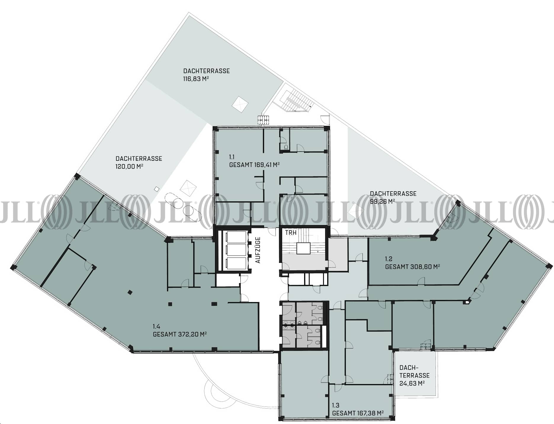
- Fläche190 - 2.373 m²
- VerfügbarkeitSofort
- Objekt
- Ausstattung
- Lage und Verkehrsanbindung
- Grundrisse
- Exposé herunterladen
- Ihr Kontakt
- Anfrage senden
Objekt
Bei diesem Gebäude handelt es sich um ein repräsentatives Bürohaus. Im Rahmen der Repositionierung des Objektes, werden aufwendige Maßnahmen durchgeführt: Umgestaltung der Lobby, neues Farbkonzept, bessere Sichtbarkeit der Mieter, durch neue Mieterstehlen, Dachterrassen mit Blick über Eschborn, integrierte Beleuchtung, neue Sanitäre Anlagen, Umgestaltung des Aufzuges, neuer Anstrich der Außenfassade, individuelle Gestaltung der Büros.
Zertifizierungen
Energieausweis
BREEAM: Very goodFür diese Liegenschaft liegt ein Verbrauchsausweis vom 12.06.2020 vom Eigentümer/Vermieter vor. Der wesentliche Energieträger der Liegenschaft ist Erdgas leicht. Der Endenergieverbrauch Strom beträgt 20.00 kWh/(m²*a). Der Endenergieverbrauch Wärme beträgt 95.30 kWh/(m²*a).
Verfügbare Fläche
Lage und Verkehrsanbindung
- Hauptbahnhof, Eschborn, Fahrzeit: 15 min
- S-Bahn, Eschborn Süd, S3, S4, Gehzeit: 8 min
- Bus, Alfred-Herrhausen-Allee, 58, 810, Gehzeit: 3 min
- Bundesautobahn, A 66, Fahrzeit: 5 min
- Bundesautobahn, A 5, Fahrzeit: 8 min
- Flughafen, Frankfurt am Main, Fahrzeit: 17 min
Ihr Kontakt

Christian Lütter
Ihr Kontakt




















