Büros
ID D3408Büroimmobilie - Düsseldorf, Lörick - D3408
Lörick, 40549, Düsseldorf, Nordrhein-Westfalen
Provisionspflichtig: bei Anmietung 3 Netto-Monatsmieten zzgl. gesetzlicher Umsatzsteuer.** der Wert kann je nach Vertragslaufzeit variieren.
Kontaktieren Sie uns für den Preis
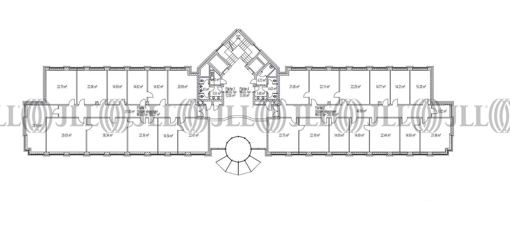
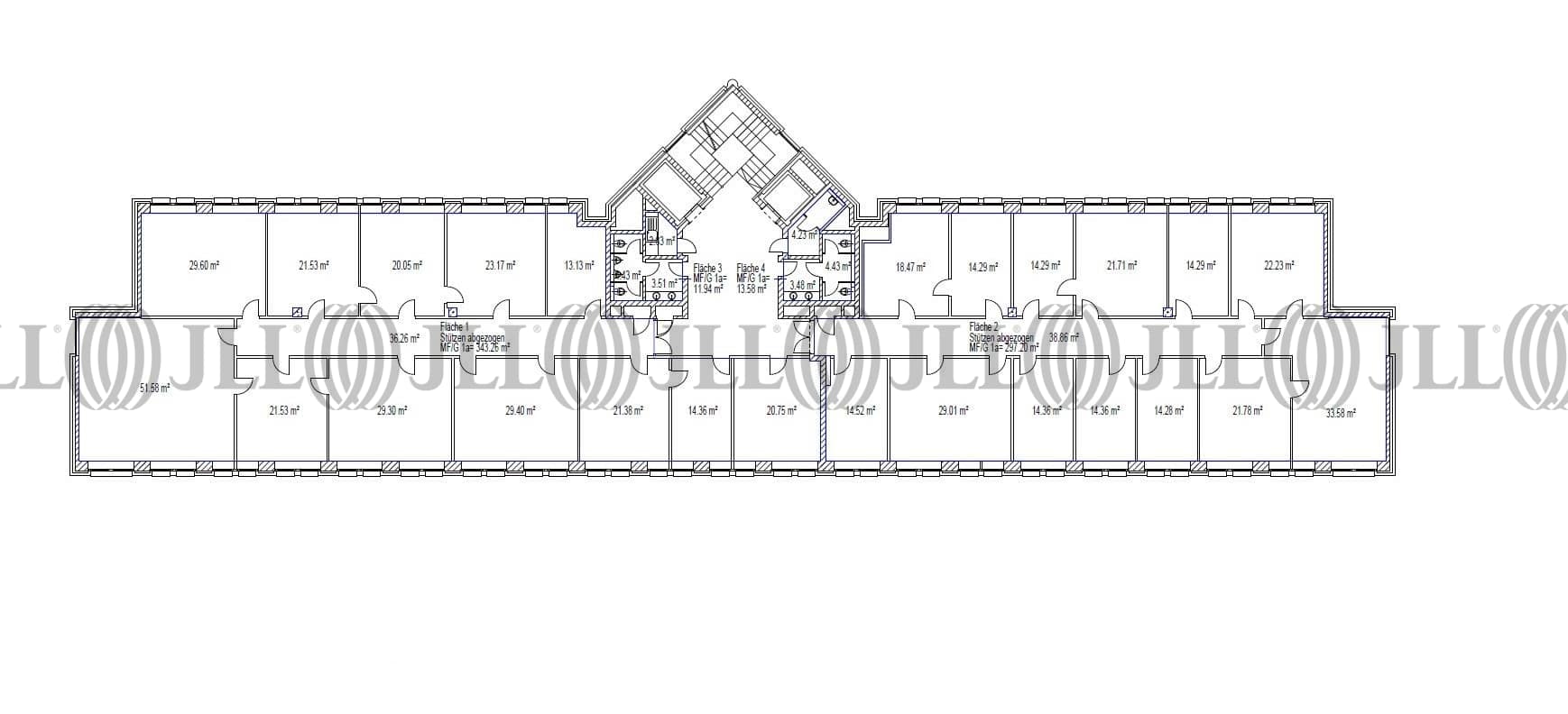
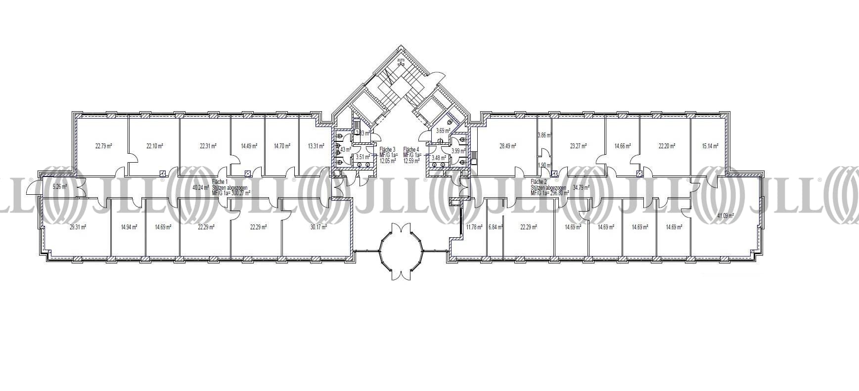
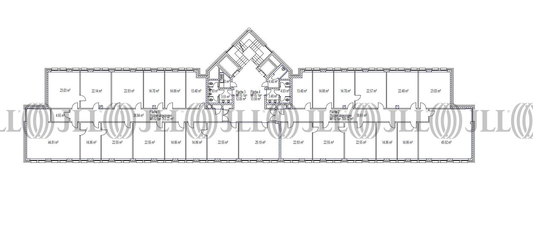
- Fläche335 - 3.739 m²
- VerfügbarkeitIII quartal 2027
- Objekt
- Ausstattung
- Lage und Verkehrsanbindung
- Grundrisse
- Exposé herunterladen
- Ihr Kontakt
- Anfrage senden
Objekt
Bei dem Bürogebäude handelt es sich um einen fünfgeschossigen und mit Tiefgarage unterkellerten Bürogebäudekomplex mit Flachdach, welcher 1992 in Massivbauweise errichtet wurde. In den oberirdischen Geschossen befinden sich Büroflächen, in den Untergeschossen befinden sich Lager- und Technikflächen sowie eine Tiefgarage. Das Gebäude ist durch ein Treppenhaus und zwei Aufzugsanlagen vertikal erschlossen. Die Tiefgarage wird über das Nachbargrundstück erschlossen.
Zertifizierungen
Energieausweis
Für diese Liegenschaft liegt ein Verbrauchsausweis vom 26.08.2022 vom Eigentümer/Vermieter vor. Der wesentliche Energieträger der Liegenschaft ist Gas. Der Endenergieverbrauch Strom beträgt 47 kWh/(m²*a). Der Endenergieverbrauch Wärme beträgt 128 kWh/(m²*a).Verfügbare Fläche
Lage und Verkehrsanbindung
Das Objekt ist im linksrheinischen Düsseldorf-Heerdt gelegen und verfügt über eine sehr gute Verkehrsanbindung in Richtung City sowie stadtauswärts. Die ehemals dort herrschende Industriebranche ist einem bunten Mix aus Bürogebäuden, Großhandel und Wohnnutzung gewichen.
- Hauptbahnhof, Düsseldorf Hbf, Fahrzeit: 17 min
- U-Bahn, Lörick U70, U76, Gehzeit: 1 min
- Bus, Löricker Straße 828, 833, Gehzeit: 1 min
- Bundesautobahn, A52, Fahrzeit: 4 min
- Bundesautobahn, A 44, Fahrzeit: 11 min
- Flughafen, Düsseldorf, Fahrzeit: 13 min
Ihr Kontakt
Vermietungsteam
Ihr Kontakt




