Büros
ID D3405Büroimmobilie - Düsseldorf, Derendorf - D3405
Derendorf, 40476, Düsseldorf, Nordrhein-Westfalen
Provisionspflichtig: bei Anmietung 3 Netto-Monatsmieten zzgl. gesetzlicher Umsatzsteuer.** der Wert kann je nach Vertragslaufzeit variieren.
Kontaktieren Sie uns für den Preis
- Objekt
- Ausstattung
- Lage und Verkehrsanbindung
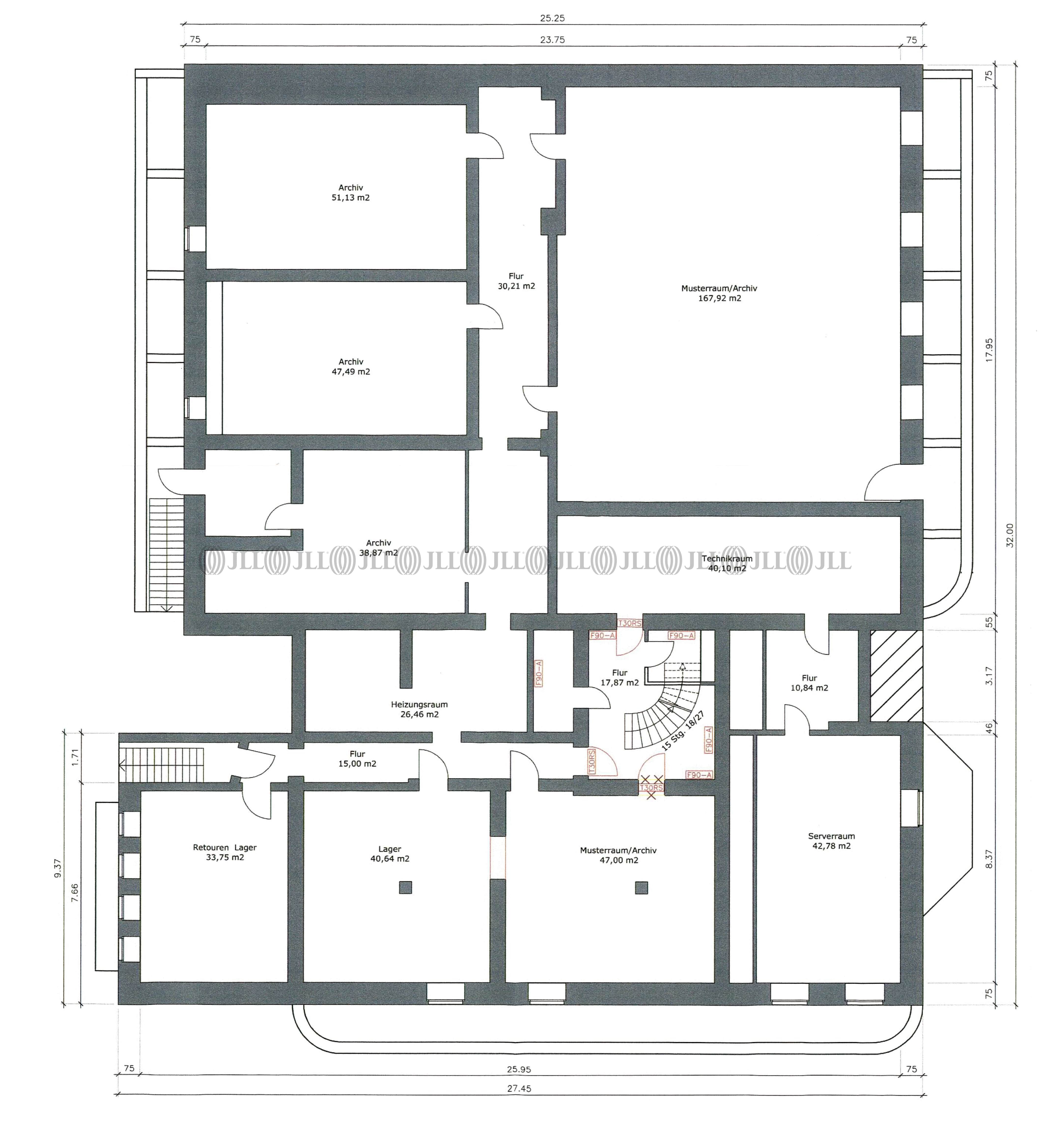
- Grundriss
- Exposé herunterladen
- Ihr Kontakt
- Anfrage senden
Objekt
Bei der Liegenschaft handelt es sich um einzigartige Showroom- und Loftflächen im Industriecharme. Die Mietflächen können sowohl gesamtheitlich an einen Nutzer oder etagenweise angemietet werden. Sie verfügen über eine moderne Ausstattung und bieten optimale Grundrissstrukturen.
Zertifizierungen
Energieausweis
Für diese Liegenschaft liegt ein Bedarfsausweis vom 27.11.2021 vom Eigentümer/Vermieter vor. Die wesentlichen Energieträger der Liegenschaft sind KWK, Strom. Der Endenergiebedarf Strom beträgt 20.60 kWh/(m²*a). Der Endenergiebedarf Wärme beträgt 258.50 kWh/(m²*a).Verfügbare Fläche
Lage und Verkehrsanbindung
Das Bürogebäude liegt im nördlichen Stadtteil Derendorf / Rath / Mörsenbroich. Die Nähe zum „Nördlichen Zubringer“ sorgt für eine perfekte Anbindung an das Autobahnnetz, sodass Flughafen und Messe schnell zu erreichen sind.
- Flughafen, Düsseldorf, Fahrzeit: 8 min
- Bundesautobahn, A 52, Fahrzeit: 3 min
- Bundesautobahn, A 3, Fahrzeit: 10 min
- Bus, Heinrich-Erhardt-Straße 834, Gehzeit: 2 min
- Hauptbahnhof, Düsseldorf, Fahrzeit: 12 min
- Straßenbahn/Tram, Straßburger Straße 704, Gehzeit: 1 min
Ihr Kontakt

Anna-Louisa Kratochvil
Ihr Kontakt

