Büros
ID D3382Büroimmobilie - Düsseldorf, Stadtmitte - D3382
Stadtmitte, 40212, Düsseldorf, Nordrhein-Westfalen
Provisionspflichtig: bei Anmietung 3 Netto-Monatsmieten zzgl. gesetzlicher Umsatzsteuer.** der Wert kann je nach Vertragslaufzeit variieren.
19,50 € / m²
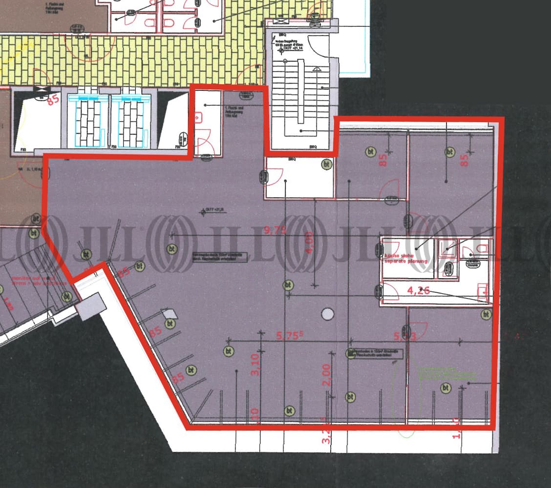
- Fläche241 m²
- VerfügbarkeitSofort
- Objekt
- Ausstattung
- Lage und Verkehrsanbindung
- Grundriss
- Exposé herunterladen
- Ihr Kontakt
- Anfrage senden
Objekt
Die sehr unterschiedlich zu gestaltenden Büroflächen verfügen über verschiedene Raumtiefen, sodass jegliche Büroformen (Kombi-, Großraum- und Einzelbüro) dargestellt werden können. Die Kö-Höfe bieten durch ihre prominente Lage beste infrastrukturelle Voraussetzungen und zugleich die Möglichkeit einer eigenen Adressbildung. Die Büroflächen der Kö-Höfe werden derzeit umfassend saniert.
Verfügbare Fläche
Lage und Verkehrsanbindung
Die Königsallee – eine der Prachtstraßen Europas. Perfekt angebunden, mitten im Herzen der Stadt gelegen und jedem ein Begriff; so lässt sich die Lage der Kö-Höfe und der Kö-Galerie, welche den Abschnitt des Boulevards zwischen Grünstraße und Steinstraße wohl wie kaum ein anderer Gebäudekomplex geprägt haben, am treffensten beschreiben.
Ihr Kontakt

Anna-Louisa Kratochvil
Ihr Kontakt






