Büros
ID D3369Büroimmobilie - Neuss - D3369
41460, Neuss, Nordrhein-Westfalen
Provisionspflichtig: bei Anmietung 3 Netto-Monatsmieten zzgl. gesetzlicher Umsatzsteuer.** der Wert kann je nach Vertragslaufzeit variieren.
12,35 € / m²
- Fläche275 m²
- VerfügbarkeitSofort
- Objekt
- Ausstattung
- Lage und Verkehrsanbindung
- Grundriss
- Exposé herunterladen
- Ihr Kontakt
- Anfrage senden
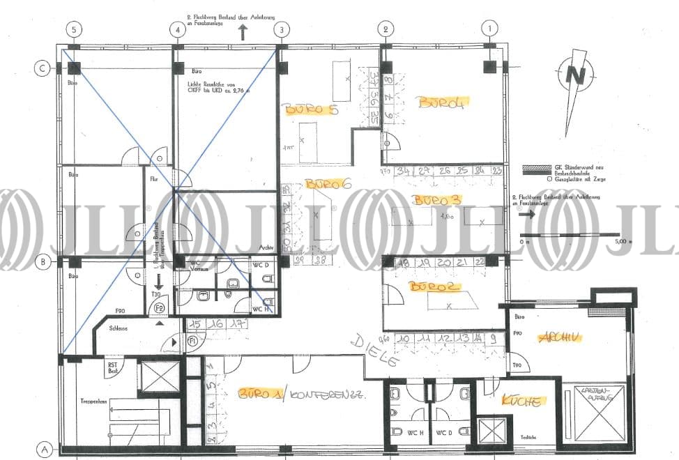
Objekt
Die Bürofläche befindet sich im obersten Geschoss und besticht durch Ihre unverbaubare Sicht sowie die hochwertige Ausstattung als auch einer bereits vollausgestatteten Teeküche.
Der Archivraum mit angrenzendem Lastenaufzug rundet das Angebot ab. Die öffentlichen Verkehrsmittel befinden sich in unmittelbarer Umgebung.
Der Archivraum mit angrenzendem Lastenaufzug rundet das Angebot ab. Die öffentlichen Verkehrsmittel befinden sich in unmittelbarer Umgebung.
Verfügbare Fläche
Lage und Verkehrsanbindung
Eine Mischung aus modernen Gewerbeparks und attraktivem Wohnumfeld prägen den Standort Neuss, in welchem sich bereits namhafte Unternehmen niedergelassen haben. Durch die Autobahnen A 46 / A 52 / A 57 und ein gutes ÖPNV-Netz ist eine optimale Anbindung nach Düsseldorf und in das Umland gegeben. Eine Tankstelle befindet sich in der Nähe. Dienstleister des täglichen Bedarfs befinden sich in der Nähe.
- Flughafen, Düsseldorf, Fahrzeit: 20 min
- Bundesautobahn, A 57, Fahrzeit: 7 min
- Bundesautobahn, A 52, Fahrzeit: 11 min
- Hauptbahnhof, Neuss, Fahrzeit: 6 min
- Bus, Industriestraße 842, Gehzeit: 1 min
- Straßenbahn/Tram, Markt 709, Gehzeit: 5 min
Ihr Kontakt

Anna-Louisa Kratochvil
Ihr Kontakt





