Büros
ID D3364Büroimmobilie - Ratingen - D3364
40882, Ratingen, Nordrhein-Westfalen
Provisionspflichtig: bei Anmietung 3 Netto-Monatsmieten zzgl. gesetzlicher Umsatzsteuer.** der Wert kann je nach Vertragslaufzeit variieren.
Kontaktieren Sie uns für den Preis
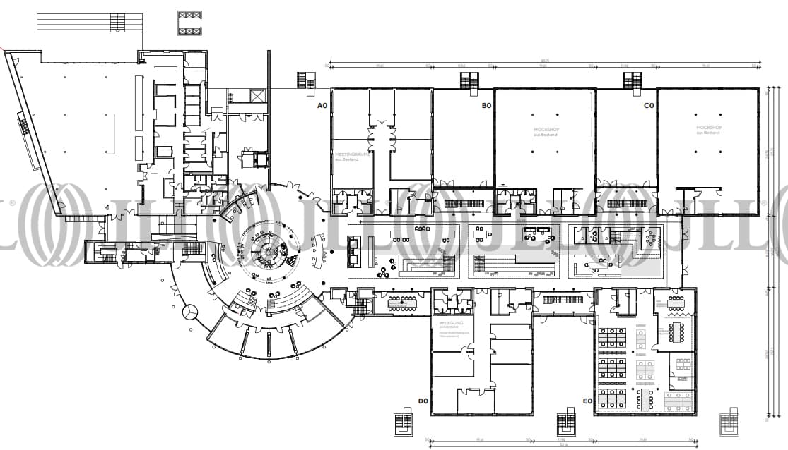
- Fläche3.500 - 20.601 m²
- VerfügbarkeitAuf Anfrage
- Ausstattung
- Lage und Verkehrsanbindung
- Grundrisse
- Exposé herunterladen
- Ihr Kontakt
- Anfrage senden
Verfügbare Fläche
Lage und Verkehrsanbindung
Die Liegenschaft befindet sich im Ratinger Stadtteil West, der sich insbesondere durch eine gute Anbindung an das Autobahnnetz auszeichnet. Die City von Düsseldorf sowie der Flughafen der Landeshauptstadt sind schnell erreichbar und bieten international operierenden Unternehmen ideale Vorrausetzungen.
- S-Bahn, Ratinge-Ost S6, Fahrzeit: 4 min
- Bus, Formerstraße 749, Gehzeit: 1 min
- Bundesautobahn, A44, Fahrzeit: 1 min
- Bundesautobahn, A3, Fahrzeit: 5 min
- Flughafen, Düsseldorf, Fahrzeit: 7 min
Ihr Kontakt

Richard Steimel
Ihr Kontakt








