Büros
ID D3352Büroimmobilie - Düsseldorf, Golzheim - D3352
Golzheim, 40476, Düsseldorf, Nordrhein-Westfalen
Provisionspflichtig: bei Anmietung 3 Netto-Monatsmieten zzgl. gesetzlicher Umsatzsteuer.** der Wert kann je nach Vertragslaufzeit variieren.
Kontaktieren Sie uns für den Preis
- Fläche395 - 16.745 m²
- Verfügbarkeit48 Monate ab Vertragsunterzeichnung
- Objekt
- Ausstattung
- Lage und Verkehrsanbindung
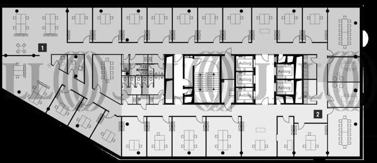
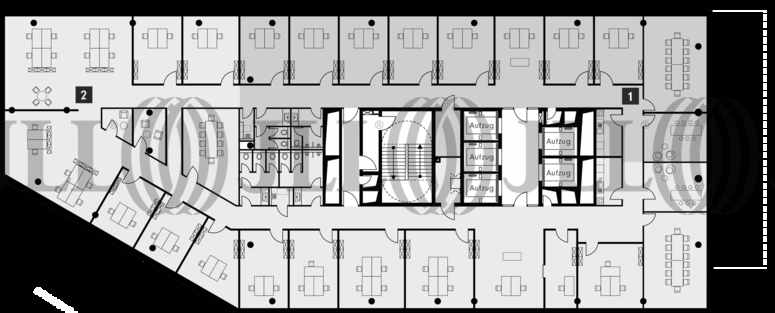
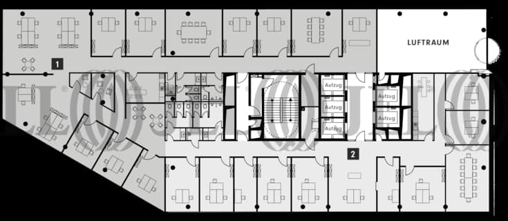
- Grundrisse
- Exposé herunterladen
- Ihr Kontakt
- Anfrage senden
Objekt
Das Gebäude besteht aus sieben auf- und nebeneinander gestapelten gläsernen Würfeln, die zusammen das markante Erscheinungsbild prägen. Das Spiel des gedreht in die Figur platzierten Kubus auf der Eingangsseite schafft unterschiedliche Vor- und Rücksprünge, die auf den Ebenen 6 und 12 zu attraktiven Dachterrassen werden. Vertikal und horizontal ausgerichtete Blenden in der Fassade betonen die Fügung der Einzelbausteine. Auf dem 6-geschossigen Annex entsteht ein Dachgarten, der die Gestaltung der Außenanlagenplanung aufgreift und großzügige Aufenthaltsbereiche inmitten grüner Inseln schafft.
Zertifizierungen
Energieausweis
WIREDSCORE: PlatinumVerfügbare Fläche
Lage und Verkehrsanbindung
Die Liegenschaft befindet sich nahe der Düsseldorfer City in unmittelbarer Nachbarschaft vieler namhafter Unternehmen. Der Kennedydamm zeichnet sich durch die Nähe zum Rheinufer und der optimalen Verkehrsanbindung in Richtung City und Umland aus. Auch der Flughafen ist in wenigen Minuten erreichbar.
- Hauptbahnhof, Düsseldorf, Fahrzeit: 12 min
- Straßenbahn/Tram, Johannstraße 705, 707, Gehzeit: 11 min
- Bus, Haus der Stiftungen 721, 722, 756, 758, Gehzeit: 4 min
- Bundesautobahn, A 52, Fahrzeit: 6 min
- Bundesautobahn, A 44, Fahrzeit: 7 min
- Flughafen, Düsseldorf, Fahrzeit: 6 min
Ihr Kontakt

Richard Steimel
Ihr Kontakt
















