Büros
ID D3344Büroimmobilie - Düsseldorf, Holthausen - D3344
Holthausen, 40589, Düsseldorf, Nordrhein-Westfalen
Provisionspflichtig: bei Anmietung 3 Netto-Monatsmieten zzgl. gesetzlicher Umsatzsteuer.** der Wert kann je nach Vertragslaufzeit variieren.
Kontaktieren Sie uns für den Preis
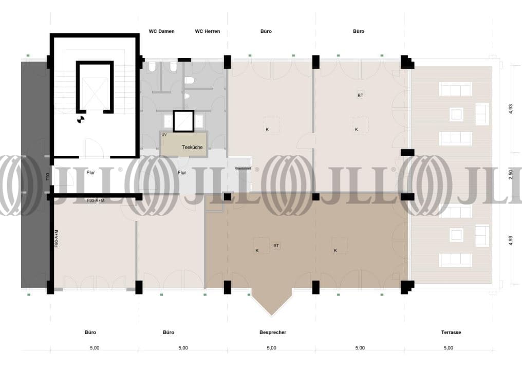
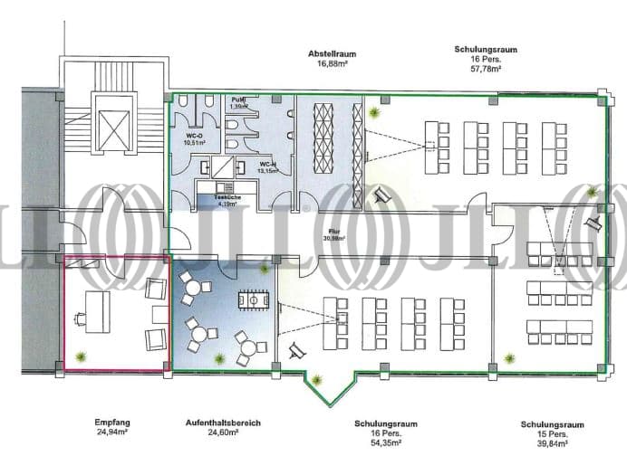
- Fläche217 - 648 m²
- VerfügbarkeitSofort
- Objekt
- Ausstattung
- Lage und Verkehrsanbindung
- Grundrisse
- Exposé herunterladen
- Ihr Kontakt
- Anfrage senden
Objekt
Die Büroflächen der Hafenpforte setzen sich aus zwei Bürogebäuden zusammen, die miteinander verbunden sind. Zusätzlich stehen auf dem Areal rd. 1.700 m² Hallen- und Serviceflächen zur Verfügung.
Zertifizierungen
Energieausweis
Für diese Liegenschaft liegt ein Bedarfsausweis vom 2013-07-04 vom Eigentümer/Vermieter vor. Der wesentliche Energieträger der Liegenschaft ist Erdgas schwer. Endenergiebedarf: 407.20000 kWh/(m²*a).Verfügbare Fläche
Lage und Verkehrsanbindung
Die Liegenschaft befindet sich im Süden der Landeshauptstadt. Dank der optimalen Anbindungen an die Autobahnen sind sowohl die Düsseldorfer Innenstadt, als auch die umliegenden Nachbarstädte, schnell und direkt erreichbar. Der Standort bietet zum einen wirtschaftlich starke Gewerbegebiete und überzeugt zusätzlich durch den Charme der umliegenden Grünanlagen.
- Hauptbahnhof, Düsseldorf, Fahrzeit: 12 min
- U-Bahn, Niederheid U71, U74, U83, Gehzeit: 2 min
- Straßenbahn/Tram, Niederheid 701, Gehzeit: 2 min
- Bus, Niederheid 724, 789, 817, 835, Gehzeit: 2 min
- Bundesautobahn, A 59, Fahrzeit: 5 min
- Bundesautobahn, A 46, Fahrzeit: 7 min
- Bundesautobahn, A 3, Fahrzeit: 10 min
- Flughafen, Düsseldorf, Fahrzeit: 25 min
Ihr Kontakt

Janice Lehmann
Ihr Kontakt

