Büros
ID D3338Büroimmobilie - Düsseldorf, Stadtmitte - D3338
Stadtmitte, 40211, Düsseldorf, Nordrhein-Westfalen
Provisionspflichtig: bei Anmietung 3 Netto-Monatsmieten zzgl. gesetzlicher Umsatzsteuer.** der Wert kann je nach Vertragslaufzeit variieren.
12 € / m²
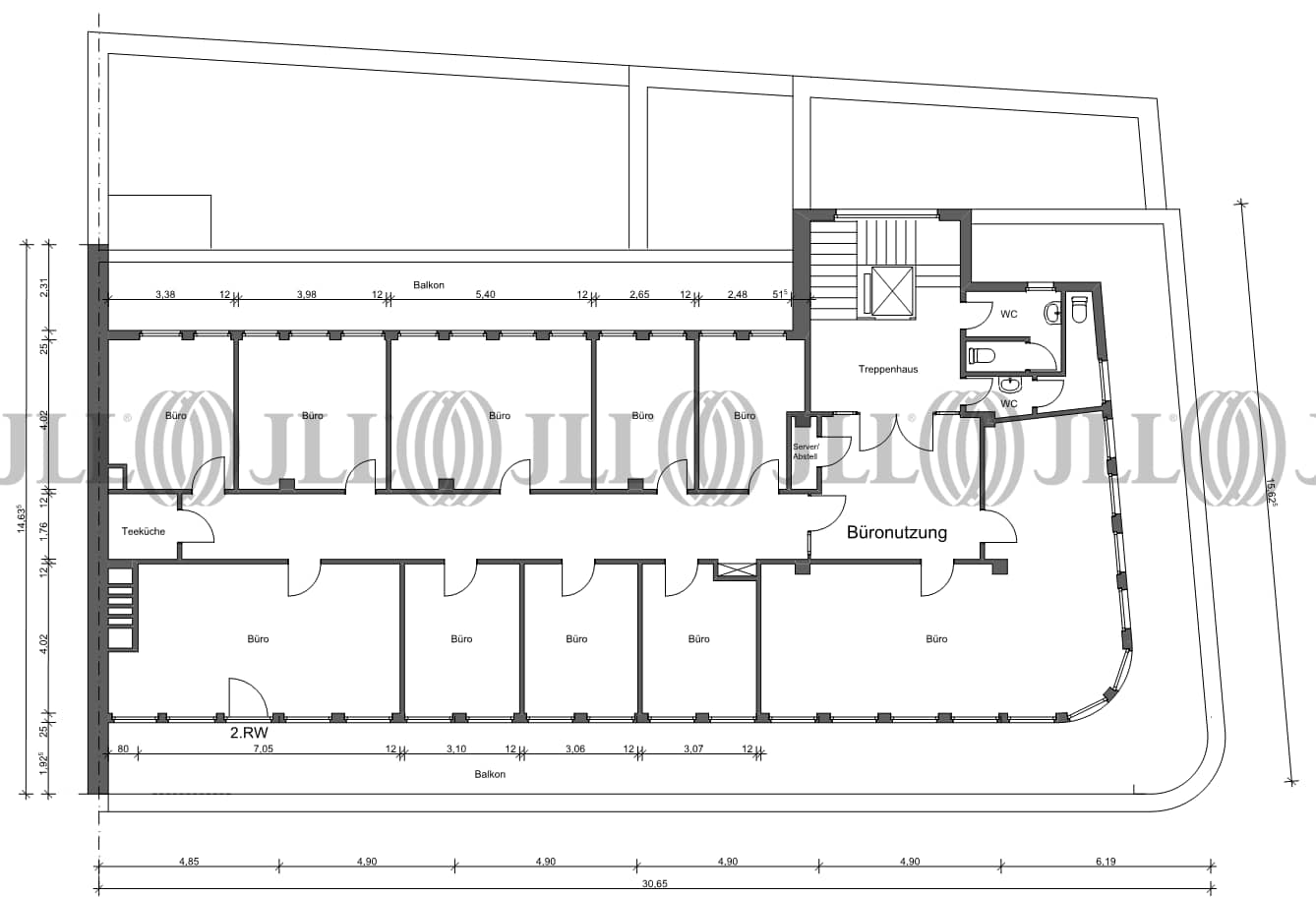
- Fläche253 m²
- VerfügbarkeitSofort
- Objekt
- Ausstattung
- Lage und Verkehrsanbindung
- Grundriss
- Exposé herunterladen
- Ihr Kontakt
- Anfrage senden
Objekt
Die Immobilie bietet ein modernes und stilvolles Arbeitsumfeld in einer renommierten Geschäftsadresse der Düsseldorfer Innenstadt. In der Fläche liegt ein Teppichboden aus, diese können jedoch auch nach Mieterwunsch ausgebaut werden. Neben der klassischen Büronutzung ist in diesem Objekt ebenfalls eine Praxisnutzung möglich. Das Objekt befindet sich zwischen der Schadow- und Immermannstraße und weist somit eine einwandfreie Nahversorgung aus.
Verfügbare Fläche
Lage und Verkehrsanbindung
Die Liegenschaft befindet sich in zentraler Innenstadtlage von Düsseldorf. Dieser Standort zeichnet sich besonders durch eine sehr gute Infrastruktur und ÖPNV Anbindung aus. Zahlreiche Einkaufsmöglichkeiten, Geschäfte des alltäglichen Bedarfs sowie Restaurants und Ärzte sind in unmittelbarer Nähe zu finden. Die Altstadt direkt am Rhein gelegen sowie die beliebte Einkaufsmeile Königsallee laden zum Verweilen ein und liegen in fußläufiger Entfernung.
- U-Bahn, Oststraße U70, U74, U75, U76, U77, U78, U79, Fahrzeit: 5 min
- Straßenbahn/Tram, Klosterstraße 707, Gehzeit: 1 min
- Bundesautobahn, A 44, Fahrzeit: 13 min
- Bundesautobahn, A 46, Fahrzeit: 16 min
- Flughafen, Düsseldorf, Fahrzeit: 13 min
Ihr Kontakt

Anna-Louisa Kratochvil
Ihr Kontakt


