Büros
ID D3334Büroimmobilie - Düsseldorf, Carlstadt - D3334
Carlstadt, 40213, Düsseldorf, Nordrhein-Westfalen
Provisionspflichtig: bei Anmietung 3 Netto-Monatsmieten zzgl. gesetzlicher Umsatzsteuer.** der Wert kann je nach Vertragslaufzeit variieren.
Kontaktieren Sie uns für den Preis
- Fläche182 - 16.631 m²
- VerfügbarkeitI quartal 2028
- Objekt
- Ausstattung
- Lage und Verkehrsanbindung
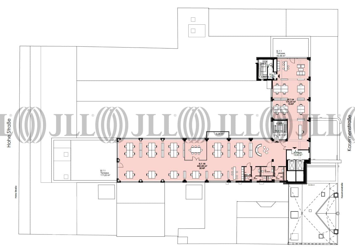
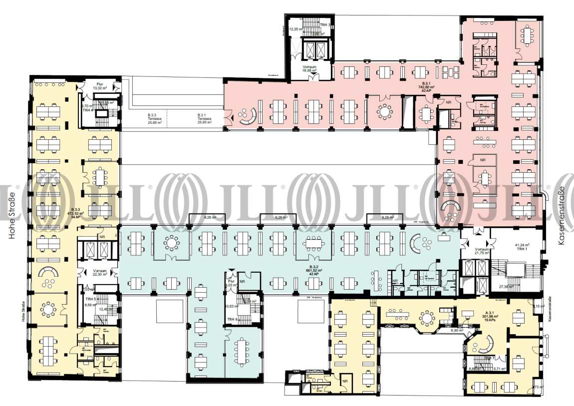
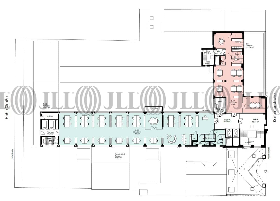
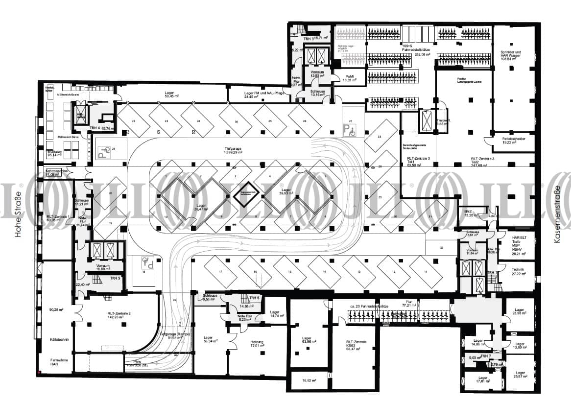
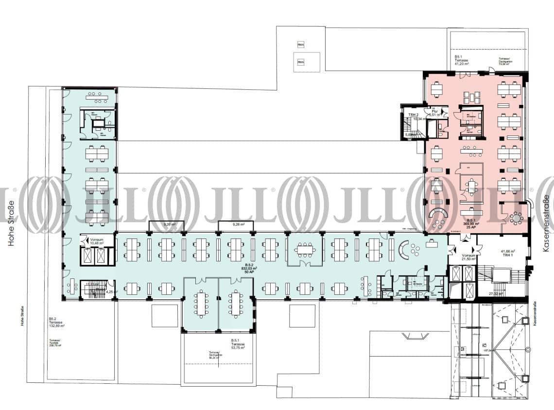
- Grundrisse
- Exposé herunterladen
- Ihr Kontakt
- Anfrage senden
Objekt
Das Projekt umfasst die Sanierung und Modernisierung zweier historischer Gebäude. Es verbindet denkmalgeschützte Architektur mit modernen Bürokonzepten und bietet flexible Nutzungsmöglichkeiten.
Die Büroflächen erstrecken sich über mehrere Etagen und bieten variable Aufteilungsmöglichkeiten. Eine besondere Stärke ist die Möglichkeit, autarke Mieteinheiten pro Etage zu realisieren. Die Ausstattung umfasst öffenbare Fenster mit Dreifachverglasung, Sonnenschutz, Hohlbodensysteme und moderne Klima- und Lüftungskonzepte.
Ein Highlight ist die Neugestaltung des Innenhofs als öffentliche Passage, die das Gebäude mit dem umgebenden Stadtviertel verbindet. Zahlreiche Terrassen und Balkone bieten zusätzliche Freiräume. Die zentrale Lage zwischen Bankenviertel und Carlstadt macht es zu einem attraktiven Standort.
Das Projekt legt besonderen Wert auf Nachhaltigkeit und strebt eine DGNB Gold-Zertifizierung an. Eine Tiefgarage mit E-Ladestationen und Fahrradstellplätze runden das Angebot ab. Die Fertigstellung ist für Anfang 2028 geplant.
Die Büroflächen erstrecken sich über mehrere Etagen und bieten variable Aufteilungsmöglichkeiten. Eine besondere Stärke ist die Möglichkeit, autarke Mieteinheiten pro Etage zu realisieren. Die Ausstattung umfasst öffenbare Fenster mit Dreifachverglasung, Sonnenschutz, Hohlbodensysteme und moderne Klima- und Lüftungskonzepte.
Ein Highlight ist die Neugestaltung des Innenhofs als öffentliche Passage, die das Gebäude mit dem umgebenden Stadtviertel verbindet. Zahlreiche Terrassen und Balkone bieten zusätzliche Freiräume. Die zentrale Lage zwischen Bankenviertel und Carlstadt macht es zu einem attraktiven Standort.
Das Projekt legt besonderen Wert auf Nachhaltigkeit und strebt eine DGNB Gold-Zertifizierung an. Eine Tiefgarage mit E-Ladestationen und Fahrradstellplätze runden das Angebot ab. Die Fertigstellung ist für Anfang 2028 geplant.
Zertifizierungen
Energieausweis
DGNB: GoldVerfügbare Fläche
Lage und Verkehrsanbindung
Das Objekt befindet sich in renommierter Lage mitten im Düsseldorfer CBD. Der CBD wird im Süden vom Gap 15 und im Norden vom Dreischeibenhaus begrenzt. Die Berliner Allee sowie Kasernenstraße/Heine-Allee bilden östlich und westlich die Grenze. Herzstück ist somit die berühmte Königsallee. Zahlreiche namhafte Unternehmen am Standort profitieren von der idealen ÖPNV-Anbindung sowie der hervorragenden Infrastruktur in Bezug auf die tägliche Nahversorgung. Dienstleister des täglichen Bedarfs befinden sich in der Nähe.
- Flughafen, Düsseldorf International, Fahrzeit: 13 min
- Bundesautobahn, A 52, Fahrzeit: 6 min
- Bundesautobahn, A 46, Fahrzeit: 8 min
- Hauptbahnhof, Düsseldorf, Fahrzeit: 7 min
- U-Bahn, Graf-Adolf-Platz U71, U72, U73, U83, Gehzeit: 3 min
- Straßenbahn/Tram, Graf-Adolf-Platz 706, 708, 709, Gehzeit: 3 min
- Bus, Graf-Adolf-Platz 726, Gehzeit: 3 min
Ihr Kontakt

Richard Steimel
Ihr Kontakt

