Büros
ID D3327Büroimmobilie - Düsseldorf, Friedrichstadt - D3327
Friedrichstadt, 40215, Düsseldorf, Nordrhein-Westfalen
Provisionspflichtig: bei Anmietung 3 Netto-Monatsmieten zzgl. gesetzlicher Umsatzsteuer.** der Wert kann je nach Vertragslaufzeit variieren.
17 € / m²
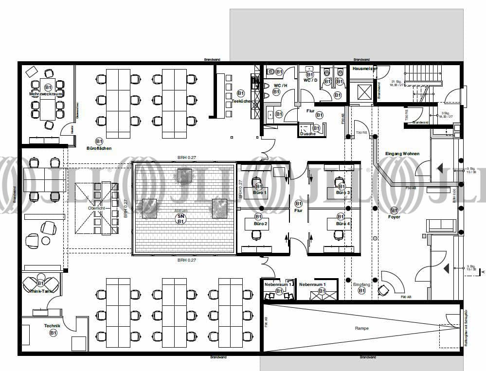
- Fläche456 m²
- VerfügbarkeitSofort
- Ausstattung
- Lage und Verkehrsanbindung
- Grundriss
- Exposé herunterladen
- Ihr Kontakt
- Anfrage senden
Verfügbare Fläche
Lage und Verkehrsanbindung
Das Objekt befindet sich in zentraler Innenstadtlage und verfügt durch die unmittelbare Nähe zum Düsseldorfer Hauptbahnhof über eine ideale ÖPNV-Verbindung. Zahlreiche Einkaufsmöglichkeiten des täglichen Bedarfs sind fußläufig schnell zu erreichen.
- Flughafen, Düsseldorf, Fahrzeit: 13 min
- Bundesautobahn, A 46, Fahrzeit: 6 min
- Bundesautobahn, A 59, Fahrzeit: 10 min
- Bus, Helmholtzstraße 732, Gehzeit: 3 min
- Hauptbahnhof, Düsseldorf, Fahrzeit: 6 min
- Straßenbahn/Tram, Helmholzstraße 704, 705, 707, Gehzeit: 3 min
Ihr Kontakt

Katharina Ufelmann
Ihr Kontakt



