Büros
ID D3323Büroimmobilie - Düsseldorf, Hafen - D3323
Hafen, 40221, Düsseldorf, Nordrhein-Westfalen
Provisionspflichtig: bei Anmietung 3 Netto-Monatsmieten zzgl. gesetzlicher Umsatzsteuer.** der Wert kann je nach Vertragslaufzeit variieren.
Kontaktieren Sie uns für den Preis
- Fläche396 - 9.950 m²
- VerfügbarkeitAuf Anfrage
- Objekt
- Ausstattung
- Lage und Verkehrsanbindung
- Grundrisse
- Exposé herunterladen
- Ihr Kontakt
- Anfrage senden
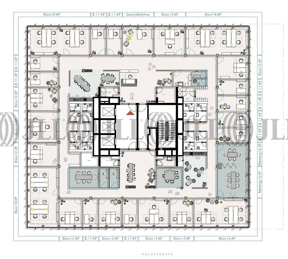
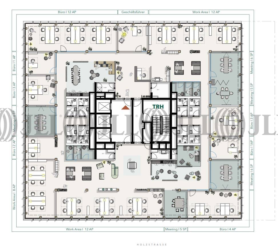
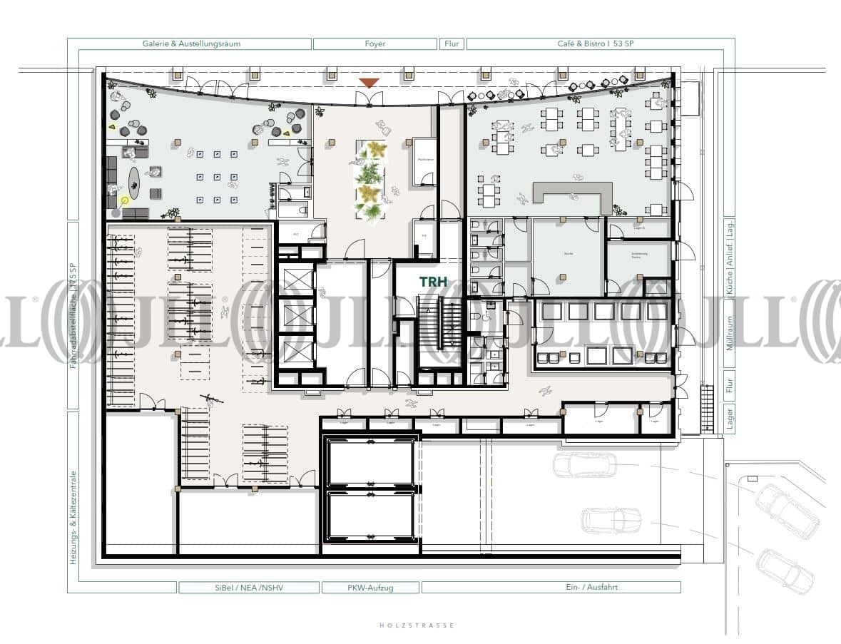
Objekt
Das Timber Port-Projekt im Medienhafen Düsseldorf ist ein bedeutendes Entwicklungsprojekt, das den Bau eines innovativen Bürogebäudes beinhaltet. Das Gebäude wird eine Fläche von ca. 23.000 Quadratmetern haben und über sieben Etagen verfügen. Die Projektentwicklung basiert auf dem Prinzip der Nachhaltigkeit und verwendet Holz als Hauptbaumaterial. Dies macht das Gebäude nicht nur ökologisch, sondern auch architektonisch ansprechend. Es wird voraussichtlich das erste Holzhochhaus in Düsseldorf sein. Timber Port befindet sich in einer erstklassigen Lage im Medienhafen Düsseldorf, einem der beliebtesten Bürostandorte der Stadt. Der Medienhafen bietet eine einzigartige Mischung aus moderner Architektur und erstklassigen Büroflächen. Das Projekt wird die Attraktivität des Medienhafens als Bürostandort weiter stärken. Das Gebäude wird über moderne Büroflächen, Restaurants und innovative Arbeitskonzepte verfügen. Es wird als attraktiver Arbeitsplatz für Unternehmen und Mitarbeiter dienen, die eine nachhaltige und moderne Arbeitsumgebung suchen. Die Projektentwicklung im Medienhafen Düsseldorf ist ein bemerkenswertes Beispiel für nachhaltige Immobilienentwicklung und zeigt das Engagement für umweltfreundliches Bauen in der Region. Es wird erwartet, dass das Timber Port-Gebäude ein Meilenstein in der Entwicklung des Medienhafens und ein Vorzeigeprojekt für die Immobilienbranche sein wird.
Zertifizierungen
Energieausweis
DGNB: GoldVerfügbare Fläche
Lage und Verkehrsanbindung
Das Objekt befindet sich inmitten des Düsseldorfer Medienhafens. Die Mischung aus altem Industriecharakter und der modernen, architektonisch ansprechenden Skyline, sorgt für ein hochwertiges Ambiente. Hotels, Gastronomie und die Nähe zur City runden den Standort ab. Zahlreiche namhafte Unternehmen haben das Potenzial bereits erkannt und machen den Standort zum „Place-to-be“ außerhalb des CBD.
- Hauptbahnhof, Düsseldorf, Fahrzeit: 13 min
- Straßenbahn/Tram, Medienhafen, Kesselstraße 707, Gehzeit: 2 min
- Bus, Medienhafen, Kesselstraße 723, 732, Gehzeit: 1 min
- Bundesautobahn, A 46, Fahrzeit: 8 min
- Bundesautobahn, A 57, Fahrzeit: 12 min
- Flughafen, Düsseldorf, Fahrzeit: 19 min
Ihr Kontakt

Frederik VonWirth
Ihr Kontakt







