Büros
ID D3321Büroimmobilie - Düsseldorf, Mörsenbroich - D3321
Mörsenbroich, 40239, Düsseldorf, Nordrhein-Westfalen
Provisionspflichtig: bei Anmietung 3 Netto-Monatsmieten zzgl. gesetzlicher Umsatzsteuer.** der Wert kann je nach Vertragslaufzeit variieren.
23,50 € - 24,50 € / m²
- Fläche305 - 6.384 m²
- VerfügbarkeitIV quartal 2028
- Objekt
- Ausstattung
- Lage und Verkehrsanbindung
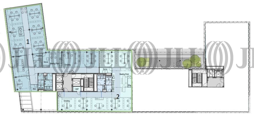
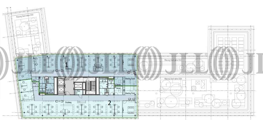
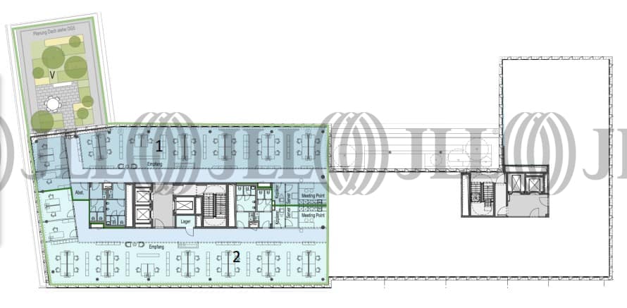
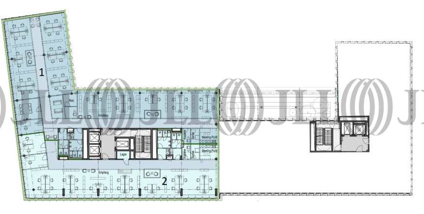
- Grundrisse
- Exposé herunterladen
- Ihr Kontakt
- Anfrage senden
Zertifizierungen
Energieausweis
BREEAM: Excellent WELL: GoldVerfügbare Fläche
Lage und Verkehrsanbindung
Das Bürogebäude liegt im nördlichen Stadtteil Mörsenbroich. Die Nähe zum „Nördlichen Zubringer“ sorgt für eine perfekte Anbindung an das Autobahnnetz, sodass Flughafen und Messe schnell zu erreichen sind. Eine Tankstelle befindet sich in der Nähe. Dienstleister des täglichen Bedarfs befinden sich in der Nähe.
- Flughafen, Düsseldorf, Fahrzeit: 8 min
- Bundesautobahn, A 52, Fahrzeit: 3 min
- Bundesautobahn, A 44, Fahrzeit: 5 min
- Hauptbahnhof, Düsseldorf, Fahrzeit: 16 min
- U-Bahn, Heinrichstraße U71, Gehzeit: 4 min
- Bus, Heinrichstraße M2, SB55, 733, 752, 754, 756, 758, 776, 807, 812, 834, Gehzeit: 4 min
- Straßenbahn/Tram, Heinrichstraße 701, 708, Gehzeit: 4 min
Ihr Kontakt

Richard Steimel
Ihr Kontakt









