Büros
ID D3317Provisionsfrei
Büroimmobilie - Düsseldorf, Hafen - D3317
Hafen, 40221, Düsseldorf, Nordrhein-Westfalen
30,50 € / m²
- Fläche290 - 720 m²
- VerfügbarkeitSofort
- Objekt
- Ausstattung
- Lage und Verkehrsanbindung
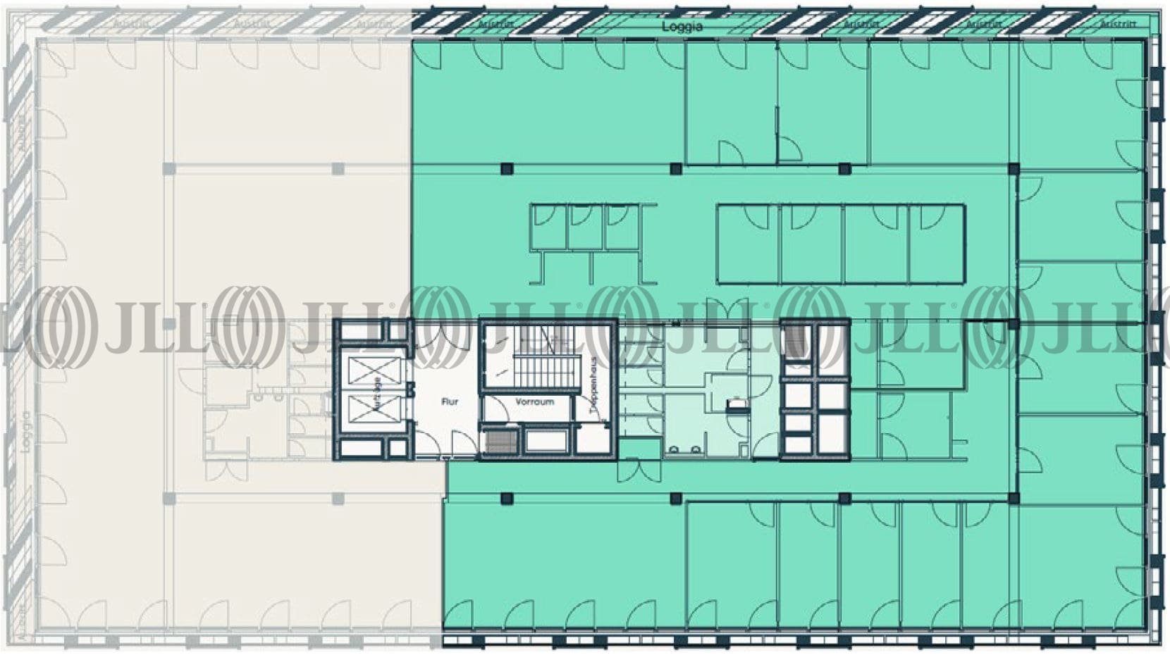
- Grundriss
- Exposé herunterladen
- Ihr Kontakt
- Anfrage senden
Objekt
Hier ist ein Bürogebäude in Holzhybridbauweise errichtet. Das Objekt ist in Anlehnung an das „Cradle-to-Cradle®“-Prinzip (dt. von der Wiege bis zur Wiege) entwickelt. Dabei können einzelne Bauelemente nach Gebrauch wiederverwertet werden. Hier können Mieter des Gebäudes Elektro-Autos und Pedelecs leihen. Gebucht werden können die Fahrzeuge ganz einfach am Service-Point im Foyer sowie in der The Cradle App.
Verfügbare Fläche
Lage und Verkehrsanbindung
Das Objekt befindet sich inmitten des Düsseldorfer Medienhafens. Die Mischung aus altem Industriecharakter und der modernen, architektonisch ansprechenden Skyline, sorgt für ein hochwertiges Ambiente. Hotels, Gastronomie und die Nähe zur City runden den Standort ab. Zahlreiche namhafte Unternehmen haben das Potenzial bereits erkannt und machen den Standort zum „Place-to-be“ außerhalb des CBD.
Ihr Kontakt

Nell Ewert
Ihr Kontakt



