Büros
ID D3307Büroimmobilie - Düsseldorf, Heerdt - D3307
Heerdt, 40549, Düsseldorf, Nordrhein-Westfalen
Provisionspflichtig: bei Anmietung 3 Netto-Monatsmieten zzgl. gesetzlicher Umsatzsteuer.** der Wert kann je nach Vertragslaufzeit variieren.
16 € / m²
- Fläche280 - 3.620 m²
- VerfügbarkeitSofort
- Objekt
- Ausstattung
- Lage und Verkehrsanbindung
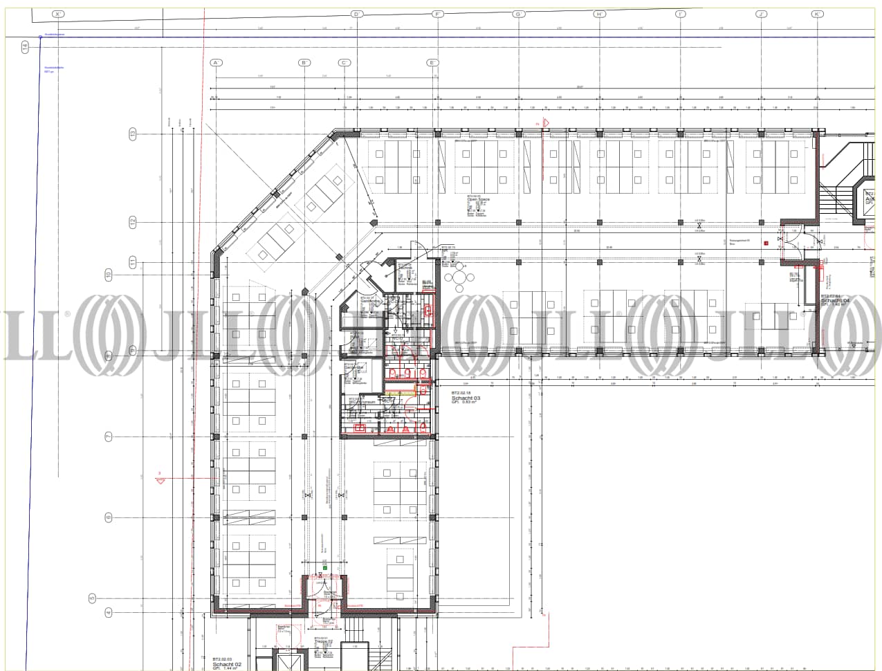
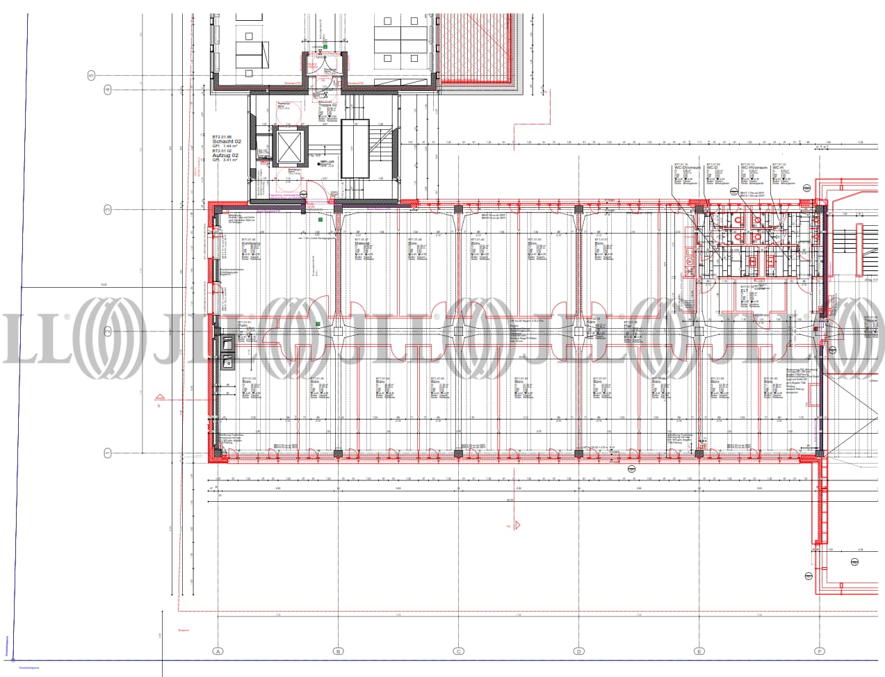
- Grundrisse
- Exposé herunterladen
- Ihr Kontakt
- Anfrage senden
Objekt
Das aufwendig revitalisierte Bürohaus bietet neben einem begrünten Innenhof inklusive beruhigenden Wasserflächen seinen Mietern ein vielseitiges Nutzungsangebot. Neben den modernen Büroflächen sind ebenfalls Bereich für Gastronomie vorgesehen. Das OASIS berücksichtigt die Einhaltung der ESG-Kriterien und bietet linksrheinisch eine neue Arbeitswelt.
Verfügbare Fläche
Lage und Verkehrsanbindung
Das Objekt ist im linksrheinischen Düsseldorf-Heerdt gelegen und verfügt über eine sehr gute Verkehrsanbindung in Richtung City sowie stadtauswärts. Die ehemals dort herrschende Industriebranche ist einem bunten Mix aus Bürogebäuden, Großhandel und Wohnnutzung gewichen.
- Flughafen, Düsseldorf, Fahrzeit: 18 min
- Bundesautobahn, A 52, Fahrzeit: 7 min
- Bundesautobahn, A 57, Fahrzeit: 9 min
- Hauptbahnhof, Düsseldorf, Fahrzeit: 16 min
- Bus, Werftstraße 833, Gehzeit: 1 min
- U-Bahn, Heesenstraße U75, Gehzeit: 3 min
Ihr Kontakt

Richard Steimel
Ihr Kontakt












