Büros
ID D3303Büroimmobilie - Düsseldorf, Flingern Nord - D3303
Flingern Nord, 40235, Düsseldorf, Nordrhein-Westfalen
Provisionspflichtig: bei Anmietung 3 Netto-Monatsmieten zzgl. gesetzlicher Umsatzsteuer.** der Wert kann je nach Vertragslaufzeit variieren.
Kontaktieren Sie uns für den Preis
- Fläche2.149 - 10.944 m²
- VerfügbarkeitSofort
- Objekt
- Ausstattung
- Lage und Verkehrsanbindung
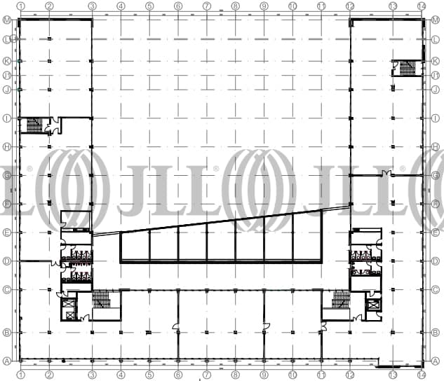
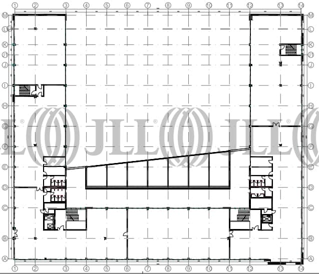
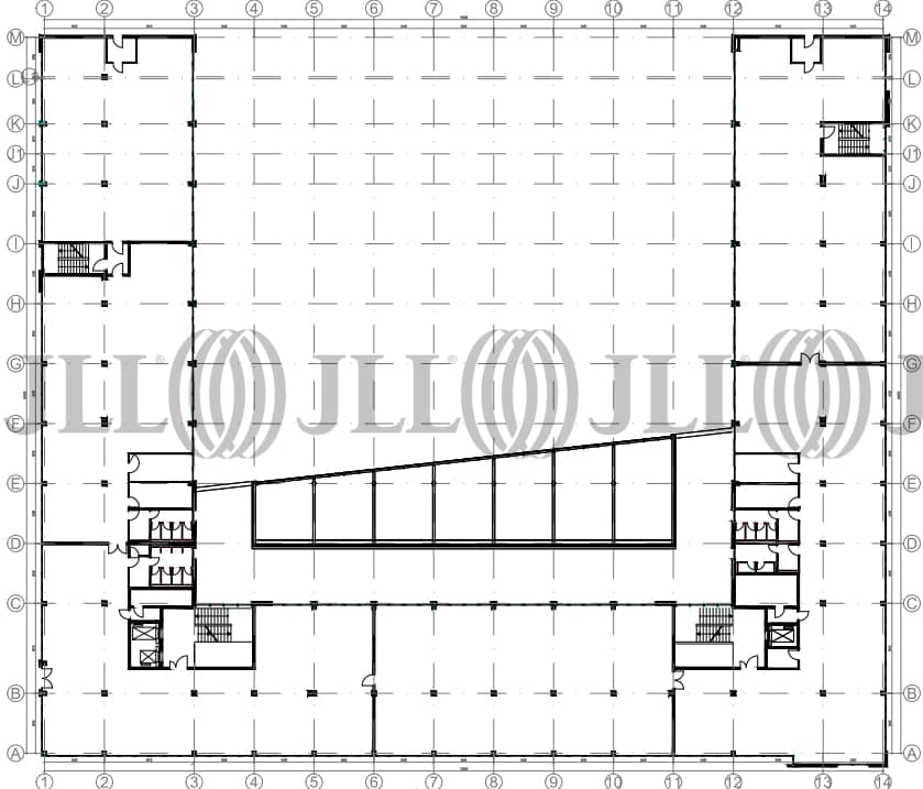
- Grundrisse
- Exposé herunterladen
- Ihr Kontakt
- Anfrage senden
Objekt
Das METRO GROUP Headquarter ist die Konzernzentrale der METRO GROUP. Insgesamt umfasst das Areal eine Grundstücksfläche von ca. 46.983 m² und eine Mietfläche von mehr als 117.694 m². Die Mietfläche verteilt sich auf sechs Liegenschaften, die intern als Brücken bezeichnet werden. Der METRO-Campus weist ein qualitativ hochwertiges, urbanes Umfeld auf.
Verfügbare Fläche
Lage und Verkehrsanbindung
Der METRO Campus liegt an der Schnittstelle der Düsseldorfer Stadtteile Flingern, Düsseltal und Grafenberg und zeichnet sich durch gute Verkehrsanbindungen, insbesondere über die Nähe zur Grafenberger Allee, den vorhandenen Straßenbahnlinien und zur Autobahn aus. Die direkte Nähe zur Grafenberger Allee deckt als Nahversorgungszentrum den täglichen Bedarf. Die Nähe zu den öffentlichen Park- und Grünflächen sind besonders durch den Ostpark, den Grafenberger Wald sowie den Stadt-Natur-Park Flingern gegeben. Eine Tankstelle befindet sich in der Nähe. Dienstleister des täglichen Bedarfs befinden sich in der Nähe.
- Hauptbahnhof, Düsseldorf, Fahrzeit: 15 min
- U-Bahn, Schlüterstraße / Arbeitsagentur U72, U73, U83, Gehzeit: 7 min
- Straßenbahn/Tram, Schlüterstraße / Arbeitsagentur 709, Gehzeit: 7 min
- Bus, Daelenstraße 725, Gehzeit: 4 min
- Bundesautobahn, A 52, Fahrzeit: 10 min
- Bundesautobahn, A 44, Fahrzeit: 12 min
- Flughafen, Düsseldorf, Fahrzeit: 15 min
Ihr Kontakt

Richard Steimel
Ihr Kontakt



































