Büros
ID D3302Büroimmobilie - Düsseldorf, Carlstadt - D3302
Carlstadt, 40213, Düsseldorf, Nordrhein-Westfalen
Provisionspflichtig: bei Anmietung 3 Netto-Monatsmieten zzgl. gesetzlicher Umsatzsteuer.** der Wert kann je nach Vertragslaufzeit variieren.
25 € / m²
- Fläche161 m²
- VerfügbarkeitSofort
- Objekt
- Ausstattung
- Lage und Verkehrsanbindung
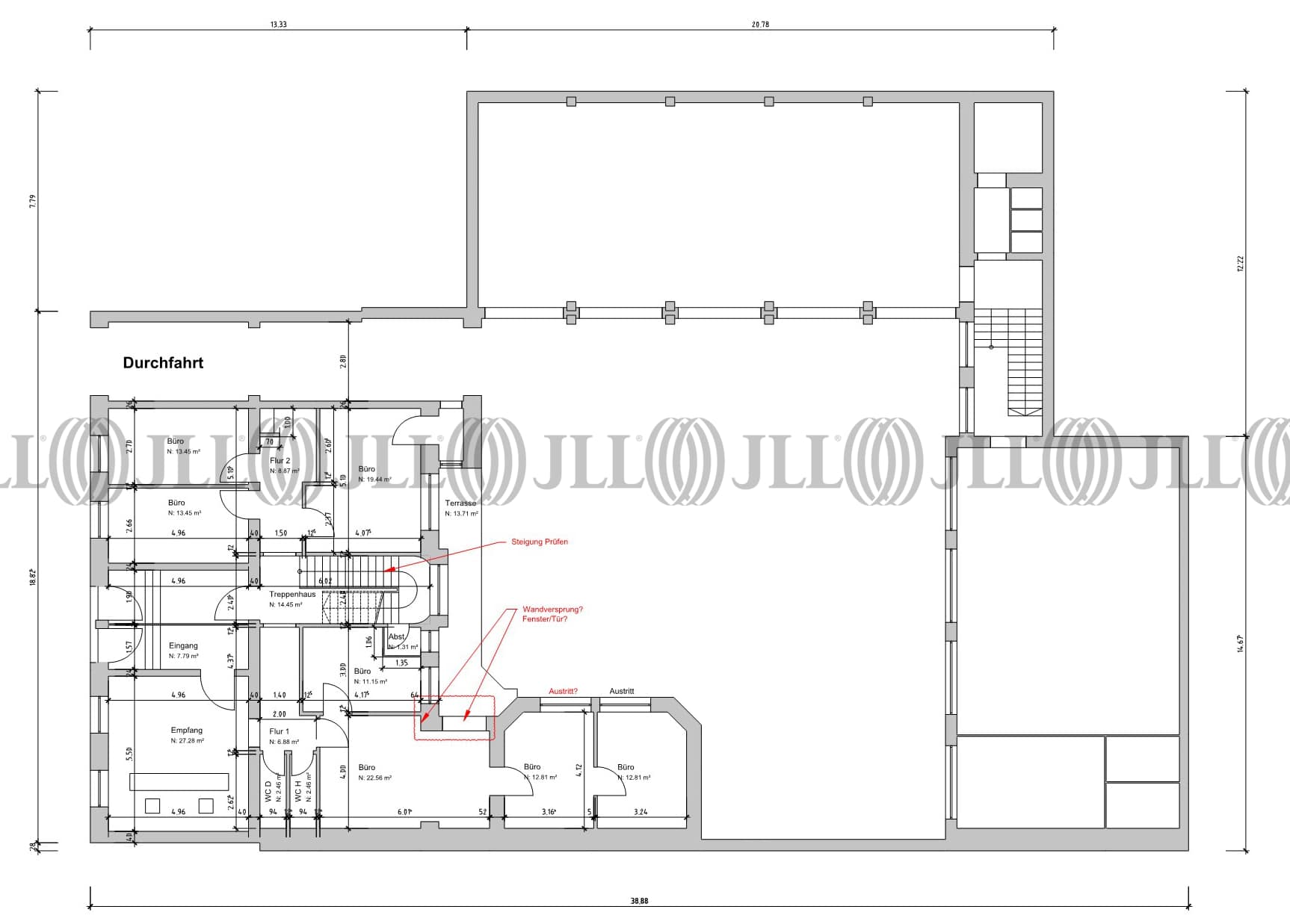
- Grundriss
- Exposé herunterladen
- Ihr Kontakt
- Anfrage senden
Objekt
Die wunderschöne Stadtvilla bietet seinen Nutzern helle Mietflächen für verschiedene Nutzungen. Der Stuck sowie der Terrazzoboden ist überwiegend bestens erhalten und verleiht dem Haus seinen Charme.
Verfügbare Fläche
Lage und Verkehrsanbindung
Die Liegenschaft befindet sich auf einer ruhig gelegenen Straße im Herzen der Düsseldorfer Carlstadt. Der historische Carlsplatz, zwischen Königsallee und Rhein gelegen, ist die Kunstmeile in Düsseldorf und zählt zu den begehrtesten Lagen der Landeshauptstadt. Alle infrastrukturell erforderlichen Einrichtungen sind in der Nähe des Objektes vorhanden.
- Flughafen, Düsseldorf, Fahrzeit: 14 min
- Bundesautobahn, A 52, Fahrzeit: 8 min
- Bundesautobahn, A 46, Fahrzeit: 10 min
- Hauptbahnhof, Düsseldorf, Fahrzeit: 7 min
- Bus, Maxplatz 726, Gehzeit: 1 min
- U-Bahn, Benrather Straße U71, U72, U73, U83, Gehzeit: 4 min
Ihr Kontakt

Nell Ewert
Ihr Kontakt





