
Büros
ID D3287Büroimmobilie - Düsseldorf, Lichtenbroich - D3287
Lichtenbroich, 40472, Düsseldorf, Nordrhein-Westfalen
Provisionspflichtig: bei Anmietung 3 Netto-Monatsmieten zzgl. gesetzlicher Umsatzsteuer.** der Wert kann je nach Vertragslaufzeit variieren.
Kontaktieren Sie uns für den Preis
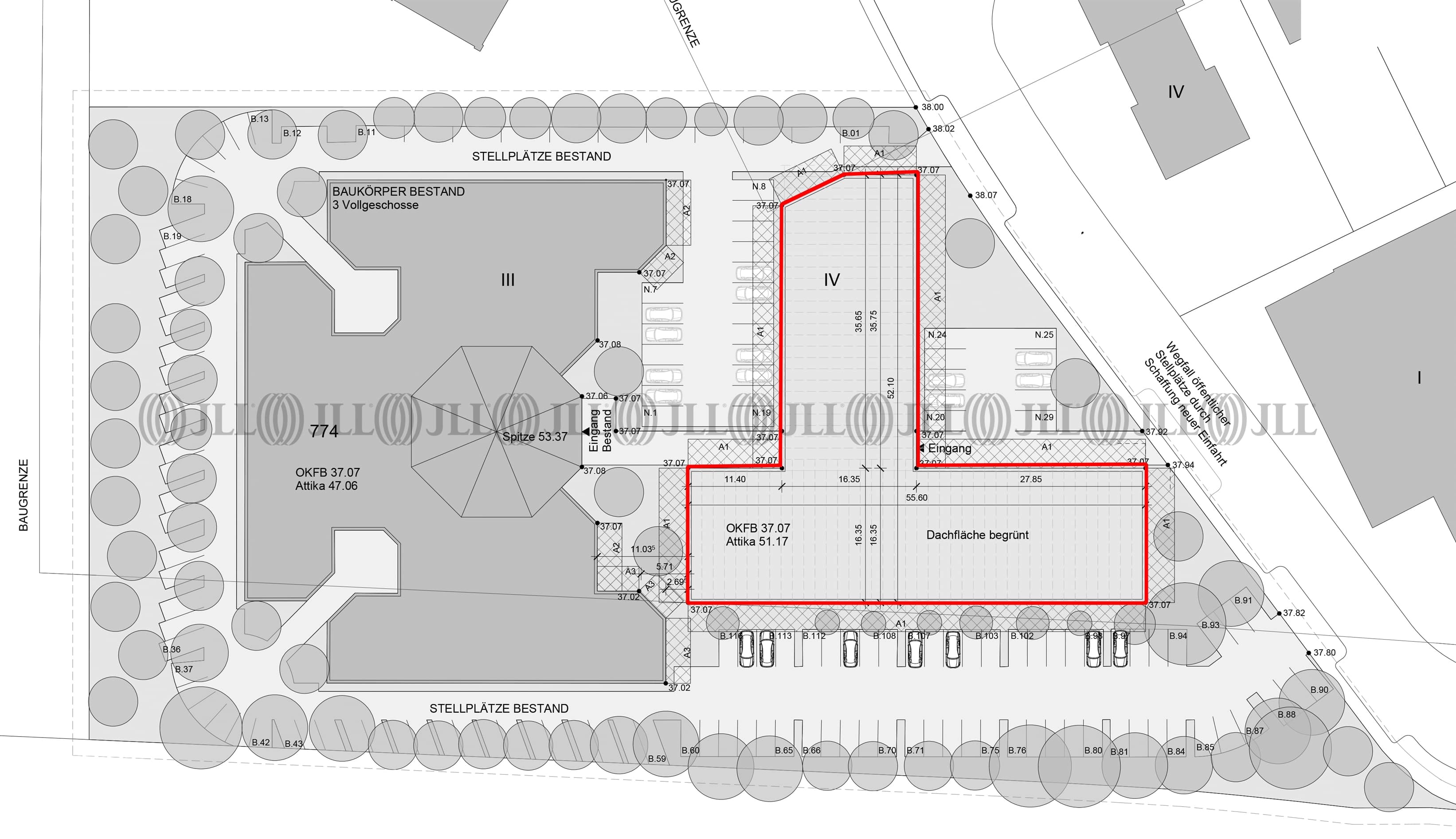
- Fläche753 - 5.873 m²
- VerfügbarkeitAuf Anfrage
- Objekt
- Ausstattung
- Lage und Verkehrsanbindung
- Grundriss
- Exposé herunterladen
- Ihr Kontakt
- Anfrage senden
Objekt
Von der Grundrissgestaltung, über die Ausstattung und das Design. Im Neubau des GATE6A wird alles maßgeschneidert für Sie angefertigt.
Verfügbare Fläche
Lage und Verkehrsanbindung
Die Liegenschaft befindet sich in direkter Nähe des Düsseldorfer Flughafens und bietet damit, besonders international tätigen Unternehmen, beste Voraussetzungen. Auch das Umland ist durch die gute Anbindung an das Autobahnnetz schnell erreichbar. Der Airport Düsseldorf-International bietet zudem zahlreiche Einkaufsmöglichkeiten und ein breites Angebot an Gastronomie. Eine Tankstelle befindet sich in der Nähe. Dienstleister des täglichen Bedarfs befinden sich in der Nähe.
- Hauptbahnhof, Düsseldorf , Fahrzeit: 20 min
- S-Bahn, Flughafen Bahnhof S1, Gehzeit: 9 min
- Bus, Mündelheimer Weg 729, 759, 776, Gehzeit: 4 min
- Bundesautobahn, A 52, Fahrzeit: 7 min
- Bundesautobahn, A 44, Fahrzeit: 8 min
- Flughafen, Düsseldorf, Fahrzeit: 5 min
Ihr Kontakt

Richard Steimel
Ihr Kontakt