Büros
ID D3271Provisionsfrei
Büroimmobilie - Düsseldorf, Hafen - D3271
Hafen, 40221, Düsseldorf, Nordrhein-Westfalen
32 € - 42 € / m²
- Fläche344 - 18.486 m²
- VerfügbarkeitIV quartal 2026
- Objekt
- Ausstattung
- Lage und Verkehrsanbindung
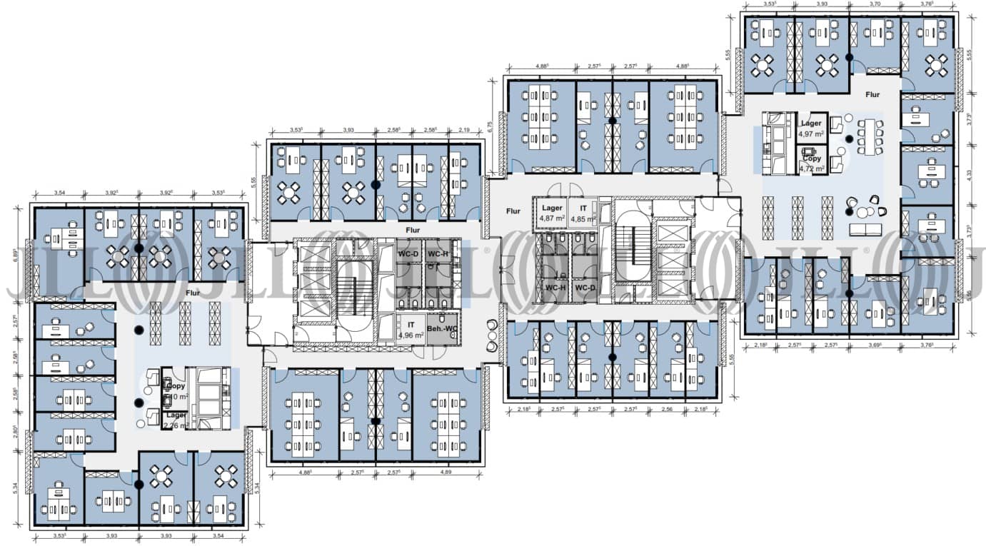
- Grundrisse
- Exposé herunterladen
- Ihr Kontakt
- Anfrage senden
Objekt
In Bestlage des Düsseldorfer Medienhafens entsteht auf dem prominenten Eckgrundstück Kaistraße / Franziusstraße ein Bürohochhaus mit ca. 30.000 m² Bruttogeschossfläche und einer dreigeschossigen Tiefgarage. Nach Plänen des Architekten Christoph Ingenhoven sollen im Erdgeschoss moderne Gastronomie- und Einzelhandelsflächen mit großzügiger Glasfront platziert werden. Darüber werden sich bis zu 17 weitere Geschosse mit hochwertigen Büroflächen befinden, welche neben flexiblen Aufteilungsmöglichkeiten auch einen erstklassigen Panoramablick über den Rhein und die Stadt Düsseldorf bieten. Die Entwicklung erfolgt nach höchsten ESG-Standards, der Anwendung ausgewählter Cradle-to-Cradle Prinzipien im Rahmen der Planung sowie mit dem Ziel einer LEED-Gold- und Wired Score-Platinum Zertifizierung nach Fertigstellung.
Zertifizierungen
Energieausweis
LEED: Gold WIREDSCORE: PlatinumVerfügbare Fläche
Lage und Verkehrsanbindung
Das Objekt befindet sich inmitten des Düsseldorfer Medienhafens. Die Mischung aus altem Industriecharakter und der modernen, architektonisch ansprechenden Skyline, sorgt für ein hochwertiges Ambiente. Hotels, Gastronomie und die Nähe zur City runden den Standort ab. Zahlreiche namhafte Unternehmen haben das Potenzial bereits erkannt und machen den Standort zum „Place-to-be“ außerhalb des CBD.
- Hauptbahnhof, Düsseldorf, Fahrzeit: 13 min
- Straßenbahn/Tram, Franziusstraße 706, 707, 723, 726, 732, Gehzeit: 2 min
- Bus, Speditionstraße 723, 732, Gehzeit: 1 min
- Bundesautobahn, A 46, Fahrzeit: 9 min
- Bundesautobahn, A 52, Fahrzeit: 10 min
- Flughafen, Düsseldorf, Fahrzeit: 15 min
Ihr Kontakt

Frederik VonWirth
Ihr Kontakt





