Büros
ID D3251Büroimmobilie - Düsseldorf, Flingern Süd - D3251
Flingern Süd, 40233, Düsseldorf, Nordrhein-Westfalen
Provisionspflichtig: bei Anmietung 3 Netto-Monatsmieten zzgl. gesetzlicher Umsatzsteuer.** der Wert kann je nach Vertragslaufzeit variieren.
14 € - 16 € / m²
- Fläche273 - 1.425 m²
- VerfügbarkeitSofort
- Objekt
- Ausstattung
- Lage und Verkehrsanbindung
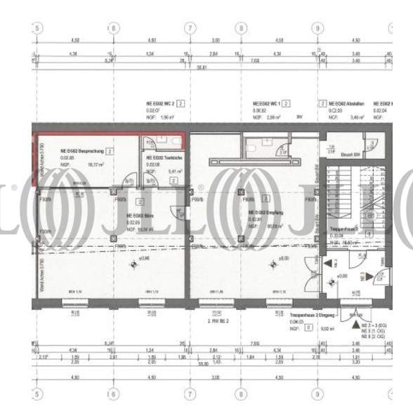
- Grundrisse
- Exposé herunterladen
- Ihr Kontakt
- Anfrage senden
Objekt
Bei diesen charmanten Loftflächen handelt es sich um ein historisches Backsteingebäude in Innenstadtnähe. Die Flächen bieten Möglichkeiten für jegliche Nutzungsarten. Eine individuelle Anpassung der Flächen ist nach Mieterwunsch möglich.
Zertifizierungen
Energieausweis
Für diese Liegenschaft liegt ein Verbrauchsausweis vom 15.04.2025 vom Eigentümer/Vermieter vor. Der wesentliche Energieträger der Liegenschaft ist Erdgas schwer. Der Endenergieverbrauch Strom beträgt 6 kWh/(m²*a). Der Endenergieverbrauch Wärme beträgt 85,8 kWh/(m²*a).Verfügbare Fläche
Lage und Verkehrsanbindung
Die Liegenschaft befindet sich im östlichen Teil der Düsseldorfer City und besitzt durch die Nähe zum Hauptbahnhof eine optimale Anbindung an den ÖPNV sowie in Richtung Flughafen und Messe. Dienstleister des täglichen Bedarfs befinden sich in der Nähe.
- Hauptbahnhof, Düsseldorf, Fahrzeit: 4 min
- Straßenbahn/Tram, Worringer Platz 704, 708, 709, Gehzeit: 4 min
- Bus, Worringer Platz 721, 722, 732, 738, 805, 807, 812, 817, 834, Gehzeit: 4 min
- Bundesautobahn, A 46, Fahrzeit: 10 min
- Bundesautobahn, A 52, Fahrzeit: 12 min
- Flughafen, Düsseldorf, Fahrzeit: 15 min
Ihr Kontakt

Nell Ewert
Ihr Kontakt











