Büros
ID D3248Provisionsfrei
Büroimmobilie - Düsseldorf, Bilk - D3248
Bilk, 40225, Düsseldorf, Nordrhein-Westfalen
15,50 € / m²
- Fläche665 - 6.239 m²
- VerfügbarkeitSofort
- Objekt
- Ausstattung
- Lage und Verkehrsanbindung
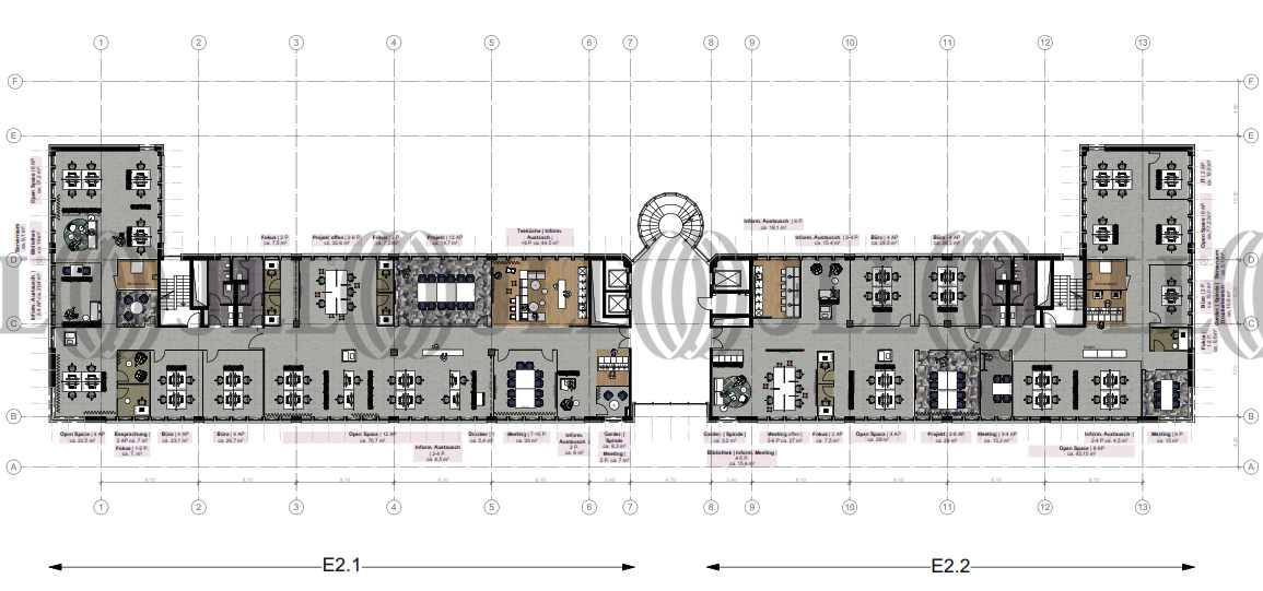
- Grundrisse
- Exposé herunterladen
- Ihr Kontakt
- Anfrage senden
Zertifizierungen
Energieausweis
DGNB: GoldFür diese Liegenschaft liegt ein Verbrauchsausweis vom 08.07.2021 vom Eigentümer/Vermieter vor. Die wesentlichen Energieträger der Liegenschaft sind Fernwärme, Strom. Der Endenergieverbrauch Strom beträgt 56.5 kWh/(m²*a). Der Endenergieverbrauch Wärme beträgt 98.2 kWh/(m²*a).
Verfügbare Fläche
Lage und Verkehrsanbindung
Die Liegenschaft befindet sich in unmittelbarer Nähe zur AB-Anschlussstelle D-Bilk/Hafen der A46 sowie in unmittelbarer Nähe des Südrings. Die Eduard-Schulte-Straße erreicht man über die Merowinger Straße. Im nahe gelegenen Stadtteil-Zentrum Bilk befinden sich zahlreiche Einkaufsmöglichkeiten des täglichen Bedarfs.
- Flughafen, Düsseldorf, Fahrzeit: 19 min
- Bundesautobahn, A 46, Fahrzeit: 5 min
- Bundesautobahn, A 57, Fahrzeit: 8 min
- Hauptbahnhof, Düsseldorf, Fahrzeit: 12 min
- Bus, Merowingerstraße 835, 836, Gehzeit: 3 min
- Straßenbahn/Tram, Merowingerplatz 705, 706, Gehzeit: 2 min
Ihr Kontakt

Frederik VonWirth
Ihr Kontakt










