Büros
ID D3239Büroimmobilie - Düsseldorf, Flingern Nord - D3239
Flingern Nord, 40235, Düsseldorf, Nordrhein-Westfalen
Provisionspflichtig: bei Anmietung 3 Netto-Monatsmieten zzgl. gesetzlicher Umsatzsteuer.** der Wert kann je nach Vertragslaufzeit variieren.
Kontaktieren Sie uns für den Preis
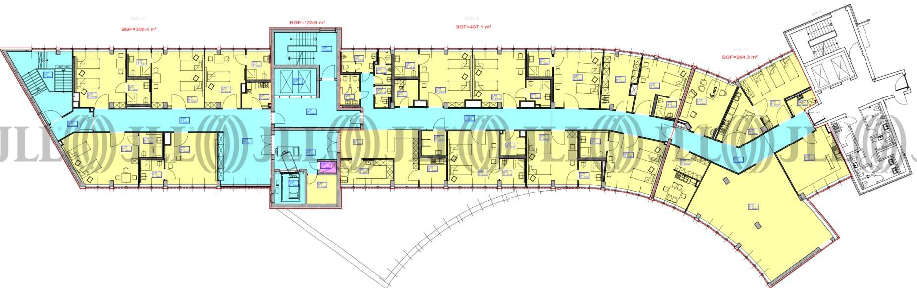
- Fläche172 - 6.779 m²
- VerfügbarkeitSofort
- Objekt
- Ausstattung
- Lage und Verkehrsanbindung
- Grundrisse
- Exposé herunterladen
- Ihr Kontakt
- Anfrage senden
Objekt
Das repräsentative Gebäude mit zentraler Eingangshalle und dauerhaft besetztem Empfang sowie Besucher-Tiefgarage überzeugt durch seine überdurchschnittliche Anbindung an den ÖPNV- sowie Individualverkehr in Verbindung mit der ruhigen und entspannten Lage am neuen Stadt-Natur-Park Flingern. Das Gebäude wurde in 2021 / 2022 weiter aufgewertet (u.a. gemeinschaftliche Dachterrasse Bauteil C). Bauteile A und B richten sich an Arztpraxen sowie sonstige medizinische Einrichtungen. Bauteil C (separate Zugangssituation) eignet sich sowohl für Büronutzung als auch weitere Arztpraxen.
Zertifizierungen
Energieausweis
Für diese Liegenschaft liegt ein Bedarfsausweis vom 2019-08-08 vom Eigentümer/Vermieter vor. Die wesentlichen Energieträger der Liegenschaft sind Fernwärme,KWK. Der Endenergiebedarf Strom beträgt 24.00 kWh/(m²*a). Der Endenergiebedarf Wärme beträgt 174.00 kWh/(m²*a).Verfügbare Fläche
Lage und Verkehrsanbindung
Das Objekt liegt im östlichen Stadtteil Grafenberg und verfügt über eine sehr gute ÖPNV-Anbindung in Richtung City. Namhafte Unternehmen haben sich bereits im attraktiven Umfeld bestehend aus Büro- und Wohngebieten eingefunden. Der Grafenberger Wald bildet im Osten des Gebiets eine „Grüne Oase“.
- Hauptbahnhof, Düsseldorf, Fahrzeit: 11 min
- U-Bahn, Schlüterstraße / Arbeitsagentur U72, U73, U83, Gehzeit: 5 min
- Straßenbahn/Tram, Schlüterstraße / Arbeitsagentur 709, Gehzeit: 5 min
- Bus, Schlüterstraße / Arbeitsagentur 725, 733, 810, Gehzeit: 5 min
- Bundesautobahn, A 52, Fahrzeit: 10 min
- Bundesautobahn, A 46, Fahrzeit: 14 min
- Flughafen, Düsseldorf, Fahrzeit: 15 min
Ihr Kontakt

Richard Steimel
Ihr Kontakt





