Büros
ID D3236Büroimmobilie - Düsseldorf, Holthausen - D3236
Holthausen, 40589, Düsseldorf, Nordrhein-Westfalen
Provisionspflichtig: bei Anmietung 3 Netto-Monatsmieten zzgl. gesetzlicher Umsatzsteuer.** der Wert kann je nach Vertragslaufzeit variieren.
10,77 € / m²
- Fläche77 - 1.665 m²
- VerfügbarkeitSofort
- Objekt
- Ausstattung
- Lage und Verkehrsanbindung
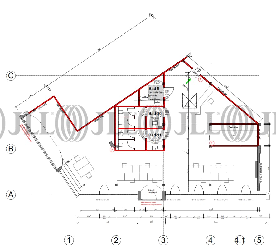
- Grundrisse
- Exposé herunterladen
- Ihr Kontakt
- Anfrage senden
Objekt
Das Falkenberg Center bietet eine hohe Vielfalt verschiedenster Büro- und Retailflächen. Die Flächen lassen sich sowohl in Open Space Struktur als auch verzimmert nutzen.
Zertifizierungen
Energieausweis
Für diese Liegenschaft liegt ein Verbrauchsausweis vom 2016-12-20 vom Eigentümer/Vermieter vor. Der wesentliche Energieträger der Liegenschaft ist Erdgas schwer. Der Endenergieverbrauch Strom beträgt 36.00 kWh/(m²*a). Der Endenergieverbrauch Wärme beträgt 114.00 kWh/(m²*a).Verfügbare Fläche
Lage und Verkehrsanbindung
Die Liegenschaft befindet sich im Süden der Landeshauptstadt. Dank der optimalen Anbindungen an die Autobahnen sind sowohl die Düsseldorfer Innenstadt, als auch die umliegenden Nachbarstädte, schnell und direkt erreichbar. Der Standort bietet zum einen wirtschaftlich starke Gewerbegebiete und überzeugt zusätzlich durch den Charme der umliegenden Grünanlagen.
- Hauptbahnhof, Düsseldorf, Fahrzeit: 17 min
- U-Bahn, Holthausen U74, U77, U83, Gehzeit: 1 min
- Bus, Holthausen 724, 789, 817, 835, Gehzeit: 3 min
- Bundesautobahn, A 46, Fahrzeit: 6 min
- Bundesautobahn, A 59, Fahrzeit: 8 min
- Flughafen, Düsseldorf, Fahrzeit: 26 min
Ihr Kontakt

Anna-Louisa Kratochvil
Ihr Kontakt










