Büros
ID D3230Premium JLL
Provisionsfrei
Büroimmobilie - Düsseldorf, Rath - D3230
Rath, 40472, Düsseldorf, Nordrhein-Westfalen
15,52 € / m²
- Fläche439 - 2.306 m²
- VerfügbarkeitAuf Anfrage
- Objekt
- Ausstattung
- Lage und Verkehrsanbindung
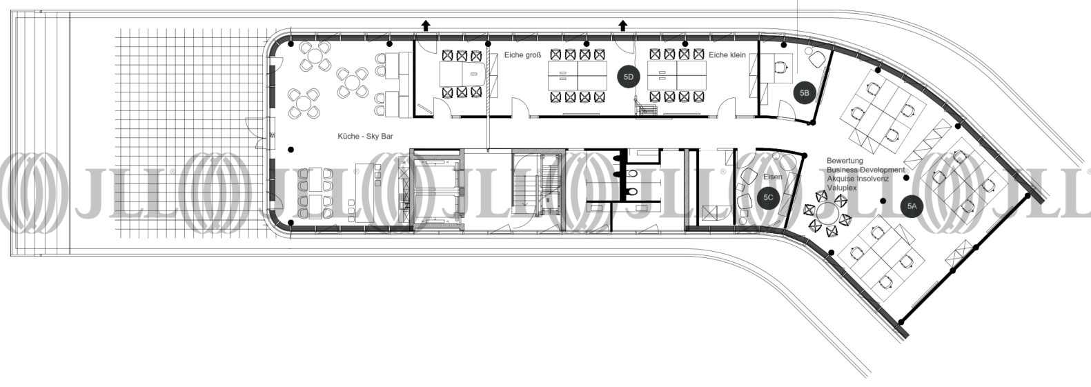
- Grundrisse
- Exposé herunterladen
- Ihr Kontakt
- Anfrage senden
Objekt
Das Gebäude mit seiner einzigartigen repräsentativen Fassade und den großzügigen Glasflächen bietet seinen Nutzern eine besondere Arbeitswelt. Die offene Grundrissgestaltung lässt vielfältige Nutzungsmöglichkeiten zu. Alle denkbaren Arbeitsplatzkonfigurationen lassen sich hier flexibel und effizient umsetzen. Die Liegenschaft überzeugt neben einer großzügigen Lobby durch helle freundliche Räume mit einer hochwertigen Ausstattung.
Verfügbare Fläche
Lage und Verkehrsanbindung
Die Liegenschaft befindet sich in direkter Nähe des Düsseldorfer Flughafens und bietet damit, besonders international tätigen Unternehmen, beste Voraussetzungen. Auch das Umland ist durch die gute Anbindung an das Autobahnnetz schnell erreichbar. Der Airport Düsseldorf-International bietet zudem zahlreiche Einkaufsmöglichkeiten und ein breites Angebot an Gastronomie.
Ihr Kontakt

Nell Ewert
Ihr Kontakt






















