
Büros
ID D3225Büroimmobilie - Düsseldorf, Stadtmitte - D3225
Stadtmitte, 40212, Düsseldorf, Nordrhein-Westfalen
Provisionspflichtig: bei Anmietung 3 Netto-Monatsmieten zzgl. gesetzlicher Umsatzsteuer.** der Wert kann je nach Vertragslaufzeit variieren.
30 € / m²
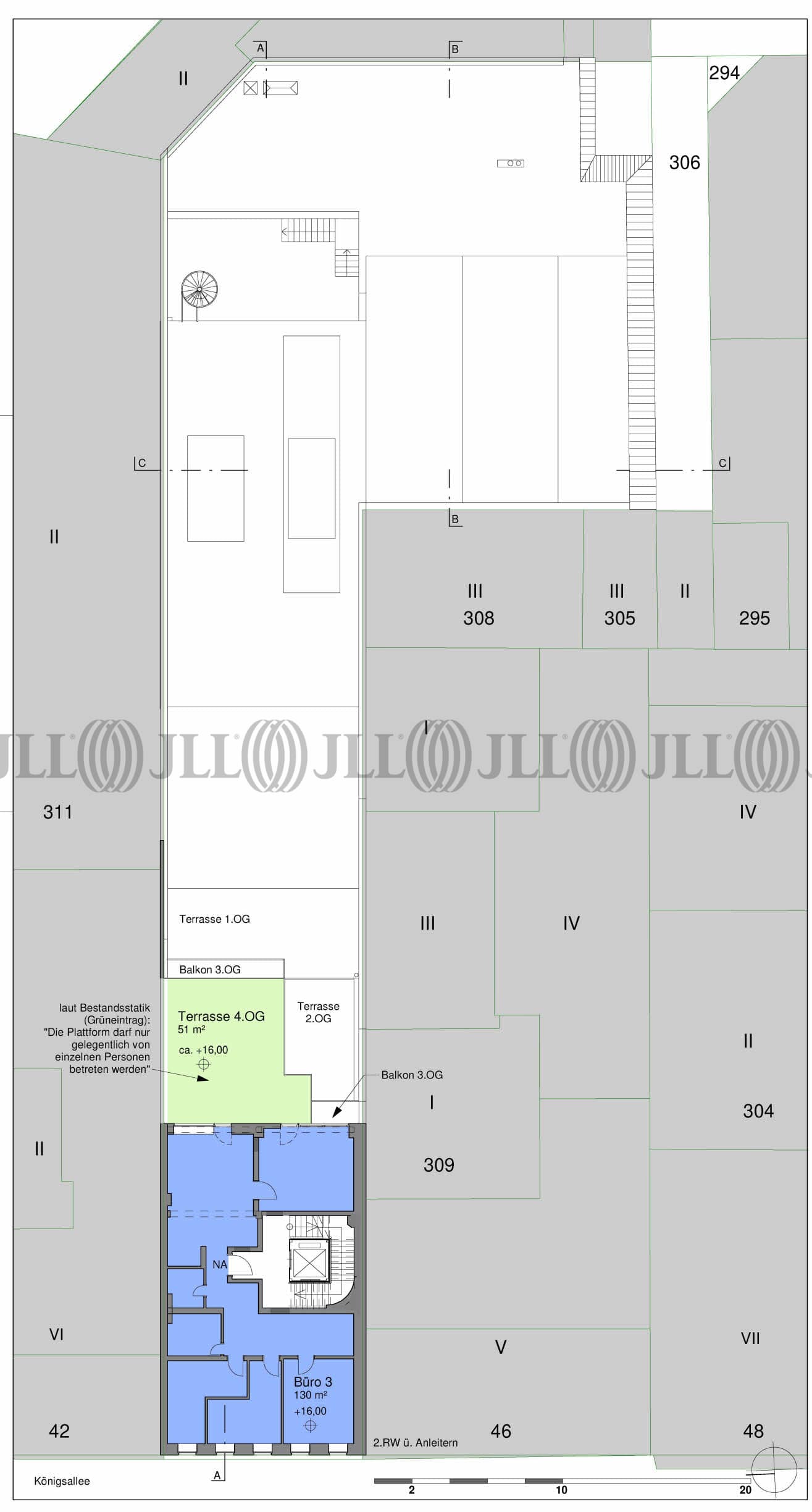
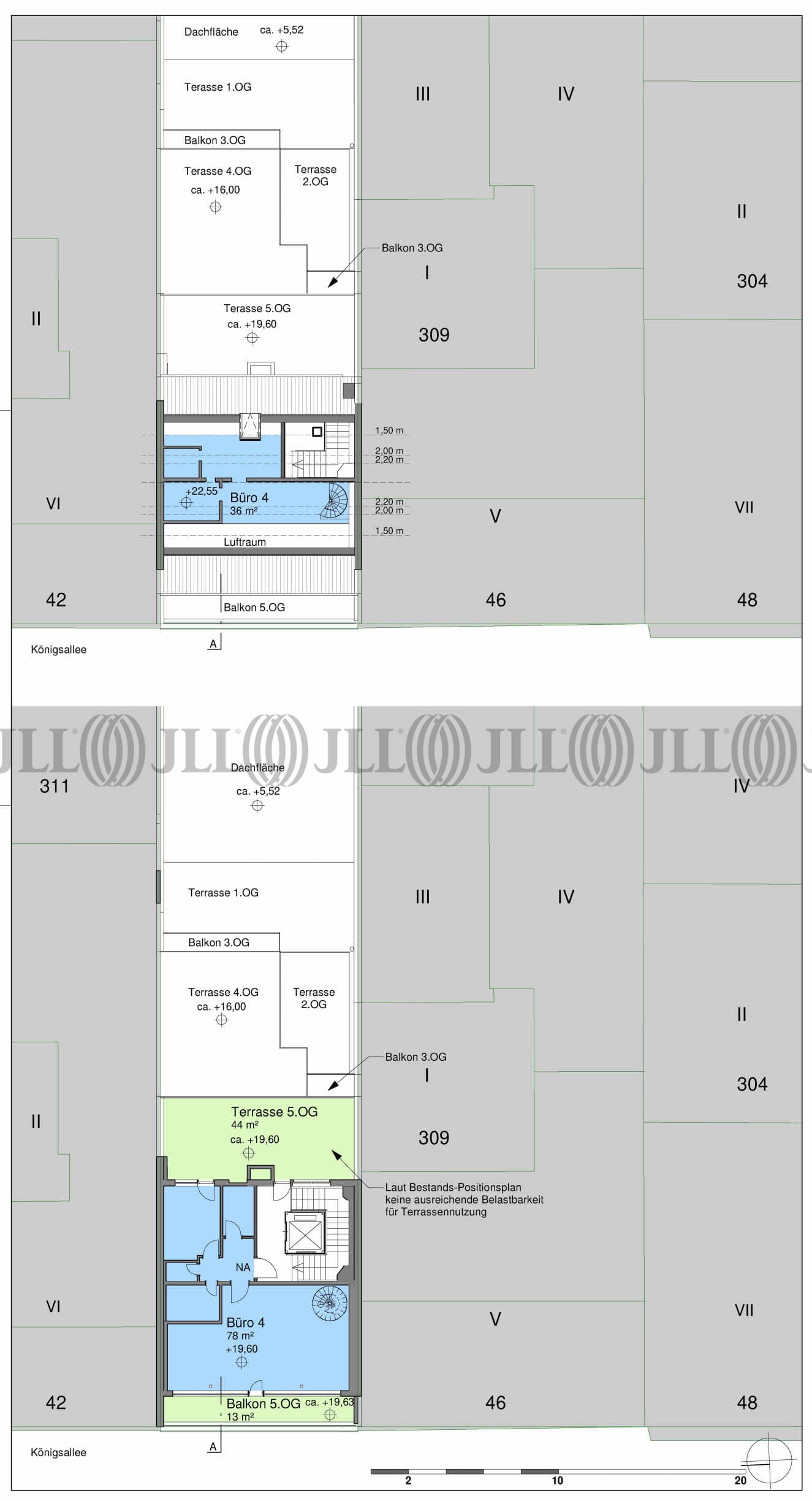
- Fläche114 - 421 m²
- VerfügbarkeitSofort
- Objekt
- Ausstattung
- Lage und Verkehrsanbindung
- Grundrisse
- Exposé herunterladen
- Ihr Kontakt
- Anfrage senden
Objekt
Bei der 6-geschossigen Liegenschaft handelt es sich um eine Projektentwicklung im Herzen der Stadt Düsseldorf. Die Flächen können nach Mietwunsch noch flexibel gestaltet werden.
Verfügbare Fläche
Lage und Verkehrsanbindung
Das Objekt befindet sich in renommierter Lage mitten im Düsseldorfer CBD. Der CBD wird im Süden vom Gap 15 und im Norden vom Dreischeibenhaus begrenzt. Die Berliner Allee sowie Kasernenstraße/Heine-Allee bilden östlich und westlich die Grenze. Herzstück ist somit die berühmte Königsallee. Zahlreiche namhafte Unternehmen am Standort profitieren von der idealen ÖPNV-Anbindung sowie der hervorragenden Infrastruktur in Bezug auf die tägliche Nahversorgung.
- Hauptbahnhof, Düsseldorf, Fahrzeit: 7 min
- U-Bahn, Steinstraße/Königsallee U70, U74, U75, U76, U77, U78, U79, Gehzeit: 3 min
- Straßenbahn/Tram, Steinstraße/Königsallee 701, 705, 706, Gehzeit: 3 min
- Bus, Steinstraße SB50, 780, 782, 785, 805, 817, Gehzeit: 1 min
- Bundesautobahn, A 46, Fahrzeit: 10 min
- Bundesautobahn, A 52, Fahrzeit: 10 min
- Flughafen, Düsseldorf, Fahrzeit: 12 min
Ihr Kontakt

Janice Lehmann
Ihr Kontakt