Büros
ID D3224Büroimmobilie - Düsseldorf, Stadtmitte - D3224
Stadtmitte, 40212, Düsseldorf, Nordrhein-Westfalen
Provisionspflichtig: bei Anmietung 3 Netto-Monatsmieten zzgl. gesetzlicher Umsatzsteuer.** der Wert kann je nach Vertragslaufzeit variieren.
28 € / m²
- Fläche122 m²
- VerfügbarkeitSofort
- Objekt
- Ausstattung
- Lage und Verkehrsanbindung
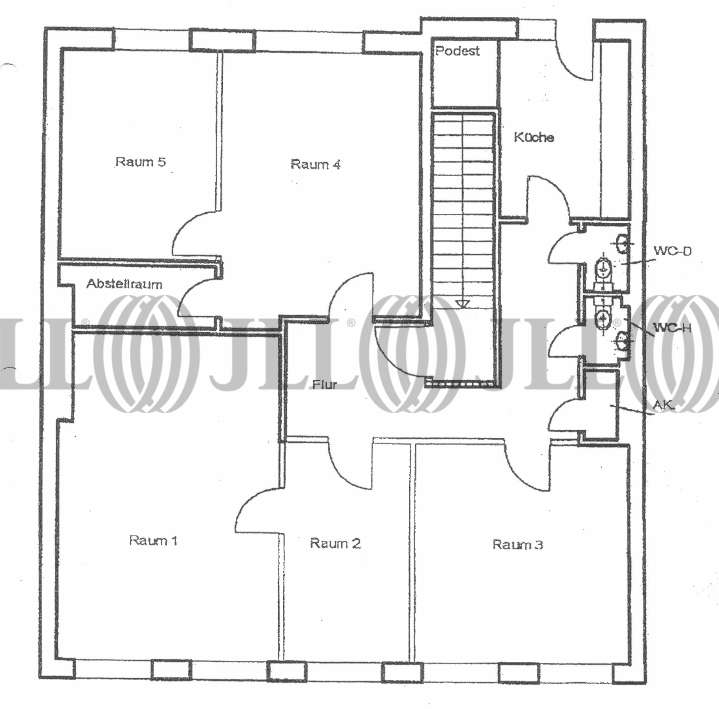
- Grundriss
- Exposé herunterladen
- Ihr Kontakt
- Anfrage senden
Objekt
Bei dieser Immobilie handelt es sich um ein exklusives Büro- und Geschäftshaus mitten auf der Königsallee. Die Fläche im 4. Obergeschoss bietet neben der vorteilhaften Raumaufteilung und der flexiblen & kurzfristigen Anmietmöglichkeit, einen schönen Blick auf die Königsallee aus dem obersten Stockwerk. Die Bürofläche ist über einen Personenaufzug oder über das zentrale Treppenhaus erreichbar.
Verfügbare Fläche
Lage und Verkehrsanbindung
Das Objekt befindet sich in renommierter Lage mitten im Düsseldorfer CBD. Der CBD wird im Süden vom Gap 15 und im Norden vom Dreischeibenhaus begrenzt. Die Berliner Allee sowie Kasernenstraße/Heinrich-Heine-Allee bilden östlich und westlich die Grenze. Herzstück ist somit die berühmte Königsallee. Zahlreiche namhafte Unternehmen am Standort profitieren von der idealen ÖPNV-Anbindung sowie der hervorragenden Infrastruktur in Bezug auf die tägliche Nahversorgung.
- Flughafen, Düsseldorf, Fahrzeit: 15 min
- Bundesautobahn, A 44, Fahrzeit: 12 min
- Bundesautobahn, A 52, Fahrzeit: 14 min
- Hauptbahnhof, Düsseldorf, Fahrzeit: 6 min
- U-Bahn, Heinrich-Heine-Allee U70, U71, U72, U73, U74, U75, U76, U77, U78, U79, U83, Gehzeit: 3 min
- Bus, Steinstraße U 780, 782, 785, 805, 817, Gehzeit: 3 min
Ihr Kontakt

Katharina Ufelmann
Ihr Kontakt










