Büros
ID D3215Büroimmobilie - Witten - D3215
58456, Witten, Nordrhein-Westfalen
Provisionspflichtig: bei Anmietung 3 Netto-Monatsmieten zzgl. gesetzlicher Umsatzsteuer.** der Wert kann je nach Vertragslaufzeit variieren.
8,96 € / m²
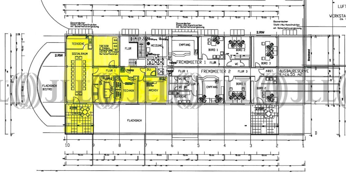
- Fläche596 - 775 m²
- Verfügbarkeit01.08.2026
- Objekt
- Ausstattung
- Lage und Verkehrsanbindung
- Grundrisse
- Exposé herunterladen
- Ihr Kontakt
- Anfrage senden
Objekt
Das hoch flexible und helle Objekt überzeugt neben seiner guten Anbindung vor Allem mit seinem mieterfreundlichen Grundriss und der Flexibilität die Wände nach Ihren Wünschen neu zu setzen.
Verfügbare Fläche
Lage und Verkehrsanbindung
Das Objekt befindet sich in zentraler Lage von Witten, einer Hauptverkehrsachse mit guter Sichtbarkeit. Die Immobilie profitiert von einer ausgezeichneten Verkehrsanbindung durch die nahegelegenen Autobahnen A44 und A43 sowie vorhandene ÖPNV-Verbindungen. Das gewerblich geprägte Umfeld ist etabliert und bietet eine solide Infrastruktur mit ausreichenden Parkmöglichkeiten. Die Nähe zum Stadtzentrum gewährleistet Zugang zu vielfältigen Einkaufs- und Dienstleistungsangeboten, was die Lage zu einem attraktiven Bürostandort für mittelständische Unternehmen macht.
- Hauptbahnhof, Witten Hbf, Fahrzeit: 10 min
- Bus, Knappensiedlur 320, 320E, E20, E67, Gehzeit: 2 min
- Bundesautobahn, A43, Fahrzeit: 2 min
- Bundesautobahn, A40, Fahrzeit: 9 min
- Flughafen, Düsseldorf International, Fahrzeit: 35 min
Ihr Kontakt

Martin Jahnke
Ihr Kontakt





