Büros
ID D3214Büroimmobilie - Dortmund, Huckarde - D3214
Huckarde, 44369, Dortmund, Nordrhein-Westfalen
Provisionspflichtig: bei Anmietung 3 Netto-Monatsmieten zzgl. gesetzlicher Umsatzsteuer.** der Wert kann je nach Vertragslaufzeit variieren.
7,50 € / m²
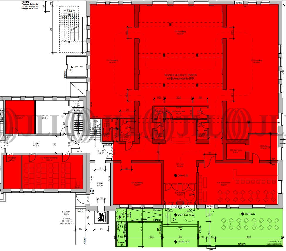
- Fläche840 m²
- VerfügbarkeitSofort
- Objekt
- Ausstattung
- Lage und Verkehrsanbindung
- Grundriss
- Exposé herunterladen
- Ihr Kontakt
- Anfrage senden
Objekt
Entdecken Sie außergewöhnliche Räumlichkeiten in einem ehemaligen Museum, das durch seine hellen, lichtdurchfluteten Flächen besticht. Die großzügigen Räume bieten optimale Lichtverhältnisse und schaffen eine inspirierende Arbeitsatmosphäre. Die Räumlichkeiten lassen sich vollständig nach Ihren Vorstellungen gestalten und bieten vielfältige Nutzungsmöglichkeiten. Die bereits vorhandene Kantine kann bei Bedarf mitgenutzt werden – eine praktische Zusatzoption ohne Verpflichtung. Ideal für Unternehmen, die Wert auf außergewöhnliche, charaktervolle Räumlichkeiten mit maximaler Gestaltungsfreiheit legen.
Verfügbare Fläche
Lage und Verkehrsanbindung
Der Standort befindet sich im technologieorientierten Gewerbeareal Hansa, das im Zuge des Strukturwandels auf dem Gelände der ehemaligen Kokerei Hansa entstanden ist. Heute ist es ein vielseitiger Wirtschaftsraum mit Fokus auf IT, Software, Logistik und technologiegetriebene Unternehmen. Der Standort ist eng mit der städtebaulichen Entwicklung des Stadtteils Huckarde verbunden und steht exemplarisch für die nachhaltige Transformation des Ruhrgebiets. Dabei gehen Wirtschaft, Bildung, Innovation und Industriekultur Hand in Hand. Die ehemalige Kokerei Hansa – einst Symbol der Schwerindustrie – ist heute ein beliebtes Ausflugsziel und kultureller Anziehungspunkt, eingebunden in zahlreiche Bildungs- und Erlebnisformate. Nur wenige Gehminuten entfernt entsteht derzeit der Energiecampus, ein hochmoderner Innovationsstandort auf rund 6,5 Hektar mit einem Investitionsvolumen von über 34 Millionen Euro. Im Fokus stehen die Erforschung und Entwicklung zukunftsweisender Energietechnologien, insbesondere im Bereich Wasserstoff.
- Hauptbahnhof, Dortmund, Fahrzeit: 9 min
- U-Bahn, Huckarde Bushof U47, Gehzeit: 5 min
- Bus, Huckarder Allee 415, Gehzeit: 3 min
- Bundesautobahn, A 45, Fahrzeit: 6 min
- Bundesautobahn, A 40, Fahrzeit: 8 min
- Flughafen, Düsseldorf, Fahrzeit: 45 min
Ihr Kontakt

Martin Jahnke
Ihr Kontakt








